查看完整案例


收藏

下载

翻译
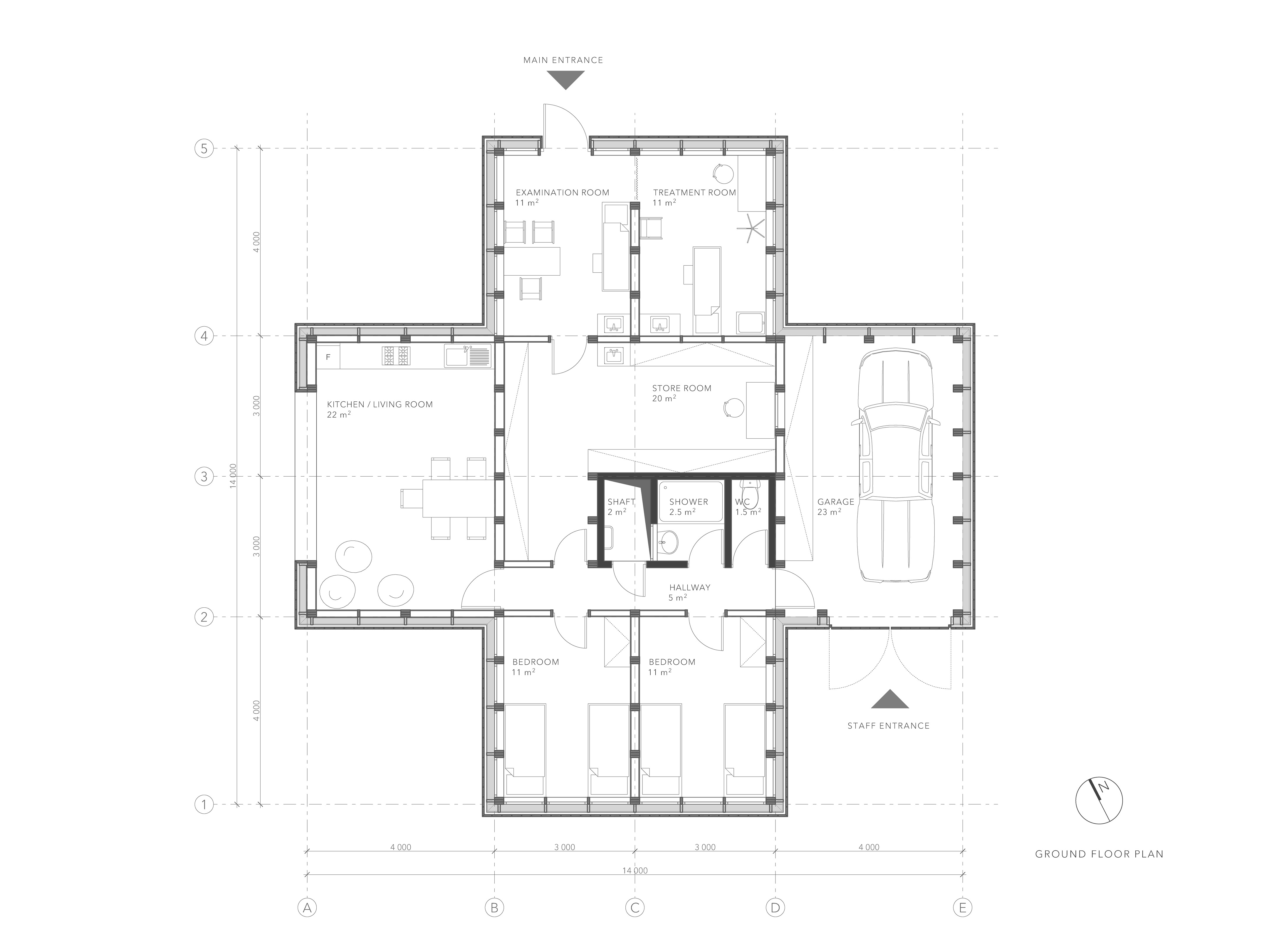
The current project is situated in a very remote region, one of the poorest areas of Nicaragua, on the Gulf of Fonseca coast. People settled here years ago without basic facilities for education and healthcare, seeking a place to live and work as fishermen or farmers. The health post is planned to be small, aimed to provide basic health care as well as to conduct educational programs focused on hygiene, sanitation, disease prevention and contraception. The building contains medical rooms, accommodations for volunteers, a living area and ample storage. Construction designs of the building focused on protection from seismic risks, prevention from overheating, and providing natural ventilation. All the funds have been raised via crowdfunding, and all the construction work has been driven by volunteers and local people.
A conscious consumption was the one of the leading purposes in expenditure of resources, choice of the building technologies and organizing the construction process. Only eco-positive materials such as stone or wood or inert materials such as concrete, metal and fiber-cement were used in the construction. The wooden boards were produced from dry trees in the surrounding forests and manually delivered to the building site by volunteers and locals. The health post is fully "off-the-grid", it runs on solar panels, feeds off its own water well, and has an independent sewer. Water from the well is accumulated in the water tank on the roof and is distributed by gravity. The roof is also sloped into the central shaft to collect rain water.
Architectural design was based on the re-thinking of local traditional features and construction technologies, but not directly copied. We aim to demonstrate an alternative approach to the way of things, to emphasize the beauty and logic of authentic designs, and to show its benefits. We used well-known local materials, but paid more attention to proportions, details, quality of processing and finishing. We took a simple shape and made it vivid to attract the attention to the health problem. At the same time we kept it friendly due to tactile-warm materials, and curious due to the plasticity of its shape. We endowed the building with emotions typical of a human that admired the environment, the sea and the sunset.
The main goal of the project is to provide access to basic health services for everyone without exception. However, we also aim to improve living conditions in the region as a whole. Now the health post attends to up to 15 patients daily and sends medical teams to the villages. It provides job opportunities for medical volunteers from around the world as well as for local specialists, it works toward both sharing of knowledge and cultural exchange. Moreover, the clinic started a scholarship program for young people from the local villages. From the very beginning we worked in close cooperation with the local communities. People have gained construction skills and started to build their houses nearby. The health post became a new attraction point and stimulates the development of the region.
客服
消息
收藏
下载
最近

























