查看完整案例


收藏

下载
原始勘测图
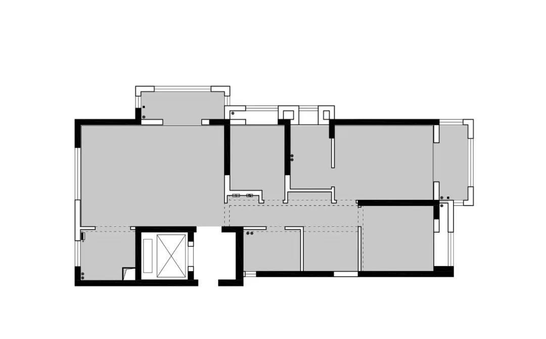
平面布局图
设计说明:
1.改变厨房门洞位置,优化了厨房及客餐厅动线 ;
2.微调了过道墙体位置,缩小了主卫生间,使主卧面积得以扩充,空间利用率得到提高。
简约灰色是一种不事张扬的色彩,静谧中蕴含着高贵的时尚内涵,随意中能给人别致的感受。
进户门左手是储物柜和鞋柜,做到了隐藏式分区储存。米色电视墙搭配黑色电视、冷灰色的地砖与全房配色和谐统一,使得空间采光的充足,光感明亮。
设计师特意在客厅构建了一个利用率超高的家庭核心区,使得客厅、餐厅、厨房连接贯通,提高了空间的利用率,加强了空间的互动性和通透感。
餐厅做了整面到顶的柜体,将部分厨房电器嵌入其中,放眼望去,精致整洁。
餐桌的白色大理石台面干净优雅,搭配黑色皮椅,衬托出空间的高级感。
简约的厨房,美得像个工艺品,360度拉伸的水龙头和橱柜无拉手设计,凸显设计的细致用心。
幸福就是简单的饭食,来自家人的精美厨艺,亲手蒸煮的香,伴随着晚餐时的欢声笑语。
走廊隐藏式分区储存,减少了因柜子带来的压抑感和存在感,各类物品做到了准确分区储存。
主卧采用粉色加米色,营造极简的舒适感,是的,家不仅仅是身体休息的地方,更是享受简单宁静的地方。
儿童房小主人是6岁小男孩,采用的主色调是蓝色,蓝色表现出冷静、理智、安详与广阔。
背景墙上的火箭、太空星系也是为小男孩的兴趣而设计的,他躺在床上,仿佛置身于无边无际的宇宙之中,享受着无穷无尽的神秘感。
主卫采用长虹玻璃推拉门,干湿分区的功能设计,采光通风极佳,生活的精致来自精心设计。
客卫白色的花洒搭配灰色墙砖,永恒经典。设计师在墙上设计了壁龛,将空间的收纳和整体色调实现了完美统一。
下班后的洗漱,细听流水的音符,家就是温馨的港湾。
客服
消息
收藏
下载
最近


















