查看完整案例


收藏

下载
序 /Preface
在土地上 我们都是洄游的鱼
循着故乡 循着生命
怀揣温暖 跃入时代之潮
土是爱 也是恨
生发新绿
掩埋荒芜
△1F | 咖啡吧台
02
永恒 /Enternity
永恒
通过岩土表达它原始的意义
回望看不见的过去
也眺望未来的希冀
缄默的岩层是一种歌唱
歌唱在季节之外 人群之外
一个阳光铺陈的疆界
△1F | 洽谈区
怎样的时代能安顿我们的灵魂
怎样的时间能安顿我们的生活
时光流走了多少泥沙
要用多长的时间
才能平息你我血液里的涛声
△楼梯间
03
轮回 /Reincarnation
一个城市的高度 源于文化的厚度
也源于土地的厚度
被掩埋的时代层层叠叠
等待发掘
在这里 土是一种象形文字
经过平平仄仄的时空
成为轮回
△1F | 沙盘展示区所有入口都通往洞穴容纳未知美的内部以无数种建构呈现细腻感知运用光明也运用阴翳空间之空包含万物平凡而丰饶。
是回忆让我们在绵延的现代中身体自如内心丰盈可持续地自处以情感应答建筑答案便是流动的
回忆 思绪 自然 触感
结构的复现纠缠变换
抛弃时间 背离隽永
生成全新的姿态 光束 心绪
△洽谈区
04
容纳 /Contain
建筑内部空余的地方
让我们更透彻地感知自然
内建筑 建筑内
崇高的自然元素灌溉了粗野主义
△2F | 艺术装置
每一个细腻的体验背后
从来不是茕茕孑立
正如时装
比包裹或裸露更重要的
是它的留白所容纳的身体形态
不谈年华与沧桑
这些词分量太重
我们谈岩石 矿物 土地
人的栖息
更深层 不可道破的静止
凡与生命有关的涂抹都有时间的痕迹
岁月从未真正平静过
亦如人们的内心
△2F | 签约区
05
芳华 /Blossom
岩土泛起涟漪
像婴儿的心跳
岁月只一个来回
人间便多了数不清的期许
如春光里的红日和晨曦
以己芳华 映照时代
△建筑外观
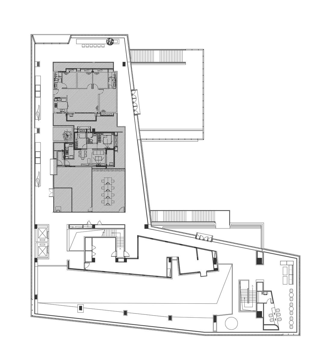
平面图
1F
2F
效果图
项目信息
项目名称:时代中国·时代芳华销售中心
设计单位:广州共生形态工程设计有限公司
设计内容:室内设计、软装设计及工程
设计总监:彭征
主案设计:丁淇、徐睿
参与设计:杨亚会、杨国良
项目后期:李永华、朱云锋、朱文烽、黄壕俊
项目业主:时代中国
业主代表:向杰、康惠瑜、李崇敬、范青、张达溪、何联杰
项目地点:广东 鹤山
设计时间:2019.04
竣工时间:2021.08
设计面积:1200
客服
消息
收藏
下载
最近
















































