查看完整案例


收藏

下载
因工作原因,所以业主喜欢回到家有一个静谧的环境,不喜欢太亮,所以设计师选用了深咖作为空间的主打色彩,让整个空间沉静下来,方便业主放松休息。电视背景墙设计师满满的储物柜,不仅可以做装饰展示柜也可以提升室内储藏空间,一举多得。
因工作原因,所以业主喜欢回到家有一个静谧的环境,不喜欢太亮,所以设计师选用了深咖作为空间的主打色彩,让整个空间沉静下来,方便业主放松休息。电视背景墙设计师满满的储物柜,不仅可以做装饰展示柜也可以提升室内储藏空间,一举多得。
因工作原因,所以业主喜欢回到家有一个静谧的环境,不喜欢太亮,所以设计师选用了深咖作为空间的主打色彩,让整个空间沉静下来,方便业主放松休息。电视背景墙设计师满满的储物柜,不仅可以做装饰展示柜也可以提升室内储藏空间,一举多得。
餐厅和客厅处于同一空间内,所以装饰上并不复杂,简单设计反倒让空间显得大气干净。
餐厅和客厅处于同一空间内,所以装饰上并不复杂,简单设计反倒让空间显得大气干净。
厨房用色干净大方,通体采用白色大砖铺贴,嵌入式设计让厨房干净得体。
吧台这里是设计师重点打造的地方,因为原始结构是有点错层结构,所以直接在抬高空间处定制了休闲区,可以在这里工作、品酒,惬意而小资。
吧台这里是设计师重点打造的地方,因为原始结构是有点错层结构,所以直接在抬高空间处定制了休闲区,可以在这里工作、品酒,惬意而小资。
卧室装修简单大气,灰色背景墙,一切以舒适实用为主,超大的储物柜设计,满足业主日常所需。
卧室装修简单大气,灰色背景墙,一切以舒适实用为主,超大的储物柜设计,满足业主日常所需。
特别定制的榻榻米,兼顾学习、休息以及收纳,为以后家庭升级做打算,木色空间简单干净,非常适合作为未来的儿童房使用。
业主二人非常喜欢看电影,所以特地用一个房间作为家里的影音室,安静的空间里,放上电影,躺在沙发上,舒适而惬意。
业主二人非常喜欢看电影,所以特地用一个房间作为家里的影音室,安静的空间里,放上电影,躺在沙发上,舒适而惬意。
浅色系装修简约大气。
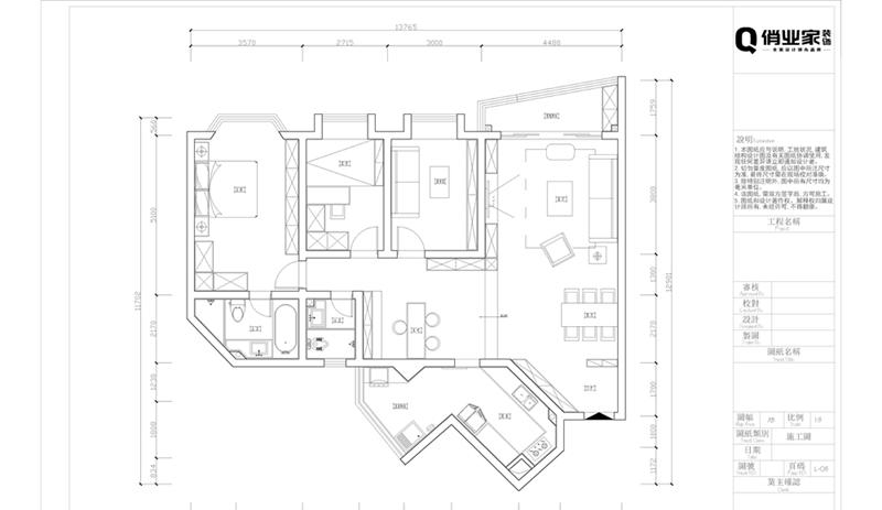
平面户型图
平面规划图
客服
消息
收藏
下载
最近


















