查看完整案例


收藏

下载
重庆装饰公司俏业家作为全案设计领先品牌,特别采用“总监负责、主案实施、助理协助”的团队设计服务模式,为你的新家集思广益,个性定制私享空间,打造新房精品工程。本实景案例是重庆俏业家装饰设计师为长嘉汇3房户型专门打造的现代轻奢风格装修案例。
——重庆长嘉汇案例内容详情——
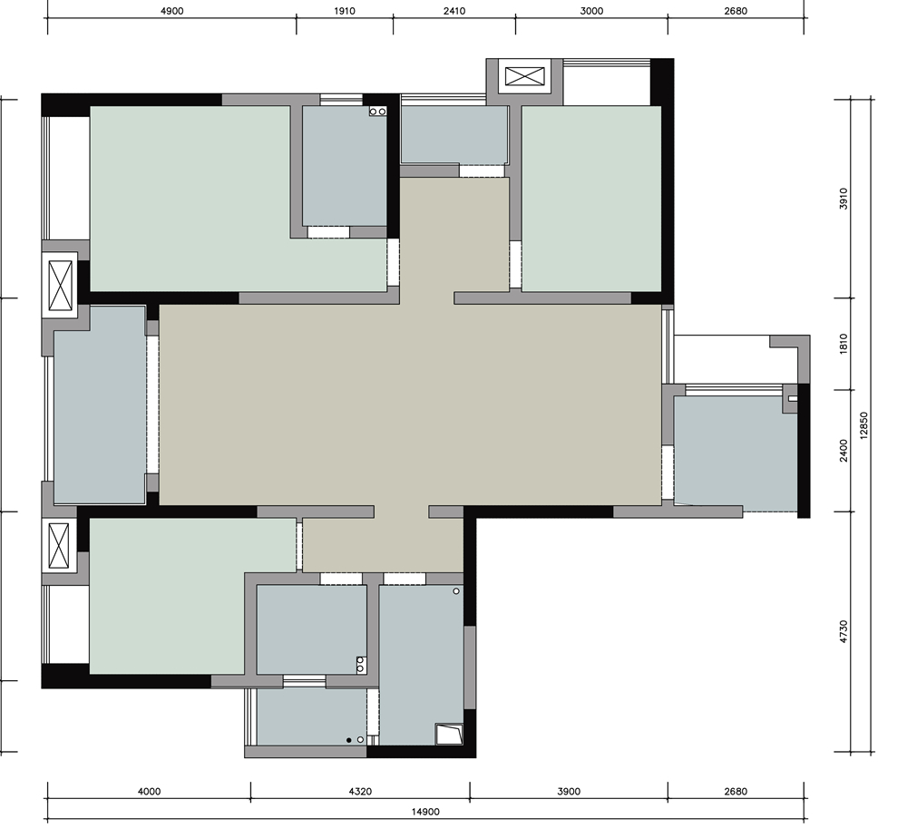
楼盘:长嘉汇
区域:重庆市南岸区
面积:124平
户型:3房
装修风格:现代轻奢
设计总监:迟力君
软装设计总监:吴萱
【业主需求】
业主喜欢简约却有质感的风格,希望设计师能够充分利用室内空间,减少空间浪费。
【设计思路】
1、结合客户需求将中间院馆并入主卧改造成套间书房功能;
2、将原有过道并入卧室,主卧和儿童房的卧室门采用隐形门的处理手法,美观时尚的同时提高空间利用率。
【细节刻画】
1、客厅装修:整个客厅空间用浅黄色墙布装点,金属线条的装饰让空间变得时尚具有质感。顶面处理比较特别,设计师将吊顶做成了“喇叭”的造型,这样一来既不会影响视觉效果,又恰到好处的美观。
2、餐厅装修:餐厅空间紧连玄关位置,设计师将玄关进来的垭口直接扩大,这样让餐厅的采光变得更好。餐厅处设计师特地设计了满满一大壁柜子,增加室内的收纳能力,保证后期充足的储物空间。
3、主卧装修:主卧空间用色温馨舒适,驼色系装点空间,打造温馨舒适的睡眠氛围。
4、书房装修:书房和主卧是套房设计,但是书房离主卧又有一段距离,这样即使夜间在这里办公,也不会影响到休息区。黑白系装点,时尚大气。
5、次卧装修:老人房装修舒适自然,浅咖色装修沉稳内敛,为老人打造一个静谧的休息空间。
6、儿童房装修:儿童房和主卧位于同一侧,所以也是做的隐藏门设计,儿童房的同色相对来讲就活泼大胆一点,浅绿色的空间里面,点缀明黄色,非常适合小孩子,满足小孩子的童趣与天真。
7、卫生间装修:同色系卫生间装修加以金色点缀,简单干净。
客服
消息
收藏
下载
最近
















