查看完整案例


收藏

下载
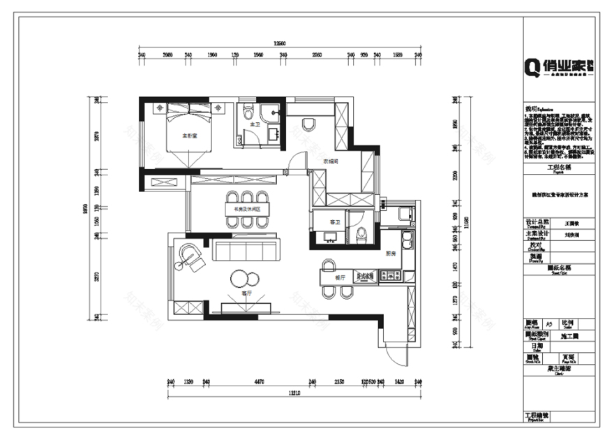
重庆装饰公司俏业家作为全案设计领先品牌,特别采用“总监负责、主案实施、助理协助”的团队设计服务模式,为你的新家集思广益,个性定制私享空间,打造新房精品工程。本实景案例是重庆俏业家装饰设计师为融创滨江壹号3房户型专门打造的现代风格装修案例。
——重庆融创滨江壹号案例内容详情——
楼盘:融创滨江壹号
区域:重庆市沙坪坝
面积:90平
户型:3房
装修风格:现代风格
设计总监:王国钦
首席设计师:刘欣桐
软装总监:吴萱
【业主需求】
常住人口1人,风格不要太复杂,简单清爽就好!
【设计思路】
空间的现代风设计中融入中色系的浅灰色、奶咖色,搭配胡桃木色,虽没有金属的光泽、没有黑白灰的高冷范,却有着细腻的木纹,温柔而有质感!
【细节刻画】
1、客厅装修:打开次卧,与原客厅合并。客厅空间纵线拉长,整个格局变得十分大气通透,空间的呼吸变得更加轻盈。
2、餐厨装修:开放式餐厨设计完全打开了小三房的紧凑格局,运用白色的石英石餐桌桌面搭配胡桃木色的柜体,视觉上相当舒服,也充满时尚格调。
3、休闲区装修:休闲区背后的定制柜不仅在款式色彩上与空间风格统一,更采用半开放半封闭的设计,兼具收纳和展示功能,让整个空间看上去更年轻。
4、主卧装修:卧室空间摒弃繁杂的造型或装饰,简单的三色打造出干净明亮又惬意的休息空间。
(主卧-书房)
(主卧-衣帽间)
5、卫生间装修:抛弃多余的装饰性,注重实用功能和时尚感,浅灰色墙地砖足够经典。
客服
消息
收藏
下载
最近













