查看完整案例


收藏

下载
重庆装饰公司俏业家作为全案设计领先品牌,特别采用“总监负责、主案实施、助理协助”的团队设计服务模式,为你的新家集思广益,个性定制私享空间,打造新房精品工程。本实景案例是重庆俏业家装饰设计师为龙湖西宸原著三居室户型专门打造的现代风格装修案例。
——重庆龙湖西宸原著案例内容详情——
楼盘:龙湖西宸原著
区域:重庆沙坪坝大学城
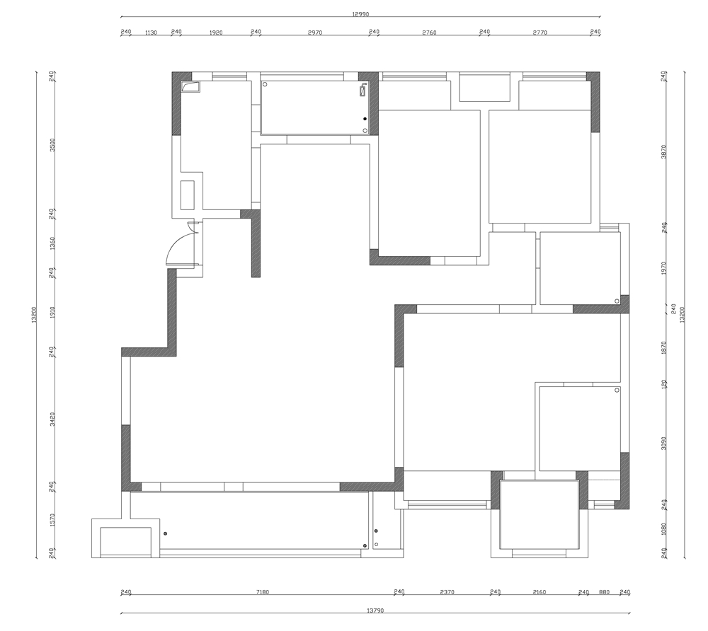
面积:套内140平
户型:3室2厅2卫
装修风格:现代风格
首席设计师:袁铮
软装设计师:罗梅
【业主需求】
本案业主一家三口,作为一套改善型住房,男业主希望新房能装的大气、通透,舒适性更好一点,而女业主则对家庭生活习惯有更多功能要求。比如有一个玩PS4游戏的舒适环境,有放置钢琴的空间,hanzheng房、anmo椅来缓解一天的疲乏等等。
【设计思路】
1、开放式餐厨+双动向设计
两边都可以进出,无论是通风还是操作的方便程度都得到大大的提升。空间更加开阔,生活动线更加灵活和科学。
2、阳台一分为二,多用途更实用
阳台区域合理利用,更符合这家人的生活习惯和家庭需求。
3、主卧套房设计,进一步优化舒适度
满足业主对于功能的需求,hanzheng房+衣帽间+卫生间+anmo椅+投影仪,最大化享受居住的舒适度。
【细节刻画】
1、玄关装修:入户即见端景装饰,灰黑橙拼色挂画,正好呼应客厅的配色,整个风格的连贯性更加流畅和谐。入户进门右手边就是鞋柜,半开放的设计拿取更为方便,搭配内置灯带光源,不仅实用,更考虑到了居者使用过程的细节问题,从进门换鞋开始,就能让你感觉十分舒适。
2、客厅装修:客厅以黑白灰为主色调,局部橙色作为点缀。简洁的造型、完美的细节,营造出时尚、舒适与美观并存的感觉。业主夫妻作为PS4游戏爱好者,电视背景墙设计是他们非常看重的一个环节。因此设计师在设计电视背景墙是从3个方面入手。一视觉上,白色花纹石材上墙+电视内凹设计;二实用上,预留部分空间作为收纳区和展示区;三娱乐上,超大容量体积,满足一个85寸电视大尺寸高清屏,让业主能在客厅尽享PS4的游戏爽感。
3、餐厅装修:开放式餐厨设计,打掉不必要的墙体实现双动向布局,瞬间让动线变得从容 ,便利性得到大大的提升,再也不会有那种局促感。
4、厨房装修:对于喜欢烹饪的女业主来说,这个厨房的设计让她赞不绝口。超大的台面操作空间,齐全功能设备,烤箱、洗碗机,嵌入式冰箱,操作起来特别方便。
5、钢琴区装修:一架黑色钢琴,浅灰色墙面搭配一个简单的墙饰,呈现了一种素净的感觉,显得客厅十分文艺。
6、书房装修:开放式书房设计让空间看起来更加明亮开阔。沙发背后放置书桌,使得分区更明显,更能让人感觉安稳踏实,书桌背后一大壁多功能书柜,也能满足日常的储物功能。
7、休闲区装修:从实用的角度出发,阳台一分为二,一半晾晒,一半休闲,空间利用率大大提高了。该区域紧挨书房的旁边,工作累了,业主可以就近走到一个舒适区域进行放松。
8、卧室装修:主卧采用套房设计,衣帽间+卫生间+浴缸+hanzheng房+投影仪+anmo椅。居室整体采用浅灰色搭配,床头深灰色软包加上浅灰色背景墙,一深一浅的色调让风格的高级感瞬间渲染出来。顶部安装的磁吸灯颜色可调节,想要的氛围都能拥有,也可语音控制。电动窗帘,anmo椅的配置,更让舒适度倍增。除了在客厅能玩PS4,卧室也能用投影机玩,不同的空间,给予不同的体验!素雅的灰色调,玩游戏时最大程度减少眼睛的疲劳度,在休息时也利于睡眠。
9、卫生间装修:主卧卫生间,选择灰色瓷砖,时尚简洁,耐脏耐磨,容易打理。
10、hanzheng房装修:中间区域是改造出来的hanzheng房,家用hanzheng房,几个平方就足够了。
11、儿童房装修:床头背景墙采用多色块艺术漆涂刷,充满了童趣的味道,靠床头位置布置一张简单的书桌椅,方便孩子有足够的学习区域。
12、儿童游玩区装修:空出一间房拿来做儿童玩耍区,也可以作多功能房使用。墙面采用艺术漆涂刷,自然纹路,上墙效果实在太美了。用手触摸,你可以感受到艺术漆的颗粒感带给你对材料认同。
客服
消息
收藏
下载
最近


































