查看完整案例


收藏

下载
户型分析:1、原户型的采光面比较小而且很分散,没有很好的共享。
2、空间区域分布较独立,让原本不大的空间显得更加窄小。
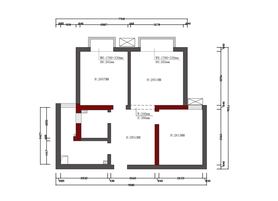
3、全屋53㎡,作为三口之家使用,储物空间尤其重要。
4、项目本身承重墙所分布在每个房间的重要位置,(红色填充部分为承重墙)保留两房,户型的墙体可变性很小。
平面要点:厨房利用高柜包住外凸墙体改为开放式厨房,卫生间改变开门方向,原墙体内收一些,将洗手池和美妆柜、茶水柜做在一个面更整体,小卫生间满足淋浴与泡浴,主卧原开门处做成内嵌式冰箱位,进出改为从客厅投影幕布方向,客厅与卧室共墙往卧室方向内退32cm,保证卧室1.9m榻榻米床与3.2m大衣柜的使用情况下,拉长了客厅的观影视距,儿童房在保证空间开阔度的同时,储物、学习、玩耍都兼顾在平面动线内,整个空间几乎利用大量的定制柜进行功能及区域划分,将5个+的储物需求分类设计装进了这套居室。
BEFORE
实景照
入户空间是一个大的集合地,需要满足的功能很多,在划分与穿插上我们从使用动线、尺度、空间关系、通透度等几个方面进行了综合考虑。
鞋柜需容纳一家三口的鞋子同时,左边通门兼具收纳储物(戴森吸尘器、部分打扫用品及弱电箱隐藏)。
全身穿衣镜考虑在入户门靠厨房高柜的侧面,不占空间又很实用,厨房改为开放式,让原本很暗的空间能有自然光的互借与流通。
公共空间的基调属于沉稳又深邃,就像这个家庭的小朋友一样,像个小绅士。
考虑日常上班、上学、早晨洗手间拥挤的情况,因此将洗手区独立放置在外,进出门洗手、消毒、打理一下也很方便
BEFORE
美妆储物与茶水功能结合洗手池做成一个整体,统一材质更美观,不同方向的开放面使用,功能性也互不影响,因为每个区域需要满足的功能很多,所以餐厅与客厅分隔处我们整体抬高,将层次进行一个梳理。
客厅直接选择投影,将主卧推拉门设置在幕布背后,取消掉电视柜之类的大件柜体,将区域以地台层次高低进行划分。
客厅书柜考虑放置小米净化机及打印机等家用电器,所以下部分的柜体会比常规的高10cm左右,非常用物品,因此沙发日常挡住也不会很影响。
客厅进行抬高后,原飘窗高度和客厅的高低差就形成一个小休闲位,小朋友平时在这里看书学习,大人也可以在这喝咖啡休憩,进卧室的地台高度与飘窗高度齐平,让空间的层次能有呼应。
梳妆是一件自在的美事,所以我们也给倩姐考虑了一个专属于她的梳妆空间,小巧而精致,亦如她人带给我们的感观
幕布旁边的储物柜,更多是用来储存家中常备药品及一些小零件的东西,狗窝的小地盘也在此。
我们将主卧与客厅之间的墙体拆除,用长虹玻璃代替实体墙,将整个空间采光共享的同时也保证了主卧一定的私密性,在保证主卧实用率及舒适度的前提下,合理将客厅空间扩大,增加客厅视距与舒适度。
▼主卧
BEFORE
衣柜拉通做整面,榻榻米床体也考虑为储物形式,利用抬高空间与原地面的高度差关系,将原本400mm高的榻榻米,从视觉上减到200mm左右,空间不大的情况下,让层次感更轻巧一些。
吊挂杆可以满足家居服和不用立马放进衣柜的衣物,很多时候,讲究的生活确实意味着更琐碎,无论空间大小,我们都竭尽全力去完成每一个托付给我们关于家的理想。
长虹玻璃与木纹的碰撞,牛皮与亚麻质感结合的主沙发,华丽与质朴,硬朗与柔软,这些对立,都是美丽。
▼儿童房
为满足小朋友的小心愿,同时又能将家中他的物品尽量储存在这一空间内,我们特意设计了这套定制的梯步床,上面玩耍,下面睡眠,左边墙面整体做成了黑板漆,给小朋友一个自由描绘美好的空间。
根据高低床的上下部分,衣柜也分为了当季衣物存放及换季衣物上下两个柜体,梯步下方也融入了储物功能,放一些小朋友方便拿取的东西。
▼厨 房
厨房的高柜内包含了房屋的结构柱,所以深度尺寸并不大,所以用来存放杂粮干货以及小电器、杯子之类的物品。
底板灯在这个空间是十分有必要的,提升了使用感官。
BEFORE
只有2米的橱柜台面,却收纳完进去所有倩姐列出的用品。
▼卫生间
卫生间将洗手池移到外面后,内部空间兼顾了泡浴和淋浴。
每个人心里一亩一亩田
每个人心里一梦 一个梦
一颗啊一颗种子
是我心里的一亩田
用它来种什么
用它来种什么
种桃种李种春风
开尽梨花春又来
那是我心里一亩田一亩田
那是我心里一个不醒梦
——三毛《梦田》
客服
消息
收藏
下载
最近


































