查看完整案例


收藏

下载
( 负一层平面图 )
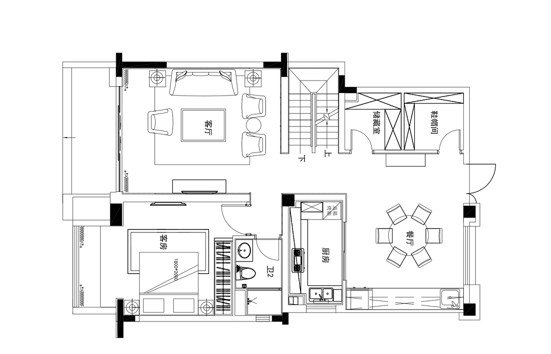
( 一层平面图 )
本次案例为精装修别墅,业主作为节假日度假休闲用,对整个房型格局很满意无需大动,本案意在规划空间布局,优化扩大主要使用空间,让功能、生活、休闲三者相处更为和谐。设计以人为本,为人设计以心为本。视觉整体以描摹出雅致、高级的基调,展现出精致高端的生活态度。
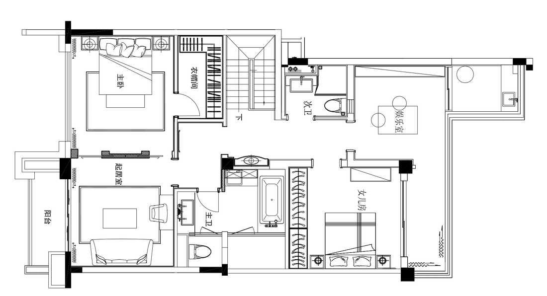
空间架构:一家人日常居住、学习、休闲。负一层满足亲友娱乐、接待功能及男主人的办公环境。一楼客厅由于家里人员较多,沙发的组合则多一些。三层楼视觉要求满足三代人的审美需求。
业主家庭组成:日常(夫妻两+两个小女儿)+父母。业主对于居住环境的要求是:精致、华丽,注重高品质和设计感,能够借助各种现代材质及装饰技巧,带来无尽的优雅,时尚的风华。
金属和大理石这两种自带奢华气质的设计元素,几乎是轻奢风家居中不可或缺的存在。它们一个复古精致,一个贵气冰冷,两者的碰撞渲染出一股无法抵挡的艺术张力,将居室的现代感与不俗格调巧妙地呈现。而沙发丝绒材质带来的复古气息,也能与金属铆钉相得益彰,皮革沙发不露痕迹地衬托着空间的艺术美感与质感,让每个角落都成为凸显生活品质的地方。
设计师大胆采用了“模糊界限”的设计手法,女主人及女儿们一起烘焙,增加亲情交流。父母住在一楼方便进出,将厨房和餐厅两种功能融于一个空间,无论从哪个角度望去,都能一览无余,很好地解决了传统布局中缺乏互动的缺点。
餐桌、餐椅、多功能柜品牌---博领
因业主时常会在家中宴客,负一楼台球室和花园是男主人特别要求的。而二楼的“闺蜜客厅”更是深得女主人的喜爱,来客时,这儿便成闺蜜谈天说地、放松心情的好地方。
起居室沙发、茶几、休闲椅品牌---博领
红色布艺沙发的摆放,让整个空间的氛围更加浓郁,尤其是在冬日里,一杯红茶就能暖人心扉,拉近与旧友的距离。
主卧大色调呈现为奶咖色、米杏色结合,使用带有高级质感的中性色调,通过金属元素巧妙混搭让空间气质得以提升,尽显现代时尚优雅的风范。
主卧床尾凳品牌---图兰朵、主卧床品牌---博领
主卧床头柜品牌---博领
在轻奢风格的空间里,你可能感受不到满目的奢华,但其实每一个简单设计的背后,都有一股直撩心底的优雅魔力,等着人们去发现,去品味。
女儿房的墙面都采用透气环保的乳胶漆和清新花纹进行装饰,温婉可人的色调配以舒适清新的床品配饰,清秀的米色中有些许可爱的粉色加以调和,让女儿在粉色的梦里快乐地成长。
女儿房十斗柜品牌---博领
女儿房承载着纯真美好的梦,靠墙增多一个储物空间,美观和功能都饱满而活泼了。
在这个空间可以随心所欲,无论看书画画还是陪女儿玩耍,躺在帐篷里给她讲故事,让她遨游在想象的乐园,陪她无忧无虑地成长,然后把给她买的玩具填满整个屋子.......
宽敞舒适的客卧空间,床头是一整排的软质靠背,飘窗上垫上一层毛毯便可以读书一整天,累了眺望远处的风景,为老人带来闲适轻松的居住体验。
客卧床、床头柜、十斗柜品牌---博领
与其他风格相比,轻奢风似乎多了一丝与生俱来的艺术气息。它将艺术美学与生活时尚完美融合,低调、内敛之中又带有一丝优雅和精致,搭配各种装饰加以衬托,都能在不经意间彰显出主人的个性品味。
客服
消息
收藏
下载
最近




























