查看完整案例


收藏

下载
当你从繁复的都市中回归能完全包容的栖息空间,更希望住所给予自己的是一种安慰和疗藉,让全身心都能得到放松与自在,而不是透不过气的冗杂感。合理的简化居室让空间变得雅致舒适,造型干净利落的顶面与浅色木饰墙面营造了一种温暖、自然、舒适的空间感受。
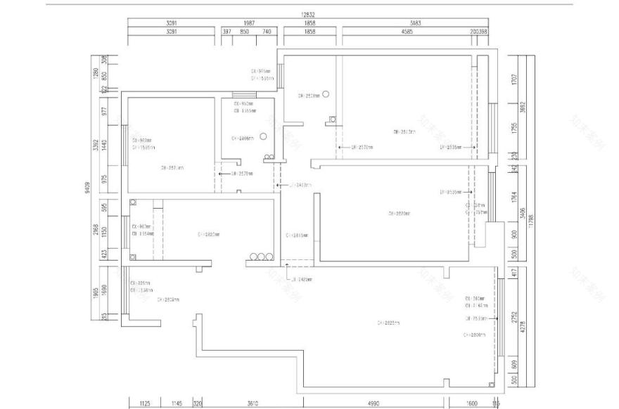
//原始测量图//
“简”是一种内涵一种修养,一种平静,慢节奏的生活方式,宁静自然。清雅代替浮华,让静然遮掩喧嚣,既时尚又不失让人如沐春风的轻松,以最贴近自然的生活方式,在设计细节上不断的发现惊喜,让人心生暖意,为您勾勒出了一个有态度的生活美学之家。
//平面规划布置图//
原有结构是三室两厅,业主明确要求改成四个房间,卫生间保持2个,客、餐厅、阳台保持完整性。由于家庭人员比较多,各个功能区域储物空间要充足,孩子学习及男主人办公功能必须齐备,考虑到家里有小小孩,不想要墙纸,方便后期涂画后进行调整。业主喜欢原木的感觉,整体氛围要求温馨舒适且实用。
餐厅的实木桌椅是业主心头之好,墙边的餐边柜,既可充当展示柜,又能合理利用空间,极大的满足了日常物品的收纳需求,美观又实用。就餐的时候能让人在嘈杂中,得到一份难得的柔和静谧之感。
厨房采用简约的现代化设计,内嵌的集成电器与无把手的橱柜相结合,为收纳物品提供足够空间,充满个性的几何形地砖瞬间让空间变得活跃了起来。
卧室采光良好,原木地板和柔软的地毯加以高级灰的床品,柔和的照明让整个卧室都十分舒适,以简洁的视觉效果,营造出时尚前卫的氛围。窗边桌椅的设置也是现代简约在日常生活中体现出的实用主义。
壁龛暗藏的灯带设计,既有照明功能又能渲染氛围,主卫绿色格砖的加入大胆前卫,顿显高级,充满魅力。干湿分离带来的是一种情趣舒适的卫浴体验。
次卧是十几岁儿子的房间,这个年纪的男孩子已经不再喜欢五彩的颜色和可爱的图案,处处期望自己有男子汉的气质。所以学习休息相结合的空间要做减法,简约而有动感,最大程度的表现清爽、舒适的气质,一个好的卧室氛围对于孩子的性格和审美培养有极大的好处。
老人房全木质的软装家具,空间的情绪满眼清雅与宁静,给予老人高质量的睡眠环境。一如现代简约主义美学遵循“少即是多”的原则,减少杂乱,营造冷静淡雅的家居生活氛围。
//现场开工仪式//
客服
消息
收藏
下载
最近












