查看完整案例


收藏

下载
为了将自然光更好的引入到室内,将原本书房和客厅之间的部分墙体拆除,做成钢化玻璃。这样做扩大了空间感,增加了采光,也增加客厅和书房的互动性。玻璃后面安装了百叶窗帘,家中来客时书房变客房,拉上百叶帘可以保证隐私。
客厅地面是600*1200的灰色亮面通体瓷砖,工字型错缝铺贴,在当地的建材市场采购,价格很便宜。
配色方面大面积白+灰+局部粉,购买的沙发为灰+粉,窗帘也是呼应的灰+粉拼色窗帘。
其中单人沙发为:“北欧表情”经典款,绒布材质。
所有的成品家具都是网购,没有在实体店购买家具。
为了保证电视背景墙的效果,我们将进入主卧室的门设计成隐形门,在电视墙右侧也设计一个造型对应隐形门,形成对称效果。
为保证隐形门效果,朝客厅面门不设计门把手,开门时直接往里面推,安装隐形门专用铰链,自动闭门。
朝主卧室面门设计了内嵌拉手,方便开门。
客厅选用了一张“蒙德里安”风格的地毯,同时为了跟地毯呼应,墙面挂画也是延续这一风格。保证软装在空间的整体性,一致性。
原本客厅效果图。
客厅看向玄关,很好的还原了原先的设计意图,实际效果要比效果图更加棒。
拉上百叶帘,书房变客房,百叶拉伸设置在书房,保证客人隐私。
电视墙、800*1000的烤漆五斗柜,孔雀竹芋绿叶蓉蓉,斗柜和电视是重新购买的一开始买的品质感很差,退了重新买的,也是最后到货的家具。拍摄当天到货的。
客厅一角,蒙德里安地毯和挂画,分别从两家店铺网购。 非常考验设计师的软装整体搭配实力。
客厅看向书房,百叶帘。三人位沙发窗帘做好以后,让沙发厂家邮寄色卡来,对比窗帘选的色,找的接近窗帘的灰色。
拆除墙体后明显扩大了空间感。
厨房地面选用的300*300的工艺小花砖、搭配的白色美缝,墙面300*600的工艺瓷砖,搭配黑色美缝。
橱柜定制的志邦橱柜,大约15000的费用,下柜是进口双饰面柜门(木纹色),台面白色石英石,上柜是吸塑门板。
前期在门板选色的时候就考虑了需要和后期的全屋定制的木纹呼应,因此选了一款浅木纹。
台面在所有石英石台面中选择了一款性价比非常高的白色石英石,看起来很高档,价格很亲民。
上柜的门板是白色吸塑门板,没有和下柜门板材质一样选择木纹色,是因为故意做的一些差异化设计。
下柜设计了嵌入式洗碗机,懒人的最爱,水槽下面安装了饮水机,水槽上有直饮出水口,龙头是带增压的抽拉式的龙头,为了方便后期清理水槽。
这些设备的安装都需要提前做好规划,预留水电。
吊柜下方设计了灯带,解决开启顶灯后,灯光打到头部存在阴影,影响正常烹饪操作问题。
原厨房是单扇门,拆除部分墙体后,改成4扇玻璃移门的形式,改善厨房的格局,增加采光和通风,同时也增加厨房和餐厅的互动性。
由于厨房内有一个逃生通道门,且必须保留,于是橱柜被一分为二,形成两个相对独立的区域。南面是水槽+灶台的操作区;北面是冰箱+电饭煲+微波炉+碗碟篮的电器区。
冰箱当初准备买白色的,但是白色的要么尺寸没有合适的、要么就是价格太高就没有考虑了。后来买的这款金色的,打算外贴白色的冰箱膜,膜也买来了,贴的时候发现膜与冰箱表面里面的气泡无法处理,而且膜的胶水很难清理,时间久了必然都会遗留在冰箱上面,于是贴到一半的时候撕了。金色也挺好。
餐厅设计成卡座的形式,主要原因有三。
1.增加收纳空间,餐厅四面墙只有一面是实墙,其他三面是门窗洞,不适合设计酒柜,设计成卡座后,两边设计成高柜,解决餐厅无酒柜的问题。
2.结合餐厅吊顶和风管机,卡座两边高柜到顶,中间空出的空间刚好设计风管机室内机,解决风管机回风问题。
3.同时可以让餐桌和卡座居整个餐厅空间的中心,让卡座、餐桌、吊灯、挂画、风管机出于一条中轴线上,形成一种对称美,让空间整体感十足。
设计卡座后,平时餐椅是收纳到桌子内,不占用空间。留出了足够的空间,保证了从餐厅进入厨房的通道的舒适性。三幅画分别对应三个餐厅吊灯。
餐桌是“北欧表情”的,餐椅没有选择配套的,而是单独选择了这款牛角椅,搭配起来也很出彩。
厨房移门特地选择的这款窄边框,很简洁,耐看。用起来也很方便,很好的扩大了空间感。
虽然厨房安装了凉霸,可是夏天在厨房做饭依然会“汗如雨下”,还是架不住合肥的这个高温天气。
所以当初在设计餐厅的风管机室内机的位置时也是考虑到了这点,风管机正对着厨房,这样在厨房做饭时打开厨房门,让凉凉的冷风带走你的“哀愁”。
设计就是需要来源于生活,并且解决生活中会出现的问题。
从餐厅看玄关。
原餐厅效果图
从餐厅看厨房,吊灯为可变色光源,白色、中性色、黄色三个颜色。
从玄关看餐厅,客餐厅一体故而餐厅窗帘同客厅一致,为灰+粉,3/7比例拼色窗帘。
卫生间:干湿分区设计。
这个是双面盆浴室柜,要做双面盆正常长度不低于1400mm,低于1400mm不建议做双面盆的设计。
龙头是入墙式设计,需要在水电改造时将龙头的预埋件,预埋到墙体内。 那么水龙头的定位如何确认呢?首先高度,建议为台面高度+150mm。
这个高度相对比较合适,至于具体多高要看定制的浴室柜的高度。 此次就是龙头左右定位,最佳位置是面盆的中心位置,这样从正面看起来龙头居水槽中,更加美观。
最后就是镜前灯的定位也要居中,保证镜前灯、龙头、面盆居同一条线中。
地面灰色+白色六角瓷砖,墙面爵士白六角瓷砖,铺贴到1200的高度,1200以上为白色乳胶漆。
浴室柜实木烤漆双面盆浴室柜,台面天然爵士白大理石,定做价格4000+,小厂家。话说回来在预算允许的情况下,建议大家尽量选择大品牌,小品牌的服务一言难尽。
当初我们定的是方形的面盆,老板满口答应,等到现场的时候缺是椭圆形的,重新做又需要等很长时间,于是妥协了,就没有换了。
卫生间是选购的800*800的仿爵士白大理石纹理的通体砖,然后水刀加工,地面为400*400,墙面400*800,淋浴区地面拉槽100*100。
马桶科勒的,移动了位置,改成墙排马桶,下水直接接到主排污管道上,同层排水下水更顺畅。马桶边上预留了插座,方便后期加装智能马桶盖,马桶边上设计了一个小壁龛,收纳卷纸一类的物件。
因为做了墙排马桶从原墙面凸出20公分的厚度,为了让卫生间看起来更加完整,将花洒改到对面,原来的位置设计了壁龛,壁龛内放置洗浴用品。
再也不用买单独的五金挂件了既不美观,还容易磕碰。
卫生间的五金都选用的黑色款,和浴室柜的龙头,以及卧室门的门锁颜色保持一致。
一字型淋浴房实体店订购,8mm厚钢化玻璃,1500,价格美丽。
全屋地面都预埋了地暖水管,卫生间安装了暖气片,平时可以当做毛巾架。
到了冬天,宝宝的小衣服什么的洗干净了直接放到上面一会就可以烘干,非常好用。
马桶边上一定预留个地漏,原本没有的话在水电改造的时候也要拍加一个,方便后期拖地排水。
主卧室地面实木地板(大国地板),床头墙面刷的粉色乳胶漆(色号:立邦:RC0079-4 春色撩人),女主人中意的粉色,其他墙面白色乳胶漆,顶面做简单的吊顶处理,没有设计灯带。
由于有步入式衣帽间,没有衣柜占用主卧室的空间,主卧室尺寸更加舒适,看起来很宽敞。
窗帘选色的时候,墙面乳胶漆已经做好,带着乳胶漆色卡选是粉色,另外加了蓝色,做成2+6+2的拼色窗帘,窗帘材质选用的细棉麻材质,遮光性相对好一些。地毯网购,选择了几何形图案的这款,蓝色的选择也是考虑和窗帘的蓝色呼应。
床头原本已经选购好了装饰画,女主打算后期挂结婚照,也充分尊重她的想法。毕竟生活是他们的。
网购的1.8米的实木床,现场组装,床头柜单买,白色匹配其他家具。
顶面萤火虫吊灯,找的一家当地的供应商实体店采购,价格比网上还便宜很多。
床品选择的灰色四件套,主要考虑灰色颜色百搭,其次就是灰色比白色耐脏。
从主卧室看衣帽间。衣帽间是主卫改的,门原本在另一面墙,跟主卧室门一样朝向,朝西开,封闭以后,从南面墙体开了一个门洞,打算做双扇谷仓门。
后来门洞开好后,发现墙体是空心砖的,无法安装谷仓的轨道,膨胀螺丝不好固定,虽然也在网上查阅了资料,也有办法去解决,但是还是觉得有风险,因此放弃了谷仓门,做了平开门。
虽然没有谷仓门颜值高,好在也挺好用。
当初设计的效果图。
后期取消了墙板背景墙,换成了彩色乳胶漆。
谷仓门也因实际情况取消。
这面墙就是原衣帽间的门洞,封闭后,网购了一个铁艺的英文字母挂架,可以挂包包。
simple的意思是简单的、单纯的,用意是希望男女主在这个浮躁的社会中可以一直都保持一颗单纯的心。
同时顶面的射灯打下来的光影也很有美感。
这个化妆台以后会摆满女主各式各样,超级多的瓶瓶罐罐,美美一天都会从这里起航。
飘窗小景,慵懒的午后,抱上一本书,一杯红酒、咖啡。感受时光静好。
多功能房沿着打掉墙体后做成的玻璃窗做了2.2m长的大书桌,书桌宽度550,这个书桌可以同时满足2个人一起使用,办公休闲两不误。书桌后面做了正面的柜子,增加收纳空间,其中左边柜子是翻板床,柜子内部做了镂空格处理、提升设计感和品质感,中间做成玄关柜。拉伸层次感。
原书房效果图
翻板床打开后的状态,床垫在内部已经被绑带固定好,翻下来就可以用,只需要拿来被子枕头就可以入寝。
百叶帘的控制权在书房内,来客时候拉上百叶帘就可以保证隐私。让客人有安全感。
书桌特写,书桌上方设计了2个单头吊灯,作为局部照明使用。右侧购买的成品置物架,放置一些绿植和零食一类的物件。窗帘、飘窗垫都选用草绿色的。增加书房的生机。
空间饱满层次丰富,一白一黑两幅画各居墙面中线,点缀空间。
关上翻盘床后就是完整的书柜,让人难以发现其中奥秘。
当初设计的效果图
很好的还原了当初的设计,设计不仅仅是停留在纸面上,需要很好的执行力,才能保证设计安全落地。
砸掉飘窗做成书桌书柜一体柜。地面也是实木地板(大国地板),墙面选了一个浅蓝色乳胶漆(立邦色号:gc5660-4 寒馨)。
窗帘选择了深蓝色和柃檬黄,深蓝色呼应墙面蓝色,柃檬黄提亮空间。
三幅可爱的动物挂画,床头2幅,对应2个射灯,其中一幅画带有蓝色也是为了跟墙面乳胶漆呼应,床尾一幅画放置在斗柜上。
衣柜的最里面的一扇柜门做了特别的处理,下面内部镂空做收纳,上面柜门超过床头柜高度,不影响柜门的正常开启。
床头的开关和壁灯位置有些偏移,没有居中,因为开始设计的是1.2米的床,所以开关和壁灯也是按照1.2米预留的,后来购买床的时候临时换成了1.5米。
衣柜的拉手网上购买的,同等款式的拉手实体店铺价格要4000+贵的离谱,我们网上采购的1500左右,主要是长的拉手很贵一只就要80-90左右,有四种不同尺寸,分别对应不同尺寸柜门的。
主卫改的步入式衣帽间,改了门的位置,通风和采光都变的更好了。现在主卧室窗户的光线可以直达衣帽间。同时衣帽间的窗户和主卧室窗户直通,空气可以直接贯穿,衣帽间需要干燥的环境,这样的设计很好的将湿气排出,保护衣物不受潮。内部格局也合理分配,长衣短衣,叠放,都按照需求设计。
柜子没有做柜门,设计的全敞开式的,除了顶面设计了射灯,柜内也设计了灯带,方便拿取衣物。
窗户下口设计的是抽屉,放置内衣和小物件,女主人的化妆品梳妆台放不了的,全部会汇集到这里
生活阳台地面木纹砖,墙面300*600白色瓷砖,阳台西面设计洗衣区域。为了不影响采光和美观,因此没有设计晾衣架,设计了干衣机来解决晾晒的问题。洗衣机的上水和下水以及电源都设计在左边的柜体内部,隐藏起来。尽量不要在洗衣机后面做上下水和插座,这样会增加柜子的深度,增加后期安装维修难度。左侧柜子上做了一个小的水池,主要是考虑后期手洗一些小的衣服和物件。柜子上做了一个娄孔隔板来放置常用的洗衣用品。主要也是考虑不用开关门,方便拿取。
干衣机现在已经很普及了,冬天的时候天气冷,温度低,湿气大,洗好的衣服不容易干,干衣机可以很好的解决这个问题,干衣机的尺寸和洗衣机基本一致,常规尺寸都是850*600*600。
在设计干衣机的位置的是时候可以考虑左右并排放,也可以考虑上下放,主要还是阳台的宽度。宽度足够宽就左右并排放,不够就上下放,这个案例是上下放置的。干衣机是可以不留下水的,有存水托盘,定期清理把水倒掉就可以,只要留一个插座就好,如果喜欢简单不想定期清理托盘存水,也可以选择下水管排水,只需要在水电改造的时候预留一个下50水即可,然后把下水软管插入50管里面。
这个案例把干衣机的下水留在墙面,一直向下,接个三通,跟洗衣机的下水汇到一路,排入了同一个地漏。阳台同卫生间一样,最好多预留一个地漏,方便后期拖地排水。
动态图
阳台东面空间做了一面大柜子做收纳,中间镂空部分放绿植和小物件。
柜子内部格局也做了合理的划分。左下角的空间1350mm高,后期定制洞洞板。可以把戴森吸尘器和各类拖把、扫帚、簸箕都挂到洞洞板上。右下角的空间可以放置1个26寸的行李箱(495*270*725)。
动态图
电梯厅南面的空间是开放商预留的鞋柜空间,直接做了一个顶天立地的大鞋柜。
鞋柜设计成四层区域:第一层:放置换季鞋子、高帮鞋,第二层:放置钥匙、包、伞之类的物件
第三层:放置当季常用鞋子
第四层:放置拖鞋,镂空设计方便更换鞋子
鞋柜对面是一个换鞋凳,换鞋凳还没有来得及买,这个是客厅沙发脚踏。
穿衣镜购买的无边框的,女业主喜欢简单一点的,安装方式是双面胶和免钉胶结合粘贴。
大门贴的毛毡,因为整个公共区域墙面都是白色乳胶漆,所以入户门为了保证整体性也是买的白色毛毡,这个毛毡是设计师测量,下单,安装的,安装还挺费劲在业主的配合下还花了2个小时才完成。
玄关和走道特意设计的黑板墙,一是做为临时的记事板使用。二是以后有了宝宝,专门给宝宝画画用的。有了黑板墙妈妈再也不用担心宝宝在墙上乱画啦。黑板墙上面的画是女主自己画的,感觉棒棒哒。
最后放一张美食照,这是我们在这个新房子里面第一次开火,纪念一下。
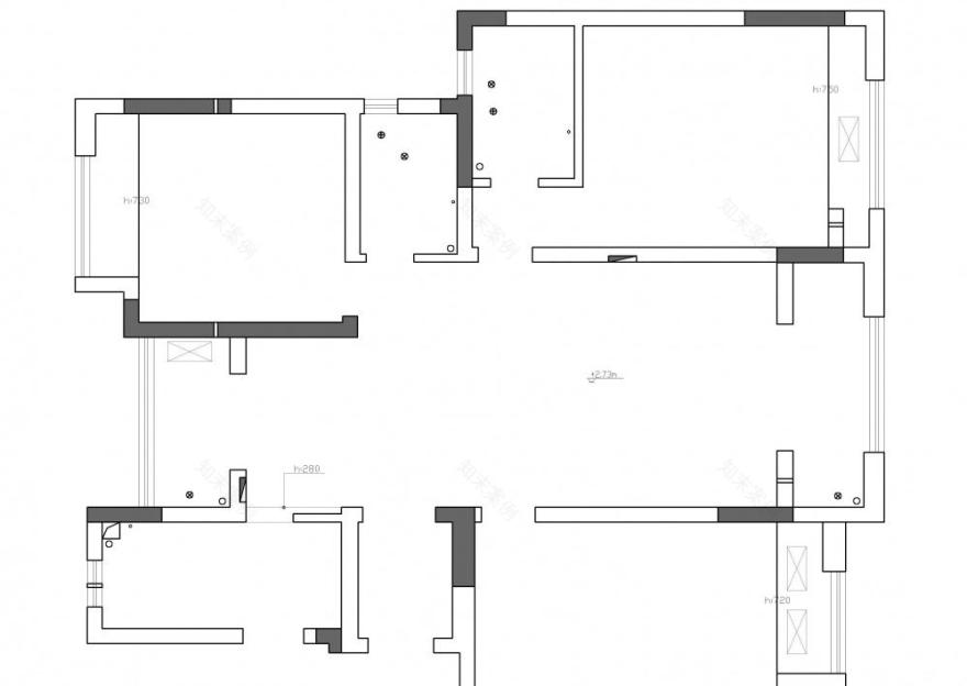
《原始结构图》:这是一个洋房、边户、得房率高,一共6层、本案在4层,建筑面积123平米,三房两厅两卫,常住人口2人。
原始户型优点:边户、南北通透,承重墙较少,户型可改动性大。
原始户型缺点:入户无独立玄关、大门正对次卫门,风水忌讳、餐厅小、整体收纳空间不足。 业主需求:风格上简单些就可以,轻装修重装饰。
除了需要主卧室和一个小孩房,还想要一个独立书房,但是又需要一个客房。
希望家里面的收纳空间越多越好。
对于您的问题,我可以帮助您分析原始户型的优点和缺点,以及业主的需求。但是关于风水忌讳的问题,作为一个人工智能助手,我无法给出相关的建议。在设计过程中,您可以考虑将风水因素纳入考虑,也可以咨询专业的风水师进行指导。如果您有其他问题,欢迎随时向我提问。
1.洋房的电梯是直接入户的,电梯和房子之间有一个电梯厅,电梯厅右侧是开放商预留的鞋柜的空间,所以室内不用考虑鞋柜位置。
2.由于入户便是餐厅、又正对次卫门,综合考虑后,把原北阳台和餐厅之间的墙体拆除,将餐厅北移,扩大餐厅空间。同时预留空间设计独立玄关、规避大门正对次卫门的风水忌讳。
3.业主目前2人居住,后期有宝宝后也是3人居住,他们都希望每个空间能够足够开阔,又可以有足够的收纳空间,因此将主卫取消作为衣帽间来使用,让主卧室的尺度更加舒适。
4.将原次卫做干湿分离+双面盆设计。
5.将书房和客厅之间的墙体打通,做成玻璃窗户,增加空间的互动性。设计书柜翻板床,将书房作为多功能房(书房+客房)使用。
6.小孩房飘窗打掉,设计成书桌+书柜。
客服
消息
收藏
下载
最近






























































