查看完整案例


收藏

下载
“似我”精品店位于上海东湖宾馆这座建于1925年的装饰艺术风格的建筑内。几十年间,这幢建筑经历了多次翻修和改造,在设计师勘察项目场地时,这些历史的痕迹依然清晰可辨。在刻意保留这些记忆线索的同时,如恩为建筑植入了新的设计元素来表达“似我”的品牌精神:年轻、精致、优雅。
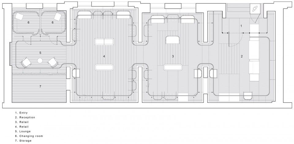
“似我”的零售空间由四个连续的房间组成。一根金属导轨迂回地穿过每个房间,并将其串联在一起。采用精致的金属网定制而成的吊柜悬挂在导轨上,从具有历史沧桑感的建筑环境中脱颖而出,以更加新颖且醒目的方式呈现每一件时装和单品。新铺覆的水磨石地面也营造出统一的空间感。前台和部分的座位等功能设施也采用与地面相同的材料,产生从地面凸起的视觉效果,构筑具有雕塑感的公共空间,并与木质的摆设物参差成趣。
顺着流畅延伸的金属导轨和地面的指引,顾客可以在不同的房间之间自由漫步,最终在休息区结束这段小小的旅程。被“似我”服饰装扮一新的顾客从茧状的白色亚麻更衣室中迈入聚光灯下,体验走秀般的试装风采,在褶纹玻璃装饰墙的烘托下,尽情欣赏自己,享受新装上身的快乐和满足。
客服
消息
收藏
下载
最近










