查看完整案例


收藏

下载
第一个问题:特殊性
深圳,这里四季无冬,在地图上的一个圈圈内,从一无所有到依靠人类本能和常识建立并快速崛起的超级都市,因为地处南端的亚热带,从五湖四海而来的人身上都有着拓荒者的精神,胆大、务实。这里有敢为天下先的创业精神,所以不需要教条指导,不需要理论限制,更不需要表面的传统约束,一方水土一方人,这是个移民城市,已嵌入中华文明底层代码的我们在这里可以感受到部分人性的自由。
城市更像是一个快速生长的都市迷宫,路是直的,楼是方的,到处都透着效率,白天和黑夜,24小时轮转,永不停歇。因为年轻也没有包袱,转的生气十足,转的五光十色,表面的井然有序更遵从着社会丛林法则,一切都是圈圈内的野蛮生长。
▼餐厅吧 ©Robot3 Studio
第二个问题:普遍性
形式千变万化,多走两步往里瞅瞅都是人性的反应,所以形式本身没那么重要,对于人性的探究恰如对自我的剖析和解读。经过设计的空间内,白天远观乌压压一坨,飘着的四四方方沉重铁物笼罩全场,身在其中反而找得到缝隙和脉络,夜晚又是五色斑斓,悬浮在头顶的庞然铁物仿佛消失一般。东西还是那个东西,前后判若两物,拥有灵魂的物件都有着矛盾的多面和复杂性。
▼天花板形式示意图 ©Robot3 Studio
▼白天里,天花板远观乌压压一坨,飘着的四四方方沉重铁物笼罩全场©Robot3 Studio
▼夜晚,餐厅的天花板五色斑斓,悬浮在头顶的庞然铁物仿佛消失一般 ©Robot3 Studio
沉重的悬铁,变幻的光影,实体与虚幻间相互充满张力。自我的解读都是自我的出口,循环往复,永不停歇,或许这就是生命力的本能。
▼沉重的悬铁和变幻的光影 ©Robot3 Studio
▼餐厅天花板细节 ©Robot3 Studio
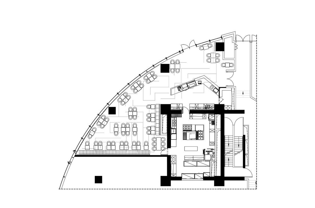
▼平面布置图 ©Robot3 Studio
设计机构:Robot3 Studio
建筑设计:潘飞、王植、韩冬、令重山
业主:Auvers
项目地址:深圳市福田区福华路卓悦中心one avenue 东区L1层L154A
建筑面积:253平米
材料:不锈钢板,玻璃砖,瓷砖
灯光设备:调调科技(QUBIC)
建成时间:2019.10
摄影:Robot3 Studio
客服
消息
收藏
下载
最近



















