查看完整案例


收藏

下载
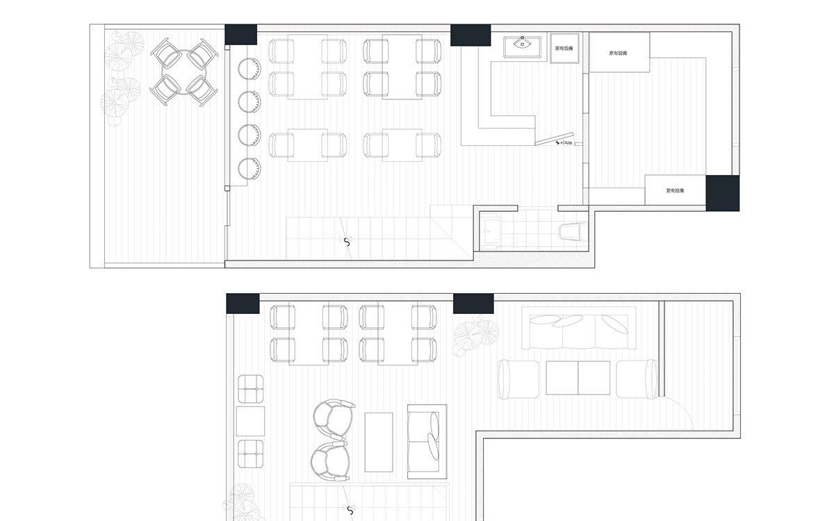
大面积的落地窗结合高吧檯的座位组合,保留大片的自然光线,以双开门的宽幅为动线,座位区沿墙规划。
设计者特意蒐罗相近色系的老旧木料,于立面上拼贴出具有原木温润与怀旧歷史调性的立体造型,并搭配大黑板,手写展示菜单。
梯下空间置放儿童餐椅、取水桌、电视等机能,并利用铁扩张网,铺于灰色的天际线壁纸上方,将电錶、开关等机能融入街头元素设计。
木条与铁件沟槽取代以往商空容易省略的天花板修饰,同时将成排的嵌灯安排于铁件线条中,给空间均匀舒适的光线。
在既有的圆拱取餐檯之外,增设饮料吧檯,补充咖啡厅需要的调饮机能,同时作为结帐收银区。
吧檯上方摆置玻璃杯的吊柜,以铁架与扩张网搭构,元素的唿应之中,保留了光线的延伸可能。
街景壁纸串连梯下与吧檯侧的立面视觉,圆拱造型的厕所动线,搭上復古款的壁灯,像是藏身街头的小酒馆。
同样引入自然採光的通透舒适,2F空间维持原有的开放式空间,以立面造型与家具选色回应街头元素。
除一般的餐桌椅配置外,因应业主接待好友的需求,沙发区成为歇店小酌言欢的空间,平时也提供给客人使用。
水泥转入文化石墙,不平整的衔接面有着不经意的时间轨迹感,在长形的墙面中衔接双材质的变化。
新造的水泥少了工业风格常见的斑驳层次,设计者以扇型浪纹创造同样粗犷的手感触觉。
相片墙与抱枕的缤纷、温暖昏黄的灯光,让冷调的工业风格,有了多彩的温馨。
客服
消息
收藏
下载
最近















