查看完整案例


收藏

下载
由gmp·冯·格康·玛格及合伙人事务所主持的久洛·特里比希学校扩建工程正式完工,9月14日举行了竣工典礼。gmp于2014年设计竞赛中标,并在预算内提前完工。扩建部分为三座建筑单体构成的回形建筑体,围合了散布其间的室外空间,极大提升了现有校园空间品质。
The new building for the extension of Gyula-Trebitsch school to the design by architects von Gerkan, Marg and Partners (gmp) has been completed. During a festive ceremony, the building was officially handed over to Hamburg’s school senator, Ties Rabe, on 14 September; this means that, after the architects had won the competition in 2014, they were able to complete the project earlier than originally planned and within bud- get. The three meandering volumes of the extension building frame a generous outside area and enhance the existing school campus.
▼校园中庭,school yard © Marcus Bredt
位于汉堡市东部的久洛·特里比希学校设有文理科高级中学部,新建建筑将成为城区的标志性建筑,同时也对现有的教育资源设施进行了补充。新建建筑以常规的框架结构建造,三座呈回形布局相互连接的建筑体在近阳光路的一侧定义了建筑的沿街形象,另一侧围合了宽敞的绿化庭院,这里是校园内的休息活动区域。两层高的建筑内容纳了18间教室,其中11间教室可以根据功能进行差异化布置,满足各种教学需要。此外还设有10间专业教室,包括数个试验室、一间音乐教室、两间可以打通组成大礼堂举行演出活动的大型教室以及多媒体控制间。食堂位于建筑体交界处的一层建筑内。
The new extension building for Gyula-Trebitsch school at Sonnenweg in the east of the Hanseatic city is the new address of the neighborhood school, which includes a stream with grammar school subjects; this is a significant step towards enhancing the existing education infrastructure. The new building, most of which has been constructed in conventional skeleton construction, extends
the existing school campus by three interlinked building volumes. Configured in a meandering layout,
they are located on the western side and oriented toward Sonnenweg, the new address, which is also the new address of the school, while on the other side they frame a generous landscaped recreation area. The two-story complex accommodates 18 classrooms with eleven rooms for differentiated and individually tailored teaching purposes and ten specialist teaching rooms – including workshops, a music room, two rooms that can be extended into an auditorium for music, drama performances, and media – and ancillary rooms. The central school refectory has been placed in the connecting single-story part of the building.
▼前广场,forecourt © Marcus Bredt
▼休息空间,school yard © Marcus Bredt
▼车间教室,studios © Marcus Bredt
建筑外观简洁而富有识别性,新建建筑幕墙采用了色调形式统一的砖石结构,表达了对原有建筑和周边建筑风貌的尊重。首层与室内通高的玻璃幕墙略微向内退进,与二层环绕建筑体的窗带形成富有张力的对话。与内庭绿色景观相呼应,建筑上层细长墙面金属镶板采用了三种不同的绿色色调,这样的理念也在建筑内部得到了延续,二层楼道内的教室大门以及室内各处屋面吊顶均回应了颜色变化的主题,灯光设计更加丰富了屋顶的色彩。
▼通高玻璃幕墙向内退进,the recessed and framed room-high openings © Marcus Bredt
In their external appearance, the new building volumes create a clearly identifiable unit designed to the same architectural principles, with the entire facade built in brick. With this detail, the design is reminiscent of the architecture of the previous buildings and, at the same time, forms a visual bridge to the neighboring buildings at Sonnenweg. The recessed and framed room-high openings on the first floor are balanced by the surrounding fenestration bands in the upper floor. Vertical expanded metal panels in three different shades of green create a playful, rhythmic backdrop, with the green color scheme – inspired by the surrounding nature – also continuing on the inside: the door recesses in the corridors on the second floor, with three doors each, replicate the shades of green, the triangular cassettes in the ceiling of the refectory are picked out in color, and in the wooden cassette ceiling in the two-story entrance areas, colorful ceiling elements alternate with roof lights.
▼礼堂,auditorium © Marcus Bredt
▼绿色色调在内部屋顶得到延续,different shades of green continues on the interior © Marcus Bredt
▼走廊和交通空间,corridor and stairs © Marcus Bredt
▼食堂,cafeteria © Marcus Bredt
新建建筑严整的几何形式与庭院的自然环境形成对比,室外空间由Bruun & Möllers事务所设计完成。内庭中植物的自然生长形态构成一座绿色岛屿,为校园空间注入活力。庭院中的木质长椅可供师生休息。地面上的彩色标识作为引导系统贯穿整个校园,将新建区域与原有空间连为一体。
The austere geometry of the extension building is in deliberate contrast to the design of the recreation area, for which Bruun & Möllers were responsible. In the inner courtyard of the new building, organically shaped plant islands provide a structure and soften the area. Wooden benches are placed across the area, inviting you to sit. Colored marking on the ground is used as a guide system across the recreation area, thereby linking the space around the new building and the building itself with the existing school buildings.
▼内庭中的植物为校园空间注入活力, organically shaped plant islands provide a structure and soften the area © Marcus Bredt
▼场地平面图,site plan © gmp Architects
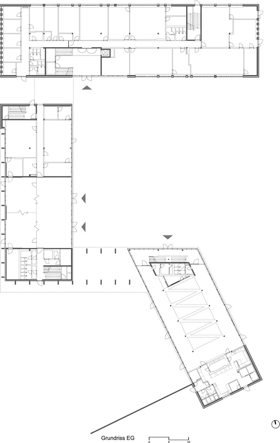
▼首层平面图,ground floor plan © gmp Architects
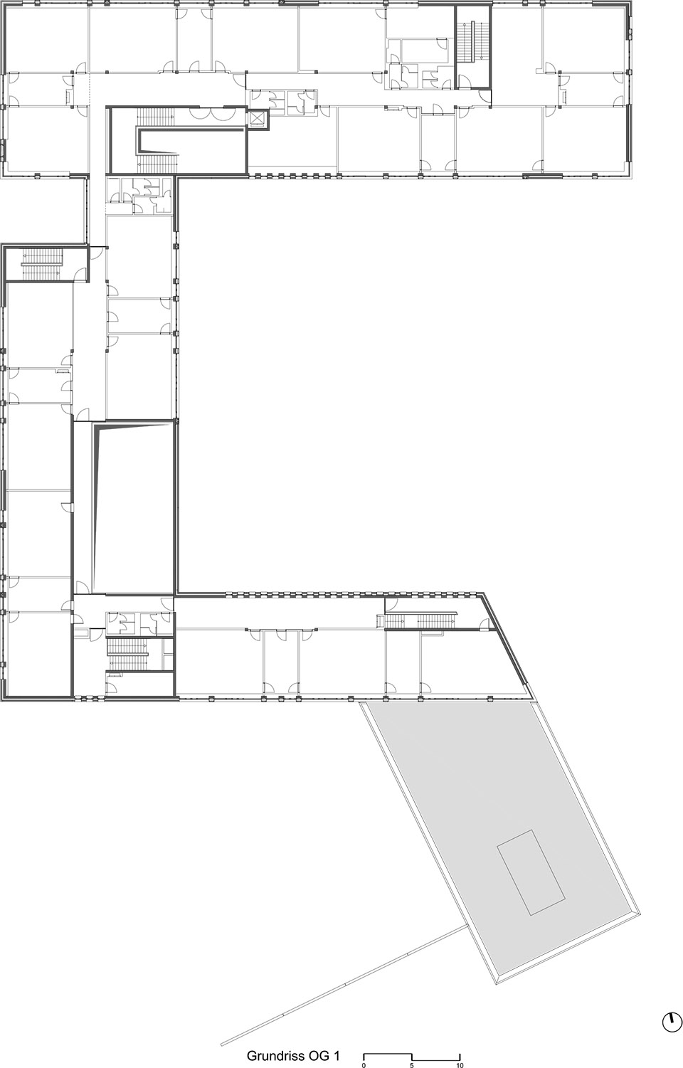
▼二层平面图,first floor plan © gmp Architects
▼东立面图,east elevation © gmp Architects
▼西立面图,west elevation © gmp Architects
▼剖面图,sections © gmp Architects
Design: Volkwin Marg and Jürgen Hillmer with Robert Friedrichs
Project management: Robert Friedrichs
Competition design team: Alessia Spezzano, Andrea Fattori, Valentina Milan
Detail design team: Hendrik Winter, Lena Wegener, Radmila Blagovcanin, Renata Dipper, Peter Radomski, Lapo Medici, Gaby Kottsieper
Structural framework: Weber · Poll, Ingenieurbüro für Bauwesen
Landscape architect: BRUUN & MÖLLERS GMBH & CO. KG
Client: Free and Hanseatic City of Hamburg, Finance Authority, SBH School Construction
GFA: 5022 m2
Photographer: ©Marcus Bredt
客服
消息
收藏
下载
最近























