查看完整案例


收藏

下载
来自
DEFERRARI+MODESTI
Appreciation towards
DEFERRARI+MODESTI
for providing the following description:
BRAC书店藏匿在佛罗伦萨市中心繁杂的城市广场之间,距Signoria广场和乌菲兹美术馆只有几步之遥。书店将自身定义为佛罗伦萨社会空间的一部分,为人们提供私密而又充满魅力的阅读和餐饮空间,人们可以在这个温馨的环境里慢慢享受悠闲时光。项目的室内由建筑师Javier Deferrari 和 Lavinia Modesti设计,通过小而精确的介入,创造了一个沉浸式的空间。
A few steps from piazza Signoria and the Uffizi Gallery, hidden amongst a plethora of courtyards of the historic center of Florence, the BRAC bookstore unveils itself as a space belonging to the Florentine society, both secretive as well as fascinating where one can read, eat, drink or simply pass the time in an embracing and hospitable environment. The project of its interior spaces is made with minimal yet accurate and immersive interventions which are the work of architects Javier Deferrari and Lavinia Modesti.
▼室内概览,可以看到挂满彩带的庭院,overall view of the interior, the courtyard with color strips could be seen
DEFERRARI+MODESTI建筑师事务所注重材料和构造的创新,并以此理念完成了许多设计。他们在佛罗伦萨BRAC书店的设计中也巧思妙想,使用极度简单的手法创造了一个亲密而舒适的室内空间。
The architecture studio DEFERRARI+MODESTI, already the author of various interventions in which a call for an original experimentation in material and constructive solutions emerges, have designed and given an identity to the interior of the BRAC bookstore of Florence, characterized by ingenious ideas which are extremely simple and capable of creating a comforting and immersive atmosphere.
▼亲密舒适的空间,comforting and immersive space
BRAC书店在Via de’ Vagellai18号,到乌菲兹美术馆只有几步距离。这家现代艺术书店面积为75平方米,包含咖啡厅等多种功能,可以为顾客提供素食,重新诠释了经典的文艺咖啡厅理念。书店在过去几年中举办了丰富多彩的文化活动,许多人借此相互认识和了解。建筑师Javier Deferrari’s 和 Lavinia Modesti从这里获得启发,在建筑师Valentina Muscedra 和 Sergio Leone的协助下设计了一个当代艺术装置,从整体上解决了声学方面的问题,把图书馆变成了现在这样的亲密空间。与历史建筑的相容性是这个惊人空间成功的因素之一,佛罗伦萨的居民在这里可以和当代艺术亲密接触,丰富各自的生活。
The BRAC bookstore can be found in Via de’ Vagellai number 18, a few steps
away from the Uffizi Gallery. The multifunctional space of 75 square meters offers
a reinterpretation of the idea of the classical café littéraire and is comprised of a contemporary art bookstore, a cafe and a kitchen where vegetarian and vegan
dishes are prepared. The rich cultural programming offered in the last years has accompanied a variety of encounters and of relations. It is in this context that Javier Deferrari’s and Lavinia Modesti’s interventions are born. First, with a temporary installation (created alongside architects Valentina Muscedra and Sergio Leone),
and with a tuning of a more integral solution to the acoustic problem and finally the restyling that brings the place to its current configuration. The capability of building relations is part of the success of the surprising space, which offers the Florentine public a lively interaction with the contemporary.
▼人与当代艺术相互作用的空间,space offering public interaction with the contemporary
设计的核心区域是一个65平方米的庭院,清楚地将两个主要房间连接在了一起。庭院中悬挂了超过五千条共九种颜色的织物带,这些彩带宽5厘米,长度在75到175厘米之间,强调了空间的垂直感和色彩,为置身其中的游客带来感性体验。此外,庭院还可以控制噪音,减少对周边居民的影响。彩条悬挂在由钢缆组成的轻质模块结构上,这些钢缆被固定在院墙上,高度不超过书店室内天花。它们随着咖啡书店的需求变换形式,在不同的季节中展现出不同的样貌。
At the heart of the intervention by DEFERRARI+MODESTI is the 65 square meter courtyard which visibly links the two main rooms: a surprising space characterized by its verticality, color, exibility, conceived with the objective of limiting the transmission of noise to the surrounding residences. More than 5,000 textile strips, of 9 different colors, 5 centimeters wide and between 75 to 175 centimeters long, hanging from above and involving the visitor in an emotional space. The strips are suspended from a light and modular structure made from steel cables permanently fixed in the courtyard walls at a height that does not surpass the roofs’ at the interior of the bookstore. This allows a variety of configurations through time and through the different seasons, hence, allowing itself to adapt to transformations as well as the different needs of the cafe-bookstore.
▼挂满彩带的庭院,形成丰富的光影,courtyard with color strips, creating variety of configurations
在模块系统之上,建筑师设置了一个吸音层,可以吸收足够的声音,保证夜晚的安静。吸音层由吸声纤维织成的窗帘构成,和彩带沿同样的钢缆布置,通过精确拉动系统控制,能够覆盖整个庭院表面,从而限制声音传播到周边的住房中去。庭院使用灰色Bardiglio大理石颗粒铺地,设有沙石板步道,与室内的竹制地面向呼应。
Above this modular system, DEFERRARI+MODESTI added a layer that guarantees an adequate level of acoustic absorption during the night time, in the moments of more a fluence of the locale. A system of curtains, made with a sound absorbing fabric which uses the same steel cables as guides and which, once opened by means of a precise pull system, proceeds to cover all the surface of the courtyard, thus limiting the transmission of sound energy towards the surrounding apartments. The granulated pavement made of gray Bardiglio marble welcomes a path marked by sandstone (pietra forte) slabs that recalls the texture of the bamboo flooring used in the interior.
▼沙石板步道连接两侧房间,sandstone slabs connecting the two rooms
▼彩带细部,details of the strips
第一个房间内使用模板将部分藏书围合起来,重新平衡了空间比例。第二个房间内设置了更多休闲沙发椅,人们可以在这里进行书籍介绍,读书和摄影展等活动。室内空间经过精确的设计改造,尽管面积没有变大,但可以容纳更多功能,更加方便好用,如入口处增加了展示区等。原有的书架被移走,更多的藏书被展现在了人们面前。新书架栎木制成,桌面也采用同种木材,并以老花园桌的铁架作支架,与单调的奶白色墙面形成对照。两间房子原本的瓷砖铺地被竹制镶木地板替代,让空间更为统一。
In the first room, wooden paneling surrounds part of the book collection and re-equilibrates the proportions of the space. In the second room, more informal sofa seat welcome book presentations, readings and photography exhibitions. In the renewed form of the locale, the spaces, although not expansive, have been rendered even more functional and comfortable through some punctual solutions such as the transformation of the entrance which has gained a showcase space. Furthermore, the existing bookshelves have been replaced so as to offer more visibility to the extensive book collection. Durmast wood is used for the new shelves as well as for the table tops -which rest on old iron bases of garden tables- and serves as a counterpoint to the monochromatic cream white of the walls. The old ceramic- tile floor of the two rooms has been substituted with a bamboo parquet flooring which regulates the space.
▼从第一个房间看向庭院,view the courtyard from the first room
▼藏书被展现在人们面前,人们可以在这里边阅读便享受素食,the extensive book collections are presented to visitors, people could read while enjoying vegetarian and vegan
dishes
建筑师Lavina Modesti和Javier Deferrari在建筑内留下了一些过去建筑师设计的痕迹,他们对于改造后的BRAC书店进行了如下描述:“我们希望通通过这个项目,在不扭曲空间的前提下更新它的氛围,并且让人们看到过去的印记。我们认为当代艺术书籍应该更多地被展现在人们的视野之中,而庭院是建筑真正的心脏,在这里我们才可以把自己的创造力发挥到最大。”
Here’s how architects Lavina Modesti and Javier Deferrari, who have chosen to leave some signs of previous architects’ interventions (such as Arabella Bettazzi and Giorgio Ferone) still in site, describe the renewed BRAC bookstore, reopened to the public last summer after the last restyling. “With our project we wanted to renew the atmosphere without distorting it and leaving the stratigraphy of previous interventions visible. The selection of the contemporary art books is very accurate and deserved, in our opinion, more visibility. The courtyard, the true heart of this place, is where we were able to express our creativity to the fullest.”
▼吧台和厨房,counter and kitchen
书店的橱窗一直在变化,展示着最新书籍和摄影作品。店主Melisa对于书籍充满热情,并且喜欢一切当代艺术形式,如戏剧、舞蹈、电影和摄影等,建筑师在橱窗处设计了可替换的移动元素,方便她变换物品的排列。共同所有人Sacha是一个充满创造力的厨师,精通素食,可以在厨房中大展身手。
The shop window, that constantly changes by presenting the latest book and photography acquisitions, is characterized by a series of interchangeable mobile elements which the owner Melisa, who has a true passion for books and is interested in all things contemporary in all of their expressive forms (such as art, theatre, dance, cinema and photography), can easily use and rearrange. In the kitchen, the co-owner Sacha, who is a creative chef specialized in vegetarian and vegan cuisine, gives free expression to his culinary inspirations.
▼彩带颜色分配,distribution of different colored strips
▼彩带高度分配,distribution of different height strips
▼彩带与模块结构图解,diagram of the modular structure and the strips
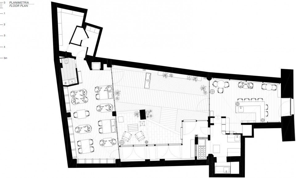
▼平面图,plan
▼剖面图,section
Project name: BRAC bookstore Project location: Via de’ Vagellai 18r, Firenze Architects:DEFERRARI+MODESTI (Javier Deferrari, Lavinia Modesti) Acoustic consultant: Antonio Lotti Contractors: Edilpino (construction company), Stefano Favigni (carpenter), Stefano Corti (window stures)
Size bookstore / cafe: 75 square meters courtyard: 65 square meters Courtyard roofing: 6.2 kilometers of fabric, 302 pixels, 5102 stripes, 5 different lenghts for the fabric stripes (from 75 to 175 centimeters) 2 types of fabric, 9 colors
Re-opening to the public, after the restyling: July 2016
Drawings: DEFERRARI+MODESTI
English text: DEFERRARI+MODESTI
客服
消息
收藏
下载
最近





















