查看完整案例


收藏

下载

附件

翻译
The project concerns the interior spaces of a house inside the district of Brozzi, which is an historical suburb just outside the city of Florence. Still today, this territory presents the typical urban structure of the past, as a cluster of houses located along one road, parallel to the Arno river.
The fabrics are dated to the 19th century, when Brozzi developed as a flourishing district, hosting many commercial and artisanal activities.
In this context, the studio DEFERRARI+MODESTI by Javier Deferrari and Lavinia Modesti undertook the design and construction development of a house for a young florentine couple. The projects involves the use of diverse volumes that operates as specific devices and reorganize the various spaces for living.
The two owners of the house are a young couple from Florence, both working inside the fashion industry. Their dog Giotto lives with them. They are use to invite friends to the house, so they asked for a functional and hospitable space. They also whished for a large space where to store all their clothes and objects. Moreover the couple desired furnished space for their home office activities.
The studio DEFERRARI+MODESTI dealt with the refurbishing of this family property, by developing the project according to the needs and habits of the two youg owners.
The house was fully renovated within all the technical issues and problems, such as the rising damp. First, the building envelope was restored by building a new ventilated crawl space and a transpirant plaster. The windows at the groundfloor have been enlarged where possible, to guarantee a better natural lighting and ventilation inside the house. The original structure have been left unchanged.
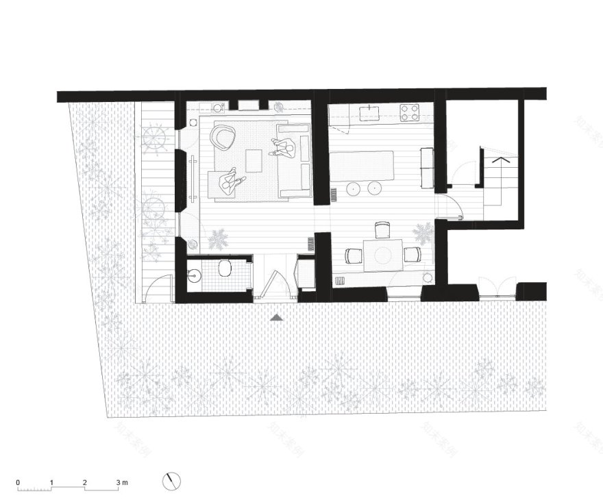
The access to the house is from the interior court, that isolates the apartment from the noise pollution of the surroundings. Nature and plants are located inside the court. The entrance opens to the living area of the house, that is constituted by the sitting room, the kitchen and a small bathroom for the guests. The upper floor can be reached by using the interior stairs; there it is located the sleeping area with the main room, a studio and the main bathroom.
All the various volumes define new spacialities inside the interiors where they are located and create buffer zones, by becoming storages of unexpexted functions and services. The volumes recalibrate the proportions of the space, adding new meanings and changing the interior circulation.
At the entrance of the house, the design proposal aimed to create a spatial threshold, divided from the sitting area. A sort of vestibule where to undress, before entering the house. The black volumes and their gres tiles coating of the same colour have produced a distinct space that stands from the main living room. One side of the black volume contains a dress storage, while the other side gives access to the small bathroom.
Inside the main living room, a wide bench creates a place where to share common activities and to sit in front of the fireplace, the true protagonist of the space. The kitchen is divided in two parts by the central island. The entire space is conceived to host the couple and their guests during the preparation of the food, according to the diverse meals and the daytime. The bench and the extending table allow to make the most of the space.
The upper floor rooms observe the simplicity and the informal dimension of the groundlfloor interiors. Inside the sleeping room, the wooden volume and the curtain creates a diverse space, where to store all the clothes. In the sudio there is also a sofa bed for the guests and the space dedicated to home office activities.
Every available space has been used to create storages, cabinets and bulti-in wardrobes. Under the concrete benches of the living room are located many drawers, where to store objects and documents.
The main colours are the white, the black and the grey. The white plaster helps the natural lighting inside the apartment. The design proposal involves the use of oak wood for the pavement of both the groundfloor and the first floor of the house, even for the stairs, to create a continuity between all the interior spaces. The dark volumes evidence new spatialities. The furnitures have been chosen with neutral tones. The colour is used as an element of surprise, as in the guest bathroom or inside the bedroom, where the blue tonality breaks away from the rest of the room.
DUPLEX IN BROZZI
City: Florence, Italia Surface: 100 sqm Tipology: residential
project by DEFERRARI+MODESTI
Javier Deferrari / Lavinia Modesti
construction company: SESE srl
carpentry work: Legn’arté snc
Calendar
preliminary and executive project: January/July 2020 start of works: September 2020 end of works: January 2021
Photo by Anna Positano
Instagram: @annapositano Facebook: AnnaPositanoPhotography
客服
消息
收藏
下载
最近































