查看完整案例


收藏

下载
BENTIDEA海天店是bentidea的首家线下店铺,定位是海天中心全新业态。
BENTIDEA Haitian Store is the first offline store of the brand bentidea, and it is orientated as a new business format of this commercial operation.
▲店内
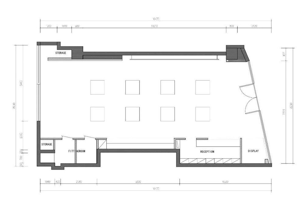
门店是一个不规则形空间,是一个复杂体块的形状,设计师通过悬挂1.2m×1.2m的结构网格及置入包含收银间、试衣间和隐藏式储物间的木头盒子,将主体空间引正,把不规则空间的区域改变为整体且极简的状态,从而增加了设计的系统性与变动性。同时洞洞板与天花灯管系统可以随需求变动,让原本恒定的空间变得「多变」。
The store is an irregular space with a complex shape. By hanging a 1.2mX1.2m structural grid and imbedding cashier room, fitting room and hidden storage room into a wooden structure, the designer subtly lead main space integrated as a regular shape. Turning the irregular shape of the space into an integrated and minimized regular shape, and thereby increasing the systematicness and variability of the design. At the same time, the perforated board and ceiling light tube system can be changed according to the needs, creating mobility and variation from the original space.
▲洞洞板
▲试衣间
▲收银台
▲BENTIDEA
还原建筑原本的状态,通过极简主义的设计,让系统性与可变性成为空间的驱动力,优化常规体验所谓“经验的”、“非本质的”,“可有可无的”,转而朝向了保持中立,将设计简化,排除杂质和成规来塑造空间风格。
To restore the original state of the building, through the minimalist design, to thereby making the systemicity and variability become the driving force of the space, optimize the so-called “traditional”, “non-essential”, “dispensable” of the traditional space experience, to “neutrality”, “simplicity”, and “breakthrough of the conventional design” to shape the space style.
▲天花系统
▲分析图
▲平面图
项目信息——
项目名称:BENTIDEA
设计方:W·SELECT
设计时间:2021年5月20日至2021年7月20日
建设时间:2021年7月20日至2021年9月1日”
主创建筑师:W
设计团队:李信良
项目地址:青岛市市南区香港西路48号海天中心3F
建筑面积:112m²
摄影版权:Jolin
装修主材:水泥漆、微水泥、镀锌板、拉丝不锈钢、木饰面
客服
消息
收藏
下载
最近
























