查看完整案例


收藏

下载
【项目名称】:湯房巷壹號
【项目位置】:中国·福建福州 上下杭
【设计单位】:为空间商业设计机构
【主创设计】:吴诗君
【设计团队】:林小白 吴凡超
【陈设设计】:林小白
【灯光设计】:言吾灯光设计
【施工团队】:城宇建设
【项目摄影】:李迪
【创意阐述】
福州,城中有山,山中有城,三山峙立五虎盘踞,江河湖海一应俱全!历史沉淀与文化传承凝结成独一无二的福州古厝,错落于福州的山水间,湯房巷壹號,即是其中之一。
湯房巷壹號项目为上下杭古民居改造,这是一座由2021安德马丁发现中国好设计师吴诗君重新设计的老
建筑,在保留原建筑结构的基础上,古今结合,打造出绝妙的室内空间效果,还曾获得第16届金外滩将“最佳办公空间奖”类别-优秀奖。
设计师们反复测量,绘图,将受损部位进行重制,修旧如旧,为的就是保持老建筑的质朴风格,将古韵弘扬,经典重续。
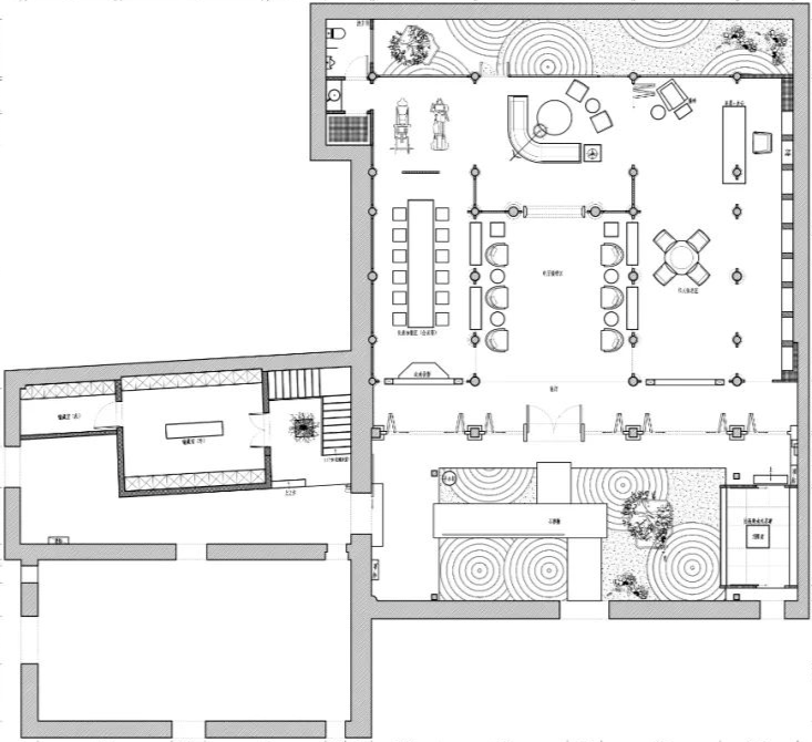
【设计图纸】
▼
平面图
【空间简述】
设计团队将电路重新布局清理,将原本不属于墙柱的漆色去除,保留原有承重柱体结构和外形特征,修旧如旧 建筑原貌端倪呈现,淋漓尽致展现中国传统建筑见素抱朴的理念,化地尊重房屋本身的历史感,一方建筑历史的文脉得以传承,亦是时代浪潮涤荡中一点留存。
古人将匠心融于细节之中,放之当下仍可与现代工艺比肩,设计团队保留了建筑原有精湛的雕花设计,同时将古建中的石头部件重新利用,保留原生态模样注入全新功能美学,新颖与古老有序衔接重赋建筑风采。
本案占地面积一亩 建筑与庭院各半,园林设计延续传统的南方人家特点,芭蕉帘卷 小园香径 玲珑典雅,巧妙将生境、画境、意境融合,蕴蓄东方审美意趣。
说到茶室,就会想起宁静、素雅,一片茶席,简单的茶具,泡一杯浓茶,静静的体会人生的百味。本案茶室采用全景落地玻璃,不仅“引景入室”,还让空间内外的人可以随时可以对视、交流。
室内格局上保留中式对称美学,却又不拘泥于形式的束缚感,深色基底烘托古建庄重感的同时,以现代灯饰与色彩强烈的画作打破常规视觉观感,恰如其分地实现整体空间布局质感的跃升与平衡。
没有什么豪华的元素,但精致的细节却让空间显得充满现代与优雅的气质感。设计师仅用线条,就让空间变得灵动、自由、有力量。用艺术与自然的哲学相遇,打造充满流动感及韵律性的视觉感知,创造出古与今的文化更迭。
斜顶融入波纹设计,充沛的线条韵律,使得空间更加灵动富有活力,现代 东方 自然元素在这里和谐地融为一体,诗意栖居之感呈现于建筑肌理中,物形相融、情景相通,古今相望相生。
古建翻新面临的桎梏,往往在于新旧传统之间的衔接,功用价值与审美价值之间的辩证关系,而这恰也是古建筑能否重获生机的关键。
为空间设计希望,可以让匆匆忙碌于城市水泥森林中的人,至于此,忘却凡俗扰,心藏平常乐。
时
系删除
点阅读原文→到首页→搜索框→输入关键字→浏览更多优质案例
:
看更多餐饮空间资讯!
---------------------------------
在变好
看
客服
消息
收藏
下载
最近


































