查看完整案例


收藏

下载
| 湓浦酒馆|
江西,九江
设计公司 | 为空间商业设计机构
主创设计 | 吴诗君
陈设设计 | 林小白
工程单位 | 青桐树装饰
项目拍摄| 李迪
完成年份|2022
“头顶有彻夜不灭的石英卤素灯,
强光下的码头雪亮如同舞台。
生态建筑群落像一堆巨大的立方体,
铺满了工厂的圆顶。
港口与城市之间的一些古老街道,
组成了一片狭窄的无名地带,
这就是‘不夜城’。”
威廉吉布森在《神经漫游者》里缔造了一个光怪陆离的世界。霓虹雨雾中的不夜城掀起赛博朋克的流浪者史诗。本次设计项目湓浦酒馆,在商业经营空间中完成赛博朋克美学的复现,与在地文化相结合,打破视觉模板,完成颠覆与传承,星际与海洋的跨界联动。
01CITY
MEMORY
城市记忆
本案位于江西九江,三江之口,七省通衢,码头文化尤盛。酒馆以本地人倍感亲切的“湓浦”为名,项目定调与城市记忆交叠融生。本案将城市的文化形态收纳进了建筑内容中。
P. 01
P. 02
P. 03
西式复古迎宾门与舷窗元素巧妙配合,是西洋嬉皮与本地码头文化的融洽相逢,呈现城市兼容并蓄外来文化过程中形成的独特建筑姿态。
P. 04
P. 05
户外客座区由裸石砖墙累叠而成,引入外部阳光并保证了一定的私密性。客座区的自然粗粝与门头精致质感的对撞,指向无界多元的空间精神。
P. 06
P. 07
利用灯光对建筑外立面的妆造,使建筑在白日与黑夜之间完成了奇妙的变身,形成两种不同风格维度的艺术形象。白日优雅而怡然,夜幕降临灯光亮起,霓虹闪烁的不夜城缓缓拉开序幕。
P. 08
P. 09
P. 10
02OTHERWORLD
异世界
室内色彩以大面积的海洋蓝打底,辅以黑灰等冷色调。来访者至此,仿若踏入未来异世界。机械金属质地的酒架设计,不止于满足功能性的实现,延伸了其艺术点缀的作用,将空间场景中的科幻感发挥得淋漓精致。高饱和度的橘黄色彩的融入,犹如午后云边霞光形成视觉聚焦点,让氛围营造变得灵动活跃。
P. 11
P. 12
P. 13
P. 14
P. 15
P. 16
P. 17
P. 18
P. 19
半圆弧落地玻璃幕墙提升空间通透感,沿轨设置客座,功能上节约空间扩大容纳量,预留出行走通道,形成空间流畅的节奏轨迹。
P. 20
P. 21
P. 22
P. 23
P. 24
P. 25
03SPACECAPSULE 太空舱
- 舷窗元素在室内得到了再次运用,与建筑外立面形成首尾呼应的默契。
对于在地码头文化元素的拾取,并不拘泥于过去的重现,引入星际太空元素,表达对于未来时空的畅想与展望。
舷窗外以灯光线条置景,形成多重模糊意象隐喻,船舱仿若翱翔于浩瀚星际的太空舱。
透过其中,可以望见过去,也可以望见未来,时空往复,海洋与星空在这里汇合。
P. 26
P. 27
中空挑高设计联动上下两层空间,充满空间张力。几何色彩线条贯穿而下,对区域进行视觉裁剪,同时也保证了不同功能区的连接感。
P. 28
P. 29
P. 30
P. 31
P. 32
天花板利用材料自身的特性,生成立体延伸感,如同穿梭于时空隧道。实景与幻象重叠,延伸至不可知的未来空间。
P. 33
P. 34
卡座区提取老式列车厢灵感,富有纵深感的视像与文艺范交洽,充满叙事性的场域应运而生,不必布景便已成画。
P. 35
P. 36
壁炉包裹出复古温暖的空间氛围,以充满希望与温情的生活烟火,颠覆传统赛博朋克的冰冷感,完成空间内核价值的重置与升华。闲时作乐围炉夜话,不失为一种上佳的生活选择。
P. 37
P. 38
P. 39
04ANALYSIS
DIAGRAM
分析图
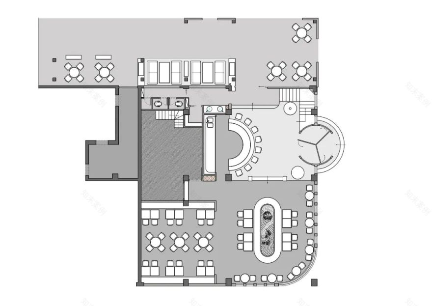
1F 平面图
P. 40
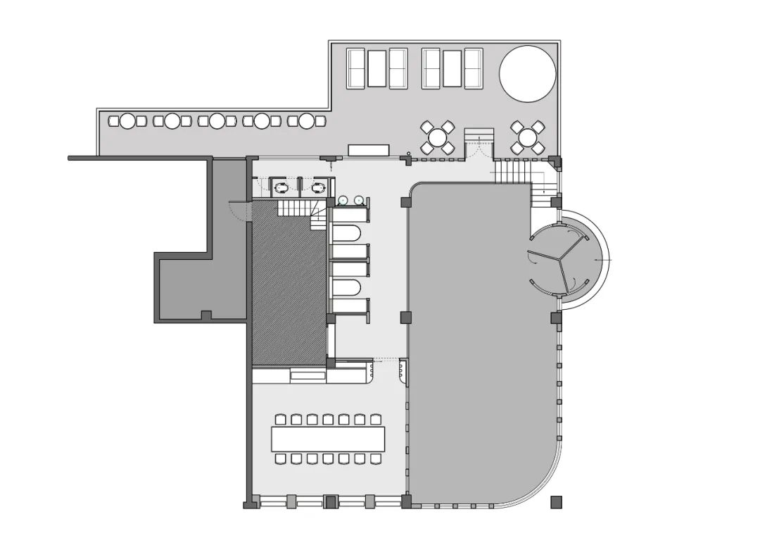
2F 平面图
P. 41
The End...
欢迎转发分享本文;
You are welcome to share and repost this article;
----------------------------------------------------
本司所获荣誉
获奖信息
2022 年 金外滩奖 最佳办公空间设计银奖
2022 年 金外滩奖最佳餐饮空间设计铜奖 (幕月)
2022 年金外滩奖最佳餐饮空间设计铜奖(那白厝)
2022 年 MUSE 设计奖 办公空间类 银奖
2021 年 第十九届国际设计传媒奖 年度餐饮空间大奖 铂金奖
2021 年 安德马丁发现中国好设计 年度推荐设计师
2021 年 MUSE 设计奖 餐厅酒吧类 金奖
2021 年 亚洲风尚软装大奖 办公空间类 最佳大奖
2021 年 第十六届金外滩奖 办公空间类 优胜奖
2021 年 老宅新生奖 年度优秀古建筑保护设计奖
2021 年 40UNDER40 中国(福建)设计杰出青年
2021 年 WYDF 年度大中华区 100 大杰出设计青年
......
----------------------------------------------------
Mail:
客服
消息
收藏
下载
最近
















































