查看完整案例


收藏

下载
”我们不必去探讨酒店存在的意义,但是追问一间酒店为什么人服务却是有益的。因为它决定了酒店的形式和姿态、设计师的设计策略。“
位于简阳的“亚啡酒店”,是成都亚啡酒店管理集团旗下的商务型酒店品牌。作为一家设计酒店,它以不张扬且内在精简的调性,服务于商旅客人,成为简阳目标精准的酒店之一。 曾经作为成都卫星城的简阳市,在进入二十一世纪后,已并入成都市辖范围,成为东部新区。瞬即,它迎来两个机遇:一是成都的第二个国际空港-“天府国际机场”的落成使用;二是成都市的大型物流中心迁徙于此,并带来旺盛的商务需求。 “亚啡酒店”坐落在通往天府国际机场的必经之途和毗邻物流中心的三角地带上,地理位置决定了“亚啡酒店”的服务定位必然具有战术性商务属性和满足天府空港的“过客”的双向需求。
这种特征决定了酒店的服务必须和到店客人有一定的物理距离却又是关切的,需要空间具有的安抚性和安全性来表达和实现。因此,酒店设计选择适宜的设计师,是成败的关键。 “亚啡酒店管理集团” 经过多方比较,选择了对酒店和餐饮行业有深入认识的万谦集环境艺术设计有限公司承担“亚啡酒店”的设计委托。 万谦集设计公司是成都非常年轻、但是却有精粹设计经验与市场意识的设计团队,于是,当万谦集设计公司设计总监汪宏看到设计场地后,立刻敏锐地察觉到酒店应该具有纯粹而低调的商务和社交气质,他即决定:用让人安宁、抚慰人心的人文氛围相结合,形成不迎合、主客平等的方式,形成酒店性格,使“亚啡酒店”成为既不同于星级酒店的高端商务形态,也不同于经济型酒店的疏陋,让人进入后,感受到设计后的酒店中散发着一种精雅、清爽、有序和关切的气息。
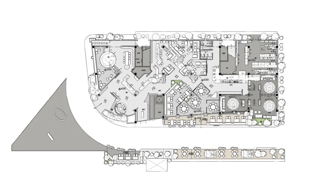
设计是从外部开始的。 “亚啡酒店”地处地广人稀、商业办公相对密集的区域,为了塑造自身的形象辨识度,设计师用有机的造型在大堂入口处形成“遮阳”的建筑构造,向外宣称了自身的身份特征,对内形成进入大堂的“灰空间”。因此,我们看到:有机的白色的建构在蓝天和阳光的簇拥下,凌空欲飞、自由而轻盈。为了使“遮阳”具有“生长性”,设计师在“遮阳”的顶部形成自然的孔洞,川西的竹簇顺势伸向天际,“遮阳”因此而变得有说服力,不再突兀。
考虑到“亚啡酒店”主要服务于两类人群——物流中心的商务需求与国际空港的中转住宿,客人在酒店驻留的时间有限、目的明确、很难有自主散客的个人化酒店消费等特征。设计师在进行酒店设计时,毅然抛弃了在都市化酒店中常见的设计美学煽情性处理方式,而转向有秩序和逻辑的空间建构,让精简却富有心理抚慰的格调与情怀充斥于酒店空间之中,形成具有瞬态性、有趣而精致。
于是,我们看到在“亚啡酒店”的公区,少见了私密性、个人化色彩强烈的区域,转而追求精致化、简约化和秩序感。在这里,设计师没有安排不必要的私密交流场所,更多是利用原建筑的柱网关系,形成不同的组群餐位、包间和群聚社交空间,呈现出灵活、多变的路径和不同体量的空间关系。
餐厅,在“亚啡酒店”成为公区的主角和人气聚留的场所。在散客独处的空间,设计师用代表古蜀文化的“太阳神鸟”的尾翼,创作出具有轻盈态势的空间装置,并将这种形态沿用至空间的各个角落处,让空间流动欲飞的神情。
作为主要服务于两类性质不同、但有共性的客群的精致型酒店,设计师的精力放在了客群的“共性融合”的身上,企求使酒店散发的人文气息以弥合两类主要的、性质截然不同的消费群体。我们看到自然、轻松的室内景观和墙、柱上斑驳的影调拉近了人与人的心理距离,令人有独处和社交的空间。
“成都天府国际机场”是一个新建的、具有现代化设施的国际空港,因此,它不能沿用破旧的酒店为航班延误或旅行中转的旅客服务。这类旅行消费的权益方,对的暂居酒店是否满意,不是取决于酒店是否豪华与舒适,而希冀酒店能安抚动荡、孤寂的心灵。因此,设计师在设计时,用了简约而自然的手法,使酒店充斥着宁静,静谧的人文气质,最大限度地满足了两类主要客群的心理预期。
在影影倬倬光影调性伴随着蕨类植物在灯光下,空间呈现出令人产生怜惜、羸弱的情怀和节奏,临时的社交氛围可能产生的“邂逅”,让人忘却旅途延误的不快和陌生社交的尴尬,反而有令人惺惺相惜的期待,这种偶然,都产生于设计师简约精致的氛围营造之间。
进入客房,设计师用精约、不落俗套的色彩和空间氛围,仿佛让人感觉到阳光倾洒在房间中的柔软与温情,即使在寒冷的冬夜,房间内可爱的橘色和精雅的室内陈设,也让人感到一丝暖意,可以驱散寒夜和旅途的波折带来的身心疲惫。
“亚啡酒店”,设计师就这样用不一样却准确的调性,使人们感到我们身处在“生活”之间,而不是在表演和舞台之上,空气中弥散着“雅的韵致”,让我们不疾不徐,驱散我们身上的戾气,这是简约的魅力,也是人本主义的精髓!
项目信息 项目名称:亚啡酒店东部新区店 项目地点:中国成都东部新区 项目面积:4600㎡ 设计时间:2020年8月 完成时间:2021年10月 设计机构:万谦集环境艺术设计 设计总监:汪宏 主案设计:谢小雨 李广辉 项目主材:艺术涂料、水磨石、仿铜不锈钢、韩膜 撰稿:张轶青 空间摄影:404NF STUDIO
关于万谦集 万谦集服务于各类商业空间项目,项目覆盖中国大陆及亚洲地区,企业致力于用全球化视野和更包容的国际化元素去展现传统用文化在当下该有的面貌;拥有多名优秀设计师及年轻设计人员。
汪宏 成都万谦集环境艺术设计有限公司 创始人、设计总监
客服
消息
收藏
下载
最近


































