查看完整案例


收藏

下载
©Rajesh Vora
建筑位于校园的核心,设计希望它成为一个来自不同学院专业的学生和教职员工的活动中心。在空间组织上,除了满足图书馆的功能要求,建筑在形式上与已有的校园建筑叙事交织在了一起。
感谢
RMA Architects
CEPT 图书馆坐落在 CEPT 大学校园中,由建筑师 B.V.Doshi 于 1960 年代设计,此后一直在建筑世界中占据着重要的位置,作为印度现代建筑的遗产,以其标志性的设计闻名。对这样的建筑进行当代化设计介入是一项巨大的挑战,需要在体现校园丰富历史的同时,反映当下的需求以及印度建筑发展方向。
▲建筑外观
©Rajesh Vora
图书馆旨在帮助大学从传统的指定教学向选择性教学转型。建筑位于校园的核心,设计希望它成为一个来自不同学院专业的学生和教职员工的活动中心。在空间组织上,除了满足图书馆的功能要求,建筑在形式上与已有的校园建筑叙事交织在了一起。通过与相邻建筑协调一致的平面、地面和地下楼层剖面的调整、以及材料的选择和表现,项目体现了对现有建筑表达连续性的尊重,这是 CEPT 校园数十年来的标志。在最基本的表现层面上,Lalbhai 图书馆呼应并预判了校园当下及未来的设施需求,设置了阅览室、正式和非正式的阅读空间、单人研习间、研讨室和管理办公室,以及更加柔软灵活的多功能空间,可以用来举办展览和报告会等活动。
▲可变百叶立面
©Rajesh Vora
▲立面上凹进的休息空间
©Rajesh Vora
▲图书馆外的广场
©Tina Nandi
▲图书馆与周边建筑呼应
©Tina Nandi
▲入口连桥
©Rajesh Vora
▲入口近景,室内外关系
©Tina Nandi
▲立面后的过渡空间
©Rajesh Vora
▲地下一层露台
©Tina Nandi
▲地下藏书区
©Tina Nandi
▲研习间
©Tina Nandi
▲图书馆各层视线相通
©Rajesh Vora
▲一层展厅
©Tina Nandi
▲二层阅览室
©Tina Nandi
由 RMA Architects 设计的图书馆试图以充满感情的方式回应上述挑战,适应独立后印度建筑丰富的现代叙事的同时,满足当代的需求和期望。建筑使用当代材料,在平面和剖面的空间设计上容纳多种功能,同时适应了 Ahmedabad 炎热干燥的天气,成为了项目的一项重要成就。设计还带来了富有趣味的形式和肌理,阳光穿过建筑的百叶表皮,创造出独特的建筑体验。材料和构造系统形成了独特的建筑语言,代表了印度新一代建筑的出现,延伸了经过精心调整和本地化的印度现代主义遗产。以可变百叶里面和裸露的混凝土为例,二者均回应了 Ahmadabad 市的建筑传统文脉。
▲不同空间的使用场景
©Dinesh Mehta
▲夜景
©Rajesh Vora
项目图纸
▲总平面图
©RMA Architects
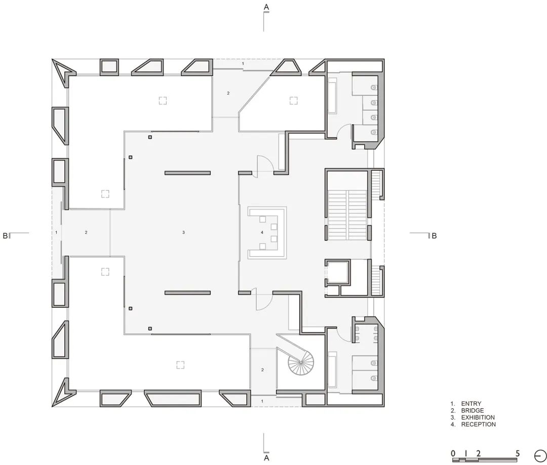
▲一层平面图
©RMA Architects
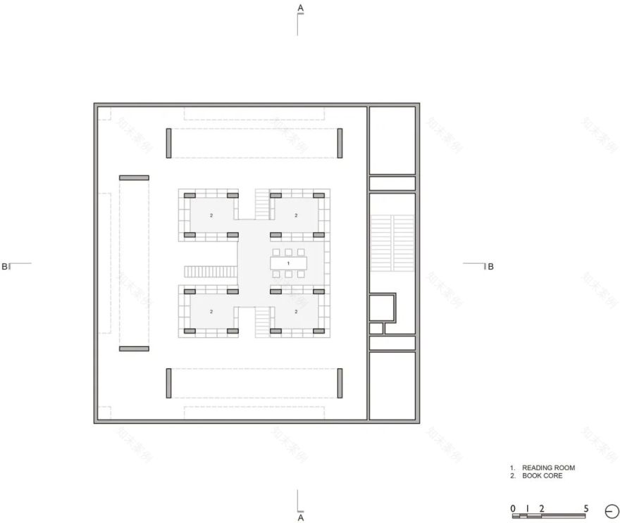
▲二层平面图
©RMA Architects
▲三层平面图
©RMA Architects
▲地下一层和夹层平面图
©RMA Architects
▲地下二层平面图
©RMA Architects
▲夹层 2 平面图
©RMA Architects
▲立面图
©RMA Architects
▲剖面图
©RMA Architects
▲细部
©RMA Architects
Client: Centre for Environment Planning and Technology (CEPT)
Area: 30,000 square feet
Start of Design: 2015
Occupation: 2017
Structure: N. K. Shah Consulting Engineers LLP
MEP: Arkk Consultants
Campus Architect: Dilip Patel
Facade: FACE for Louvers
Contractor: PSP Projects Limited
小号
小号
客服
消息
收藏
下载
最近






























