查看完整案例


收藏

下载

翻译
Architects:RMA Architects
Area :7000 m²
Year :2014
Photographs :Tina Nandi, Rajesh Vora, Rahul Mehrotra
Lead Architects :Rahul Mehrotra, Robert Stephens
Consultants :Vijay K. Patil & Associates, Arkk Consultants
City : Alibag
Country : India
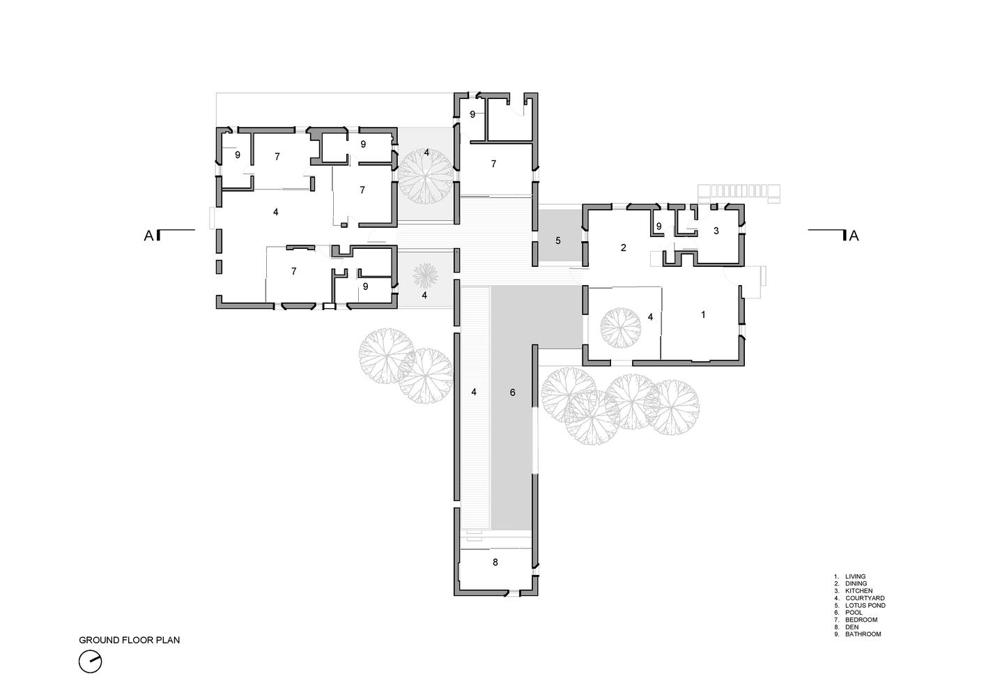
The Three Court House is conceived as a series of similar but varied modules that could be constructed incrementally. The use of discrete modules allows the form of the house to conform to, and take advantage of, the unique shape of the site. By restricting the height to one floor, the house is able to blend in with its humble surroundings. The incremental nature of the plan breaks down the scale and mass of the house to relate to the adjacent village. This is contrary to most weekend homes in the area that consolidate space in a large 'villa-like' form. The approach of disaggregating form is a model that could be used for middle class families whose economic condition forces incremental investments in their homes. A small outbuilding at the entry of the site, constructed with the same formal and material palette as the house, contains a clinic - as the owner of the home is a well-known medical practitioner. Adjacent to the clinic are staff residences, and together these two programs create a social interface and soft threshold with the village.
Articulation of materials further breaks down the scale of the house, with a heavier base in locally sourced basalt stone and an upper portion of lighter masonry materials, including an inwardly sloping Mangalore tile roof. Specific detailing, including large splayed windows, is finished in hand crafted copper. The three modules that comprise the house are connected via wooden walkways bounded by clear glass panels, further accentuating the independent identity of each module. The roofline features minimal copper flashing which, in addition to serving as a waterproofing element, creates a visual highlight when caught by the sun.
Each of the modules contains programmatic elements that are organized around an exterior courtyard. Large sliding glass doors can be opened to connect the inside and outside, allowing the living spaces to expand into the courtyard. The spaces are ordered by a privacy gradient, becoming more private with distance from the entry. Furthermore, each module can be closed off from the rest of the house as and when needed. The bedroom wing is collapsible, such that it can serve as one large family room or alternatively - with a series of sliding doors - individual rooms with privacy for each person.
While the materials used are minimal and frugal, and based on local availability, they coalesce in rich configurations. Through the use of simple materials and varied textures, the quality of light is modulated to highlight and enhance each material’s inherent richness. Tinted panes of glass filter squares of colorful light, which move through the space during the course of the day. Reflections off of the water and other surfaces provide dynamic light into shaded areas. The combination of a basic geometric formal language, constructed and accentuated using modest materials, creates unique atmospheric qualities depending on the space, time of day, and season of the year.
▼项目更多图片
客服
消息
收藏
下载
最近






















