查看完整案例


收藏

下载
架构师提供的文本描述。Idghti是一家广告和品牌公司,由一个父子三人经营,他们希望把他们在城市不同地区的家和办公室合并成一个宽敞的现场工作单元。当我们被接近时,已经在一个相对紧凑的270平方米的土地上购买了一座用于这一目的建筑物。现有的结构是一种典型的建筑风格,在整个喀拉拉邦都很流行,日光很低,人物更少。由于对瓦斯图(传统的印度建筑体系)的半生不熟的解释,房间的狭小使得事情变得更糟。
Text description provided by the architects. Identiti is an advertising and branding agency run by a father-sons trio who wished to consolidate their home and office in different parts of the city into a spacious live-work unit. By the time we were approached, a building had been purchased for this purpose on a relatively compact 270 sqm site. The existing structure was an archetype of a build to rent style prevalent throughout Kerala with low daylight and even lesser character. Cramped room sizes resulting from a half-baked interpretation of Vastu (traditional Indian system of architecture) made matters worse.
© Vishnu Raj
c.Vishnu Raj
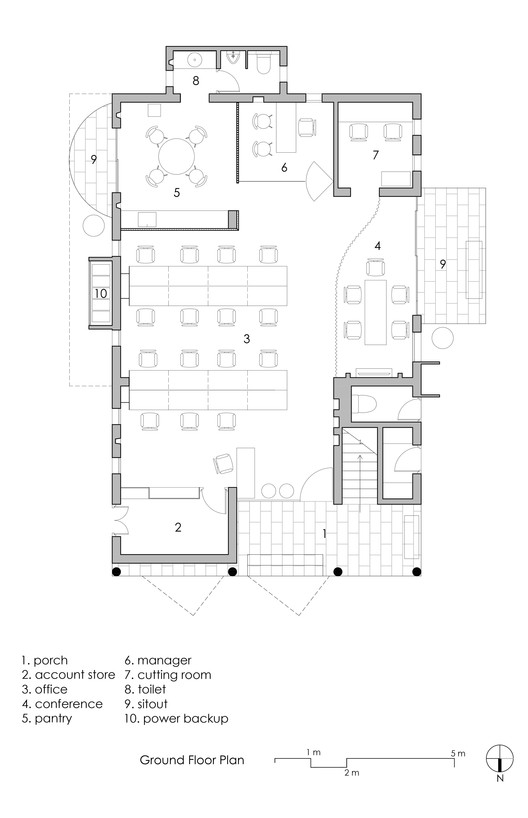
翻修必须是戏剧性的,以配合其精力充沛的居住者。这座大楼是为了容纳一个20名雇员的办公室,以及一个不断扩大的联合家庭。它还需要一个与它的邻居不同的外观,暗示它的混合用途的化身。我们以一种内向外的方式开始,把内部雕刻出来,以满足每一层的空间要求。这间基本上是一层的免费办公室,在第一层通往父母的公寓(带有传统的封闭厨房和公共设施平台),最后在第二层进入儿子的开放式公寓。氧化亚铁墙壁的特点是突出的元素在每一层,内置照明功能。东面的水泥格让近邻提供视觉隐私,并将光线过滤到生活空间。除墙壁外,二楼部分楼板亦被拆卸,以连接两个住宅楼面露台。
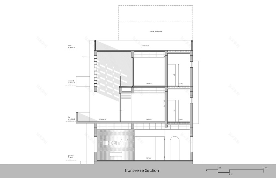
The renovation had to be dramatic to match its energetic occupants. The building was to cater for an office of 20 employees in addition to an expanding joint family. It also needed a look distinct from its neighbours hinting at its mixed-use avatar. We began with an inside out approach carving out the interior to match the space requirements of each floor. The largely column free office on the ground floor proceeding to the parents’ apartment on the first (with a traditional closed kitchen and utility terrace) and finally onto the sons’ open plan apartment on the second. Ferrous oxide walls feature as prominent elements on each floor with built in lighting features. A cement lattice to the east gives visual privacy from close neighbours and filters light to the living spaces. In addition to the walls, a portion of the second floor slab was also demolished to link the two residential floor balconies.
© Vishnu Raj
c.Vishnu Raj
Ground floor plan
© Vishnu Raj
c.Vishnu Raj
在外观上,通过石膏和颜色的表面处理,将公共/私人功能在视觉上分开。一堵红色的石墙,从公司的标志中提取出它的颜色,包裹在大楼周围,使它与周围的住宅区分开来。大型阳台用抛光水泥完成,横跨两层,朝前突出。内建的种植园就像垂直的厨房花园,用来种植爬虫和草本植物。该建筑的目标是在一个密集的城市环境中,结合各种空间和功能,为生活注入活力。
On the exterior, the public/private functions are visually separated by the surface treatment of plaster and colour. A red ochre wall deriving its colour from the company logo wraps around the building setting it apart from its residential surrounding. Large balconies finished in polished cement and spanning two floors jut out towards the front. Inbuilt planters within act as vertical kitchen gardens used to grow creepers and herbs. The building aims to be a model of invigoration for life in a dense urban environment incorporating a variety of spaces and functions.
© Vishnu Raj
c.Vishnu Raj
Second floor plan
二层平面图
© Vishnu Raj
c.Vishnu Raj
客服
消息
收藏
下载
最近






















