查看完整案例


收藏

下载
“Bofia”在沙特阿拉伯意指快速提供廉价路边食物的本地餐厅。The Tiled Cloud项目更新了传统“Bofia”生硬直白的设计形式。Azaz Architects希望在此项目中为当代高档Bofia找到合适的建筑策略和材料特征。
Bofia_The Tiled Cloud is an update design to the typically unapologetic, blunt and straightforward style of the common “Bofia”, a term coined in Saudi Arabia for the local canteens famous for serving quick, local and reasonably priced street food. The Tiled cloud is Azaz Architect’s take on finding architectural solutions and material identities to modern-days upscale Bofia.
▼室内空间一瞥,a glimpse of the interior space
在沙特阿拉伯,Bofia是一种整合的街边餐饮类型。这种咖啡厅式的餐厅十分流行,几乎在任何地方都可以找到它的踪影,使得Bofia成为了当地特色食物中不可分割的一部分。尽管如此,在工业繁荣的冲击下,Bofia逐渐受到冷落。对于Azaz Architects来说,The Tiled Clous项目将建筑上的幻想变成了现实。
Bofias are a well-integrated street food typology in Saudi Arabia. So famous, this cafeteria style restaurant can be almost always nearby anywhere in the country. This has made Bofias an integral part of the local food identity. However, Bofias have been left out of the flourishment of the industry in Saudi Arabia. For Azaz Architects, Bofia_The Tiled Cloud is an architectural fantasy turned into reality.
▼设计概念
design concept
The Tiled Cloud位于利雅得,其所处的建筑本身以简洁的几何形式和笔直的线条为特征。与之相对,项目以漂浮的体块为概念,在棱角分明的外观与室内空间之间创造了平滑的过渡。设计师将内部体量想象成了一团漂浮在空间中的云朵,无缝地将繁忙的后场抬起,与前部区域分隔开来。公共空间被设置在云朵外部并与之保持一定距离,让游客能够欣赏其独特的建筑几何体量。
▼分解轴测图
exploded axonometric
Bofia_The Tiled Cloud is located in Riyadh within its own building with ordinary architecture of sorts, made of simple geometry and straight lines. To contrast that, the project was developed around the idea of building a floating mass that creates a smooth transition between the areas inside the space and the exterior with its sharp angles. The interior mass is imagined as a cloud that floats within the space to seamlessly separate and lift the busy back of house from the front of house areas. The public areas are allocated outside of the cloud and within a distance to allow for visitors to appreciate the architectural geometry created.
▼棱角分明的建筑与弧线形的室内,exterior with sharp angles and interior with curved lines
▼室内空间概览,overall view of the interior
▼公共就餐区,public dining area
▼从圆窗看向厨房
kitchen is visible from the round window
▼厨房,kitchen
▼餐桌和座椅细部,closer view to the tables and seats
▼弧形墙体分割的私密就餐区,private dining area defined by curved walls
▼私密就餐区细部,closer view to the private dining area
白色瓷砖成为了空间的主要幕布,与银色的金属泡沫铝形成对比。令人惊讶的灯带穿过空间,为白色瓷砖铺设的Bofia增添了一抹流行的色彩。通过巧妙的灯光操控,设计让空间在白天和夜晚讲述着不同的故事。白色和浅色的使用给人以轻盈通透的感觉,并且可以更好地反射自然光。有趣的是,游客和评论家对于设计应被认为是极简主义还是极繁主义,意见不一。
▼白色瓷砖与泡沫铝的对比,contrast between the white tiles and aluminum foam
▼浅色材料上的光与影,light and shadows on the light colored materials
White tiles are creating the main canvas of the space contrasted with silver metallic aluminum foam. Complemented with a strike of light flying through the space to add a pop of color to the white tiled Bofia. Through smart light programming the design offers different story-telling to the space during day time and night time. The use of white and light colors gives a sense of airiness and high natural light reflectivity. Interestingly, visitor and observer opinions have been evenly split on whether the design is considered minimalist or maximalist.
▼贯穿餐厅的灯带,lighting belt running through the restaurant
▼灯光为空间添色
lighting adds color to the space
▼夜晚从室外看向室内
view to the interior from the outside in the night
▼一层平面图,ground floor plan
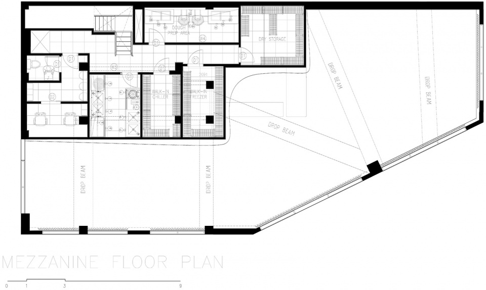
▼夹层平面图,mezzanine floor plan
▼剖面图,sections
Designer: Azaz Architects
Design Team: Shahad Alazzaz, Abdullah Alazzaz, Alaa Suliman, Lena Abdali
Lighting Desgin: Light Func
Photographer: Mansor Alsofi
Branding: Lot Studio
Tiles: DTiles
Furniture: Con.fort chairs by Opinion Ciatti
Aluminum Foam: Alusion
客服
消息
收藏
下载
最近


































