查看完整案例


收藏

下载
这是一个典型的无玄关户型,进门即餐厅。
为了满足进出门时随手置物及日常储物需求,在入户门右手边定制了一面半开放式鞋柜。
靠近门的区域留空,兼具换鞋凳+挂衣区的功能。
入户鞋柜与餐边柜相连,中间以一面全身镜切割,既能区分出不同的功能,又能带来一气呵成的视觉效果,让空间气质更显大气简约。
从进门位置看向整个一层空间,地面、顶面、四周墙面没有做任何多余修饰,餐桌餐椅、餐边柜也是极其简约利落的款式,所以即使原始户型较为狭长,也不会显得拥堵逼仄。
餐厅对面是厨房,门洞被拉伸至与天花板平齐,有效拉伸视觉层高,更显开阔与敞亮。
由于厨房离客厅较远,且有通风窗,便没有设置传统隔断门,阳光可以透过内部窗户,洒进较为缺乏采光的入户空间。
内部以浅灰色墙砖搭配深蓝色+深木色橱柜,大气、稳重且有视觉亮点。
下柜+吊柜+高柜的形式,可以容纳下任何尺寸的厨房用品。
调料、刀具等常用物品则直接上墙,方便做饭时随手取用,同时也为操作台面腾出更多空间。
客厅位于餐厅右侧,虽然面积不算大,却是整个房子里采光最好的地方。
客厅地面通铺大理石地砖,天花板保留原始挑空高度,避免整体空间逼仄压抑。
除了一盏大型主灯外,周围还搭配了各种辅助光源,让光影更加丰富有层次。
墨绿色的沙发搭配橙色抱枕和半墙,两种相互冲突的颜色碰撞在一起,为简洁的空间带来恰到好处的戏剧效果,很难不让人感到眼前一亮。
细节上,半墙内侧安装暖黄色灯带,既能辅助照明,又能增添更多的温馨感。
落地窗下做了一小块地台,踩着台阶拾级而上,便可以坐在这里阅读、晒太阳,享受难得的“浮生半日闲”。
地台朝向沙发的一侧,是一个小书架,坐在沙发上便可随手拿取书籍阅读。
沿着悬空楼梯向上走,便能来到私密的居住空间。
主卧在一层,目前是男主人独自居住。(女主人陪女儿睡在二楼)
以大地色+绿为主调,清新淡雅,营造出沉静安定的睡眠氛围。
双人床左侧是正面墙的衣柜,柜体采用无把手的按压形式,大气利落。
男孩房以白+蓝为主调,在简洁的大背景下保留了少许儿童元素,活泼、明快且不会给人以低龄化的感受。
虽然这里面积不大,却依然利用有限的空间,定制了整面墙的衣柜,柜体直接连接书桌,整体感极强。
推开女儿房的房门,左手边是一个透明展示柜,里面摆放着多年来收藏的手办和玩具等物。
小型展示柜与衣柜相连,让整体空间没有丝毫割裂感。
床头背景墙和床头柜皆有弧形元素,既能相互呼应,又能丰富与柔化空间线条,带来更加浪漫的居住体验。
顶面无主灯设计+床头吊灯增加氛围感,浅蓝色窗帘搭配粉色床品,让整个空间显得更加柔和。
整个房子中共有两个卫生间。
客卫在一层,设计师将其做成了三分离的形式,方便多人同时使用。
圆形的洗漱镜搭配水磨石墙砖,精致简洁。
吹风机直接设置在墙上,所有零件都能一目了然,方便随手取用。
淋浴房内部面积不大,为了节约空间,便在花洒旁设置了壁龛置物。
二层卫生间以满足储物功能为主,镜柜与下柜结合在一起,便可容纳大量日用品囤货。
虽然这里面积不大,但设计却不能马虎。
淋浴区背景墙铺贴黑白水墨风格瓷砖,即使没有隔断,也能区分出独特的使用功能,且让空间氛围更加素雅。
原始户型分析:
1. 楼梯位置影响厨房空间;
2. 若楼下保留两间卧室,客厅和厨房空间小,且采光不好。
一层空间改造说明:
1、一层空间改动较大,通过拆除墙体的方式将厨房空间扩大,缩小餐厅面积;
2、卫生间设计成三分离,互不干扰
一层平面布置图
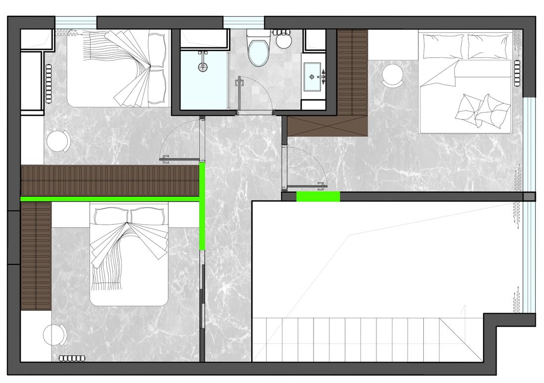
二层原始空间布局不合理,不能满足一家四口的生活需求,部分区域需要重新划分
户型改造:
1. 改变二层钢结构及楼梯位置;
2. 一层保留一个卧室,二层三个卧室;
3. 改变视觉格局;
4. 二层衣帽间扩大做卧室;
5. 卫生间三分离。
二层平面布置图
客服
消息
收藏
下载
最近

































