查看完整案例


收藏

下载
客厅空间利用不同深浅的白色与灰色进行铺陈,每个部分的颜色都自然过渡,让空间显得静谧而又温柔。协调统一的配色,降低了对居者的视觉刺激,全房无主灯设计,让空间更添明亮开阔,温馨治愈的氛围油然而生。考虑到开门见厅的格局,入户门一侧的墙面也足够宽敞,因此我们采用了玄关柜+电视柜的一体化设计,既满足储物功能,一眼望去,又不失整洁质感。以开放格展示柜作为客厅与餐厅的过渡区,自然划分出空间的层次。阳台采光好、通风佳,有着很棒的视野,整栋楼前没有一丝遮拦,可以看到几公里外欢乐谷的摩天轮,但因为楼层、噪音和灰尘的问题,以及对整个公区的考虑,我们将阳台包入客厅。通过地板材质的差异让空间自然过渡。阳台的端头两边分别设置为储物区与洗衣区,提高空间使用率的同时,也让整个客厅的通透性达到最佳状态。
客厅空间利用不同深浅的白色与灰色进行铺陈,每个部分的颜色都自然过渡,让空间显得静谧而又温柔。协调统一的配色,降低了对居者的视觉刺激,全房无主灯设计,让空间更添明亮开阔,温馨治愈的氛围油然而生。考虑到开门见厅的格局,入户门一侧的墙面也足够宽敞,因此我们采用了玄关柜+电视柜的一体化设计,既满足储物功能,一眼望去,又不失整洁质感。以开放格展示柜作为客厅与餐厅的过渡区,自然划分出空间的层次。阳台采光好、通风佳,有着很棒的视野,整栋楼前没有一丝遮拦,可以看到几公里外欢乐谷的摩天轮,但因为楼层、噪音和灰尘的问题,以及对整个公区的考虑,我们将阳台包入客厅。通过地板材质的差异让空间自然过渡。阳台的端头两边分别设置为储物区与洗衣区,提高空间使用率的同时,也让整个客厅的通透性达到最佳状态。
客厅空间利用不同深浅的白色与灰色进行铺陈,每个部分的颜色都自然过渡,让空间显得静谧而又温柔。协调统一的配色,降低了对居者的视觉刺激,全房无主灯设计,让空间更添明亮开阔,温馨治愈的氛围油然而生。考虑到开门见厅的格局,入户门一侧的墙面也足够宽敞,因此我们采用了玄关柜+电视柜的一体化设计,既满足储物功能,一眼望去,又不失整洁质感。以开放格展示柜作为客厅与餐厅的过渡区,自然划分出空间的层次。阳台采光好、通风佳,有着很棒的视野,整栋楼前没有一丝遮拦,可以看到几公里外欢乐谷的摩天轮,但因为楼层、噪音和灰尘的问题,以及对整个公区的考虑,我们将阳台包入客厅。通过地板材质的差异让空间自然过渡。阳台的端头两边分别设置为储物区与洗衣区,提高空间使用率的同时,也让整个客厅的通透性达到最佳状态。
客厅空间利用不同深浅的白色与灰色进行铺陈,每个部分的颜色都自然过渡,让空间显得静谧而又温柔。协调统一的配色,降低了对居者的视觉刺激,全房无主灯设计,让空间更添明亮开阔,温馨治愈的氛围油然而生。考虑到开门见厅的格局,入户门一侧的墙面也足够宽敞,因此我们采用了玄关柜+电视柜的一体化设计,既满足储物功能,一眼望去,又不失整洁质感。以开放格展示柜作为客厅与餐厅的过渡区,自然划分出空间的层次。阳台采光好、通风佳,有着很棒的视野,整栋楼前没有一丝遮拦,可以看到几公里外欢乐谷的摩天轮,但因为楼层、噪音和灰尘的问题,以及对整个公区的考虑,我们将阳台包入客厅。通过地板材质的差异让空间自然过渡。阳台的端头两边分别设置为储物区与洗衣区,提高空间使用率的同时,也让整个客厅的通透性达到最佳状态。
客厅空间利用不同深浅的白色与灰色进行铺陈,每个部分的颜色都自然过渡,让空间显得静谧而又温柔。协调统一的配色,降低了对居者的视觉刺激,全房无主灯设计,让空间更添明亮开阔,温馨治愈的氛围油然而生。考虑到开门见厅的格局,入户门一侧的墙面也足够宽敞,因此我们采用了玄关柜+电视柜的一体化设计,既满足储物功能,一眼望去,又不失整洁质感。以开放格展示柜作为客厅与餐厅的过渡区,自然划分出空间的层次。阳台采光好、通风佳,有着很棒的视野,整栋楼前没有一丝遮拦,可以看到几公里外欢乐谷的摩天轮,但因为楼层、噪音和灰尘的问题,以及对整个公区的考虑,我们将阳台包入客厅。通过地板材质的差异让空间自然过渡。阳台的端头两边分别设置为储物区与洗衣区,提高空间使用率的同时,也让整个客厅的通透性达到最佳状态。
客厅空间利用不同深浅的白色与灰色进行铺陈,每个部分的颜色都自然过渡,让空间显得静谧而又温柔。协调统一的配色,降低了对居者的视觉刺激,全房无主灯设计,让空间更添明亮开阔,温馨治愈的氛围油然而生。考虑到开门见厅的格局,入户门一侧的墙面也足够宽敞,因此我们采用了玄关柜+电视柜的一体化设计,既满足储物功能,一眼望去,又不失整洁质感。以开放格展示柜作为客厅与餐厅的过渡区,自然划分出空间的层次。阳台采光好、通风佳,有着很棒的视野,整栋楼前没有一丝遮拦,可以看到几公里外欢乐谷的摩天轮,但因为楼层、噪音和灰尘的问题,以及对整个公区的考虑,我们将阳台包入客厅。通过地板材质的差异让空间自然过渡。阳台的端头两边分别设置为储物区与洗衣区,提高空间使用率的同时,也让整个客厅的通透性达到最佳状态。
客厅空间利用不同深浅的白色与灰色进行铺陈,每个部分的颜色都自然过渡,让空间显得静谧而又温柔。协调统一的配色,降低了对居者的视觉刺激,全房无主灯设计,让空间更添明亮开阔,温馨治愈的氛围油然而生。考虑到开门见厅的格局,入户门一侧的墙面也足够宽敞,因此我们采用了玄关柜+电视柜的一体化设计,既满足储物功能,一眼望去,又不失整洁质感。以开放格展示柜作为客厅与餐厅的过渡区,自然划分出空间的层次。阳台采光好、通风佳,有着很棒的视野,整栋楼前没有一丝遮拦,可以看到几公里外欢乐谷的摩天轮,但因为楼层、噪音和灰尘的问题,以及对整个公区的考虑,我们将阳台包入客厅。通过地板材质的差异让空间自然过渡。阳台的端头两边分别设置为储物区与洗衣区,提高空间使用率的同时,也让整个客厅的通透性达到最佳状态。
客厅空间利用不同深浅的白色与灰色进行铺陈,每个部分的颜色都自然过渡,让空间显得静谧而又温柔。协调统一的配色,降低了对居者的视觉刺激,全房无主灯设计,让空间更添明亮开阔,温馨治愈的氛围油然而生。考虑到开门见厅的格局,入户门一侧的墙面也足够宽敞,因此我们采用了玄关柜+电视柜的一体化设计,既满足储物功能,一眼望去,又不失整洁质感。以开放格展示柜作为客厅与餐厅的过渡区,自然划分出空间的层次。阳台采光好、通风佳,有着很棒的视野,整栋楼前没有一丝遮拦,可以看到几公里外欢乐谷的摩天轮,但因为楼层、噪音和灰尘的问题,以及对整个公区的考虑,我们将阳台包入客厅。通过地板材质的差异让空间自然过渡。阳台的端头两边分别设置为储物区与洗衣区,提高空间使用率的同时,也让整个客厅的通透性达到最佳状态。
客厅空间利用不同深浅的白色与灰色进行铺陈,每个部分的颜色都自然过渡,让空间显得静谧而又温柔。协调统一的配色,降低了对居者的视觉刺激,全房无主灯设计,让空间更添明亮开阔,温馨治愈的氛围油然而生。考虑到开门见厅的格局,入户门一侧的墙面也足够宽敞,因此我们采用了玄关柜+电视柜的一体化设计,既满足储物功能,一眼望去,又不失整洁质感。以开放格展示柜作为客厅与餐厅的过渡区,自然划分出空间的层次。阳台采光好、通风佳,有着很棒的视野,整栋楼前没有一丝遮拦,可以看到几公里外欢乐谷的摩天轮,但因为楼层、噪音和灰尘的问题,以及对整个公区的考虑,我们将阳台包入客厅。通过地板材质的差异让空间自然过渡。阳台的端头两边分别设置为储物区与洗衣区,提高空间使用率的同时,也让整个客厅的通透性达到最佳状态。
墙面用水泥质感涂料与进口漆结合的方式进行组合涂刷,让不同材质纹路进行碰撞,奠定了餐区简约静谧的基调,再利用色彩进行相互协调,配合灯光以及墙面装饰物,营造一种温馨又优雅的用餐氛围。餐厅背后的厨房门,选用了与电视背景墙相类似的长虹玻璃,相同的元素在同一空间巧妙地呼应,在这里可以与家人一起享用美食、进行互动,治愈工作生活中的所有疲惫。
墙面用水泥质感涂料与进口漆结合的方式进行组合涂刷,让不同材质纹路进行碰撞,奠定了餐区简约静谧的基调,再利用色彩进行相互协调,配合灯光以及墙面装饰物,营造一种温馨又优雅的用餐氛围。餐厅背后的厨房门,选用了与电视背景墙相类似的长虹玻璃,相同的元素在同一空间巧妙地呼应,在这里可以与家人一起享用美食、进行互动,治愈工作生活中的所有疲惫。
墙面用水泥质感涂料与进口漆结合的方式进行组合涂刷,让不同材质纹路进行碰撞,奠定了餐区简约静谧的基调,再利用色彩进行相互协调,配合灯光以及墙面装饰物,营造一种温馨又优雅的用餐氛围。餐厅背后的厨房门,选用了与电视背景墙相类似的长虹玻璃,相同的元素在同一空间巧妙地呼应,在这里可以与家人一起享用美食、进行互动,治愈工作生活中的所有疲惫。
墙面用水泥质感涂料与进口漆结合的方式进行组合涂刷,让不同材质纹路进行碰撞,奠定了餐区简约静谧的基调,再利用色彩进行相互协调,配合灯光以及墙面装饰物,营造一种温馨又优雅的用餐氛围。餐厅背后的厨房门,选用了与电视背景墙相类似的长虹玻璃,相同的元素在同一空间巧妙地呼应,在这里可以与家人一起享用美食、进行互动,治愈工作生活中的所有疲惫。
墙面用水泥质感涂料与进口漆结合的方式进行组合涂刷,让不同材质纹路进行碰撞,奠定了餐区简约静谧的基调,再利用色彩进行相互协调,配合灯光以及墙面装饰物,营造一种温馨又优雅的用餐氛围。餐厅背后的厨房门,选用了与电视背景墙相类似的长虹玻璃,相同的元素在同一空间巧妙地呼应,在这里可以与家人一起享用美食、进行互动,治愈工作生活中的所有疲惫。
墙面用水泥质感涂料与进口漆结合的方式进行组合涂刷,让不同材质纹路进行碰撞,奠定了餐区简约静谧的基调,再利用色彩进行相互协调,配合灯光以及墙面装饰物,营造一种温馨又优雅的用餐氛围。餐厅背后的厨房门,选用了与电视背景墙相类似的长虹玻璃,相同的元素在同一空间巧妙地呼应,在这里可以与家人一起享用美食、进行互动,治愈工作生活中的所有疲惫。
厨房设计成了L型导台折回形式。灵动的布局设计,不仅增加收纳空间,还能提升烹饪效率。整体采用银灰色与黑色的经典搭配,厨房空间更显高级。
从客厅步入休息区,略显冗长的过道顶面由两条嵌入隐形灯带做动线引导。同时藉由客厅的开放格与陈列工艺品、艺术绘画等做端景,形成更丰富的景观层次。
主卧的布局别出心裁,我们拆除了次卧的非承重墙,打通后主卧巧变套房,舒适度大大提升,同时也满足了业主想要一个衣帽间的愿望。主色调延用了与客厅相同的浅灰色,颜色十分柔和,为空间增添了几分优雅与静谧,搭配暖色系的家具软饰,演绎出温馨、舒适的居住氛围。原始次卧被包进主卧后,一分为二改为衣帽间+书房。靠窗区域光线充足,设计L型书桌用于办公学习。靠里区域私密性更强,打造衣帽间用于满足收纳储物需求,衣柜搭配穿衣镜和氛围灯,时尚大气又高级。
主卧的布局别出心裁,我们拆除了次卧的非承重墙,打通后主卧巧变套房,舒适度大大提升,同时也满足了业主想要一个衣帽间的愿望。主色调延用了与客厅相同的浅灰色,颜色十分柔和,为空间增添了几分优雅与静谧,搭配暖色系的家具软饰,演绎出温馨、舒适的居住氛围。原始次卧被包进主卧后,一分为二改为衣帽间+书房。靠窗区域光线充足,设计L型书桌用于办公学习。靠里区域私密性更强,打造衣帽间用于满足收纳储物需求,衣柜搭配穿衣镜和氛围灯,时尚大气又高级。
主卧的布局别出心裁,我们拆除了次卧的非承重墙,打通后主卧巧变套房,舒适度大大提升,同时也满足了业主想要一个衣帽间的愿望。主色调延用了与客厅相同的浅灰色,颜色十分柔和,为空间增添了几分优雅与静谧,搭配暖色系的家具软饰,演绎出温馨、舒适的居住氛围。原始次卧被包进主卧后,一分为二改为衣帽间+书房。靠窗区域光线充足,设计L型书桌用于办公学习。靠里区域私密性更强,打造衣帽间用于满足收纳储物需求,衣柜搭配穿衣镜和氛围灯,时尚大气又高级。
主卧的布局别出心裁,我们拆除了次卧的非承重墙,打通后主卧巧变套房,舒适度大大提升,同时也满足了业主想要一个衣帽间的愿望。主色调延用了与客厅相同的浅灰色,颜色十分柔和,为空间增添了几分优雅与静谧,搭配暖色系的家具软饰,演绎出温馨、舒适的居住氛围。原始次卧被包进主卧后,一分为二改为衣帽间+书房。靠窗区域光线充足,设计L型书桌用于办公学习。靠里区域私密性更强,打造衣帽间用于满足收纳储物需求,衣柜搭配穿衣镜和氛围灯,时尚大气又高级。
主卧的布局别出心裁,我们拆除了次卧的非承重墙,打通后主卧巧变套房,舒适度大大提升,同时也满足了业主想要一个衣帽间的愿望。主色调延用了与客厅相同的浅灰色,颜色十分柔和,为空间增添了几分优雅与静谧,搭配暖色系的家具软饰,演绎出温馨、舒适的居住氛围。原始次卧被包进主卧后,一分为二改为衣帽间+书房。靠窗区域光线充足,设计L型书桌用于办公学习。靠里区域私密性更强,打造衣帽间用于满足收纳储物需求,衣柜搭配穿衣镜和氛围灯,时尚大气又高级。
主卫的空间不大,经过精密计算后,设计为了干湿分区。水磨石墙地砖提升了主卫的颜值,也为单调的卫浴空间增添了些许趣味性。
多功能房采用榻榻米床+书桌柜的设计,最大化增加储物空间且扩大空间视觉效果,同时也能兼顾睡眠区、学习区,以后还可以作为儿童房使用。可谓是小小空间功能性满满~
多功能房采用榻榻米床+书桌柜的设计,最大化增加储物空间且扩大空间视觉效果,同时也能兼顾睡眠区、学习区,以后还可以作为儿童房使用。可谓是小小空间功能性满满~
次卧作为客房,主要预留给老家的亲朋好友来渝探望或旅行时过来暂住使用,装饰比较简单,仅用温馨柔和的色彩营造出宁静而放松的休憩氛围。
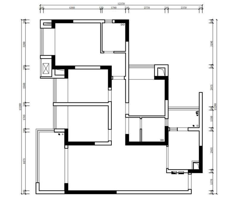
原始结构图
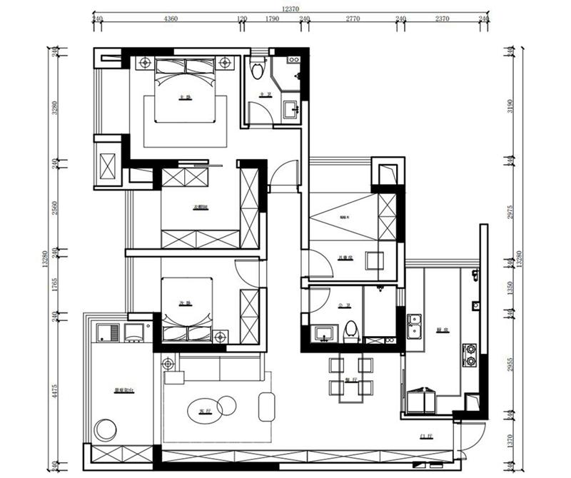
平面布置图
客服
消息
收藏
下载
最近






























