查看完整案例


收藏

下载
考虑到住宅的采光条件不错,所以主色调最终选择了灰咖色。客厅阳台内扩后安装落地窗,灰咖在自然光的烘托下,房屋显得既明亮通透、又有高级质感。整个顶部的设计遵循了“大气至简”的中心思想,用灯光布局承担氛围渲染的作用。主灯选择造型出挑的线性灯,也是最近十分流行的款式,作为空间活跃的点缀。同时在除了靠阳台的一侧,其他三边吊顶都增加了1cm嵌入式发光灯条,强化客厅采光的同时增加灯光层次和氛围的变化。电视墙地台离地3cm做内凹收口,没有完全落地,一则避免硬直线条的呆板感,二来为设计格调一致的居室带来一些细微层次感的变化。整个客厅呈现出一致、极简的美,也不乏打破呆板的细节变化。
考虑到住宅的采光条件不错,所以主色调最终选择了灰咖色。客厅阳台内扩后安装落地窗,灰咖在自然光的烘托下,房屋显得既明亮通透、又有高级质感。整个顶部的设计遵循了“大气至简”的中心思想,用灯光布局承担氛围渲染的作用。主灯选择造型出挑的线性灯,也是最近十分流行的款式,作为空间活跃的点缀。同时在除了靠阳台的一侧,其他三边吊顶都增加了1cm嵌入式发光灯条,强化客厅采光的同时增加灯光层次和氛围的变化。电视墙地台离地3cm做内凹收口,没有完全落地,一则避免硬直线条的呆板感,二来为设计格调一致的居室带来一些细微层次感的变化。整个客厅呈现出一致、极简的美,也不乏打破呆板的细节变化。
考虑到住宅的采光条件不错,所以主色调最终选择了灰咖色。客厅阳台内扩后安装落地窗,灰咖在自然光的烘托下,房屋显得既明亮通透、又有高级质感。整个顶部的设计遵循了“大气至简”的中心思想,用灯光布局承担氛围渲染的作用。主灯选择造型出挑的线性灯,也是最近十分流行的款式,作为空间活跃的点缀。同时在除了靠阳台的一侧,其他三边吊顶都增加了1cm嵌入式发光灯条,强化客厅采光的同时增加灯光层次和氛围的变化。电视墙地台离地3cm做内凹收口,没有完全落地,一则避免硬直线条的呆板感,二来为设计格调一致的居室带来一些细微层次感的变化。整个客厅呈现出一致、极简的美,也不乏打破呆板的细节变化。
考虑到住宅的采光条件不错,所以主色调最终选择了灰咖色。客厅阳台内扩后安装落地窗,灰咖在自然光的烘托下,房屋显得既明亮通透、又有高级质感。整个顶部的设计遵循了“大气至简”的中心思想,用灯光布局承担氛围渲染的作用。主灯选择造型出挑的线性灯,也是最近十分流行的款式,作为空间活跃的点缀。同时在除了靠阳台的一侧,其他三边吊顶都增加了1cm嵌入式发光灯条,强化客厅采光的同时增加灯光层次和氛围的变化。电视墙地台离地3cm做内凹收口,没有完全落地,一则避免硬直线条的呆板感,二来为设计格调一致的居室带来一些细微层次感的变化。整个客厅呈现出一致、极简的美,也不乏打破呆板的细节变化。
考虑到住宅的采光条件不错,所以主色调最终选择了灰咖色。客厅阳台内扩后安装落地窗,灰咖在自然光的烘托下,房屋显得既明亮通透、又有高级质感。整个顶部的设计遵循了“大气至简”的中心思想,用灯光布局承担氛围渲染的作用。主灯选择造型出挑的线性灯,也是最近十分流行的款式,作为空间活跃的点缀。同时在除了靠阳台的一侧,其他三边吊顶都增加了1cm嵌入式发光灯条,强化客厅采光的同时增加灯光层次和氛围的变化。电视墙地台离地3cm做内凹收口,没有完全落地,一则避免硬直线条的呆板感,二来为设计格调一致的居室带来一些细微层次感的变化。整个客厅呈现出一致、极简的美,也不乏打破呆板的细节变化。
考虑到住宅的采光条件不错,所以主色调最终选择了灰咖色。客厅阳台内扩后安装落地窗,灰咖在自然光的烘托下,房屋显得既明亮通透、又有高级质感。整个顶部的设计遵循了“大气至简”的中心思想,用灯光布局承担氛围渲染的作用。主灯选择造型出挑的线性灯,也是最近十分流行的款式,作为空间活跃的点缀。同时在除了靠阳台的一侧,其他三边吊顶都增加了1cm嵌入式发光灯条,强化客厅采光的同时增加灯光层次和氛围的变化。电视墙地台离地3cm做内凹收口,没有完全落地,一则避免硬直线条的呆板感,二来为设计格调一致的居室带来一些细微层次感的变化。整个客厅呈现出一致、极简的美,也不乏打破呆板的细节变化。
考虑到住宅的采光条件不错,所以主色调最终选择了灰咖色。客厅阳台内扩后安装落地窗,灰咖在自然光的烘托下,房屋显得既明亮通透、又有高级质感。整个顶部的设计遵循了“大气至简”的中心思想,用灯光布局承担氛围渲染的作用。主灯选择造型出挑的线性灯,也是最近十分流行的款式,作为空间活跃的点缀。同时在除了靠阳台的一侧,其他三边吊顶都增加了1cm嵌入式发光灯条,强化客厅采光的同时增加灯光层次和氛围的变化。电视墙地台离地3cm做内凹收口,没有完全落地,一则避免硬直线条的呆板感,二来为设计格调一致的居室带来一些细微层次感的变化。整个客厅呈现出一致、极简的美,也不乏打破呆板的细节变化。
考虑到住宅的采光条件不错,所以主色调最终选择了灰咖色。客厅阳台内扩后安装落地窗,灰咖在自然光的烘托下,房屋显得既明亮通透、又有高级质感。整个顶部的设计遵循了“大气至简”的中心思想,用灯光布局承担氛围渲染的作用。主灯选择造型出挑的线性灯,也是最近十分流行的款式,作为空间活跃的点缀。同时在除了靠阳台的一侧,其他三边吊顶都增加了1cm嵌入式发光灯条,强化客厅采光的同时增加灯光层次和氛围的变化。电视墙地台离地3cm做内凹收口,没有完全落地,一则避免硬直线条的呆板感,二来为设计格调一致的居室带来一些细微层次感的变化。整个客厅呈现出一致、极简的美,也不乏打破呆板的细节变化。
考虑到住宅的采光条件不错,所以主色调最终选择了灰咖色。客厅阳台内扩后安装落地窗,灰咖在自然光的烘托下,房屋显得既明亮通透、又有高级质感。整个顶部的设计遵循了“大气至简”的中心思想,用灯光布局承担氛围渲染的作用。主灯选择造型出挑的线性灯,也是最近十分流行的款式,作为空间活跃的点缀。同时在除了靠阳台的一侧,其他三边吊顶都增加了1cm嵌入式发光灯条,强化客厅采光的同时增加灯光层次和氛围的变化。电视墙地台离地3cm做内凹收口,没有完全落地,一则避免硬直线条的呆板感,二来为设计格调一致的居室带来一些细微层次感的变化。整个客厅呈现出一致、极简的美,也不乏打破呆板的细节变化。
考虑到住宅的采光条件不错,所以主色调最终选择了灰咖色。客厅阳台内扩后安装落地窗,灰咖在自然光的烘托下,房屋显得既明亮通透、又有高级质感。整个顶部的设计遵循了“大气至简”的中心思想,用灯光布局承担氛围渲染的作用。主灯选择造型出挑的线性灯,也是最近十分流行的款式,作为空间活跃的点缀。同时在除了靠阳台的一侧,其他三边吊顶都增加了1cm嵌入式发光灯条,强化客厅采光的同时增加灯光层次和氛围的变化。电视墙地台离地3cm做内凹收口,没有完全落地,一则避免硬直线条的呆板感,二来为设计格调一致的居室带来一些细微层次感的变化。整个客厅呈现出一致、极简的美,也不乏打破呆板的细节变化。
对于餐厅的打造,我们打破传统意义上“餐厅”的概念,而是将餐桌融入到内扩阳台的位置,一方面可以兼利用此处光线、视野俱佳的优势,同时腾出餐厅的面积,让客厅空间更宽敞、不显得拥挤。餐厅顶部的主过梁较矮,层高本就不高的情况下,室内更显压抑。因此,在过梁的衔接部分,我们采用了立面弧形吊顶,以此弱化梁深问题。
对于餐厅的打造,我们打破传统意义上“餐厅”的概念,而是将餐桌融入到内扩阳台的位置,一方面可以兼利用此处光线、视野俱佳的优势,同时腾出餐厅的面积,让客厅空间更宽敞、不显得拥挤。餐厅顶部的主过梁较矮,层高本就不高的情况下,室内更显压抑。因此,在过梁的衔接部分,我们采用了立面弧形吊顶,以此弱化梁深问题。
对于餐厅的打造,我们打破传统意义上“餐厅”的概念,而是将餐桌融入到内扩阳台的位置,一方面可以兼利用此处光线、视野俱佳的优势,同时腾出餐厅的面积,让客厅空间更宽敞、不显得拥挤。餐厅顶部的主过梁较矮,层高本就不高的情况下,室内更显压抑。因此,在过梁的衔接部分,我们采用了立面弧形吊顶,以此弱化梁深问题。
对于餐厅的打造,我们打破传统意义上“餐厅”的概念,而是将餐桌融入到内扩阳台的位置,一方面可以兼利用此处光线、视野俱佳的优势,同时腾出餐厅的面积,让客厅空间更宽敞、不显得拥挤。餐厅顶部的主过梁较矮,层高本就不高的情况下,室内更显压抑。因此,在过梁的衔接部分,我们采用了立面弧形吊顶,以此弱化梁深问题。
对于餐厅的打造,我们打破传统意义上“餐厅”的概念,而是将餐桌融入到内扩阳台的位置,一方面可以兼利用此处光线、视野俱佳的优势,同时腾出餐厅的面积,让客厅空间更宽敞、不显得拥挤。餐厅顶部的主过梁较矮,层高本就不高的情况下,室内更显压抑。因此,在过梁的衔接部分,我们采用了立面弧形吊顶,以此弱化梁深问题。
对于餐厅的打造,我们打破传统意义上“餐厅”的概念,而是将餐桌融入到内扩阳台的位置,一方面可以兼利用此处光线、视野俱佳的优势,同时腾出餐厅的面积,让客厅空间更宽敞、不显得拥挤。餐厅顶部的主过梁较矮,层高本就不高的情况下,室内更显压抑。因此,在过梁的衔接部分,我们采用了立面弧形吊顶,以此弱化梁深问题。
厨房吊柜与地柜之间,我们没有使用常规的瓷砖,而是采用整块天然石材,石材的花纹更华贵,呈现的气质比瓷砖更大气。
厨房吊柜与地柜之间,我们没有使用常规的瓷砖,而是采用整块天然石材,石材的花纹更华贵,呈现的气质比瓷砖更大气。
不同于其他常规的材质,主卧床头的背景墙我们采用了丝光质感艺术漆,经过设计师与施工方的反复几版修改,最终达到了似羽毛涂画般的纹路,配合外凸的悬浮造型和内嵌灯带,最终呈现出大气高级的效果。主卧本身自带独立衣帽间,因此没有单独规划衣柜,留足充足的空间,依然以中性色的色调为主,营造一致的设计效果。
不同于其他常规的材质,主卧床头的背景墙我们采用了丝光质感艺术漆,经过设计师与施工方的反复几版修改,最终达到了似羽毛涂画般的纹路,配合外凸的悬浮造型和内嵌灯带,最终呈现出大气高级的效果。主卧本身自带独立衣帽间,因此没有单独规划衣柜,留足充足的空间,依然以中性色的色调为主,营造一致的设计效果。
不同于其他常规的材质,主卧床头的背景墙我们采用了丝光质感艺术漆,经过设计师与施工方的反复几版修改,最终达到了似羽毛涂画般的纹路,配合外凸的悬浮造型和内嵌灯带,最终呈现出大气高级的效果。主卧本身自带独立衣帽间,因此没有单独规划衣柜,留足充足的空间,依然以中性色的色调为主,营造一致的设计效果。
不同于其他常规的材质,主卧床头的背景墙我们采用了丝光质感艺术漆,经过设计师与施工方的反复几版修改,最终达到了似羽毛涂画般的纹路,配合外凸的悬浮造型和内嵌灯带,最终呈现出大气高级的效果。主卧本身自带独立衣帽间,因此没有单独规划衣柜,留足充足的空间,依然以中性色的色调为主,营造一致的设计效果。
次卧作为儿童房,业主的要求是有格调、有质感、不复杂。因此设计师采用了两种饱和度的海蓝,作为空间的基调显得更静谧简单。
次卧作为儿童房,业主的要求是有格调、有质感、不复杂。因此设计师采用了两种饱和度的海蓝,作为空间的基调显得更静谧简单。
次卧作为儿童房,业主的要求是有格调、有质感、不复杂。因此设计师采用了两种饱和度的海蓝,作为空间的基调显得更静谧简单。
作为客房,则打造得更简约雅致。通体的墙面灰色乳胶漆,让整个客房空间简单,同时也不乏质感,别致的挂画让略显单薄的墙面不单调。
作为客房,则打造得更简约雅致。通体的墙面灰色乳胶漆,让整个客房空间简单,同时也不乏质感,别致的挂画让略显单薄的墙面不单调。
作为客房,则打造得更简约雅致。通体的墙面灰色乳胶漆,让整个客房空间简单,同时也不乏质感,别致的挂画让略显单薄的墙面不单调。
业主本身需求独立书房,自然对书房有较高的要求,而中性色则是映衬书房大气感的利器。在家具、软装的搭配上,我们采用了线条更利落的款式,让书房更具有内涵质感。
业主本身需求独立书房,自然对书房有较高的要求,而中性色则是映衬书房大气感的利器。在家具、软装的搭配上,我们采用了线条更利落的款式,让书房更具有内涵质感。
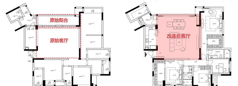
客厅阳台内扩
儿童房卫生间改衣帽间
生活阳台小优化
客服
消息
收藏
下载
最近



































