查看完整案例


收藏

下载
结合业主的偏好,我们为他的家选择了以棕咖+暖橘的色彩搭配。棕咖为底,既有冷色调的气质,却比黑白灰多了一份温和;暖橘色为缀,既增加空间的吸睛点,却不至于太过跳脱和突兀。这样的搭配,结合后期灯光的衬托,让客厅显得摩登十足。
结合业主的偏好,我们为他的家选择了以棕咖+暖橘的色彩搭配。棕咖为底,既有冷色调的气质,却比黑白灰多了一份温和;暖橘色为缀,既增加空间的吸睛点,却不至于太过跳脱和突兀。这样的搭配,结合后期灯光的衬托,让客厅显得摩登十足。
结合业主的偏好,我们为他的家选择了以棕咖+暖橘的色彩搭配。棕咖为底,既有冷色调的气质,却比黑白灰多了一份温和;暖橘色为缀,既增加空间的吸睛点,却不至于太过跳脱和突兀。这样的搭配,结合后期灯光的衬托,让客厅显得摩登十足。
结合业主的偏好,我们为他的家选择了以棕咖+暖橘的色彩搭配。棕咖为底,既有冷色调的气质,却比黑白灰多了一份温和;暖橘色为缀,既增加空间的吸睛点,却不至于太过跳脱和突兀。这样的搭配,结合后期灯光的衬托,让客厅显得摩登十足。
结合业主的偏好,我们为他的家选择了以棕咖+暖橘的色彩搭配。棕咖为底,既有冷色调的气质,却比黑白灰多了一份温和;暖橘色为缀,既增加空间的吸睛点,却不至于太过跳脱和突兀。这样的搭配,结合后期灯光的衬托,让客厅显得摩登十足。
餐厅区域没有选择成品的桌椅,而是用岩板定制了一个整体的餐桌。搭配黑色硬木软包餐凳,满足母子日常饮食所需。定制柜体内的灯光布置,瞬间提升了空间的精致度。通顶的护墙板与客厅区域形成统一,顶面与墙面设置线性灯打破面的界限,使得整个餐厅区域虽然简单却不失大气。
餐厅区域没有选择成品的桌椅,而是用岩板定制了一个整体的餐桌。搭配黑色硬木软包餐凳,满足母子日常饮食所需。定制柜体内的灯光布置,瞬间提升了空间的精致度。通顶的护墙板与客厅区域形成统一,顶面与墙面设置线性灯打破面的界限,使得整个餐厅区域虽然简单却不失大气。
餐厅区域没有选择成品的桌椅,而是用岩板定制了一个整体的餐桌。搭配黑色硬木软包餐凳,满足母子日常饮食所需。定制柜体内的灯光布置,瞬间提升了空间的精致度。通顶的护墙板与客厅区域形成统一,顶面与墙面设置线性灯打破面的界限,使得整个餐厅区域虽然简单却不失大气。
作为整个户型改造的“点睛之笔”,厨房空间经过扩张之后,使用起来更加舒适。L型操作台宽敞,容纳多人同时操作也不会拥挤。冰箱、洗碗机、蒸箱烤箱等设备通通移到设备区,我们还为业主设计了一个零食柜,平时储放一些牛奶呀,干粮啊都绰绰有余。
作为整个户型改造的“点睛之笔”,厨房空间经过扩张之后,使用起来更加舒适。L型操作台宽敞,容纳多人同时操作也不会拥挤。冰箱、洗碗机、蒸箱烤箱等设备通通移到设备区,我们还为业主设计了一个零食柜,平时储放一些牛奶呀,干粮啊都绰绰有余。
主卧选择了统一的棕咖色调,整体布置透露出成熟内敛的味道。射灯增加氛围,营造出舒适的睡眠空间。
主卧选择了统一的棕咖色调,整体布置透露出成熟内敛的味道。射灯增加氛围,营造出舒适的睡眠空间。
次卧的装饰则比较明亮质朴,不同于其他空间采用的暖色调射灯,而是选择了更亮的白炽灯,满足老人的需求和喜好。整个房间也没有安排繁杂的装饰,显得干干净净一丝不苟。
多功能房设置榻榻米床节省空间,柜体增加收纳,书桌满足日常办公学习需求,一举多得。
多功能房设置榻榻米床节省空间,柜体增加收纳,书桌满足日常办公学习需求,一举多得。
多功能房设置榻榻米床节省空间,柜体增加收纳,书桌满足日常办公学习需求,一举多得。
卫生间做了一个干湿分离,地砖和瓷砖选择了同色系,通体铺装让整个空间的延展度和统一性都得到了很好地呈现。
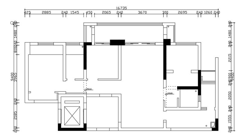
原始结构图
平面规划图
客服
消息
收藏
下载
最近





















