查看完整案例


收藏

下载
硬装方面,设计师一方面选择用边吊设计满足中央空调,另一方面增加“井字型”造型突出美式风格的精致,整体高低有度的顶部效果带来更强的视觉冲击感,大气之余也不会有空间的压迫感。同时色彩搭配选择浅蜂蜜色+复古绿,既展现出美式风格独有的韵味,又不失温馨感。
硬装方面,设计师一方面选择用边吊设计满足中央空调,另一方面增加“井字型”造型突出美式风格的精致,整体高低有度的顶部效果带来更强的视觉冲击感,大气之余也不会有空间的压迫感。同时色彩搭配选择浅蜂蜜色+复古绿,既展现出美式风格独有的韵味,又不失温馨感。
餐厅区域的顶部造型呈栅栏设计,可以让人有视觉中心的同时,忽略层高不足带来的视觉压抑感,是设计师给的小惊喜。
餐厅区域的顶部造型呈栅栏设计,可以让人有视觉中心的同时,忽略层高不足带来的视觉压抑感,是设计师给的小惊喜。
主卧在拥有独立衣帽间后,卧室的休息区域仅仅只需要满足休息和颜值两个维度,因此家具陈设简单清爽,还选用了业主最爱的复古绿系家具,搭配浅色墙布, 柔和而有质感。
主卧在拥有独立衣帽间后,卧室的休息区域仅仅只需要满足休息和颜值两个维度,因此家具陈设简单清爽,还选用了业主最爱的复古绿系家具,搭配浅色墙布, 柔和而有质感。
嫩绿色+普罗旺斯紫,整体颜色偏浪漫小清新,轻松而自在。
嫩绿色+普罗旺斯紫,整体颜色偏浪漫小清新,轻松而自在。
榻榻米设计满足娱乐、阅读与休息的功能。
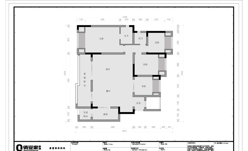
原始平面图
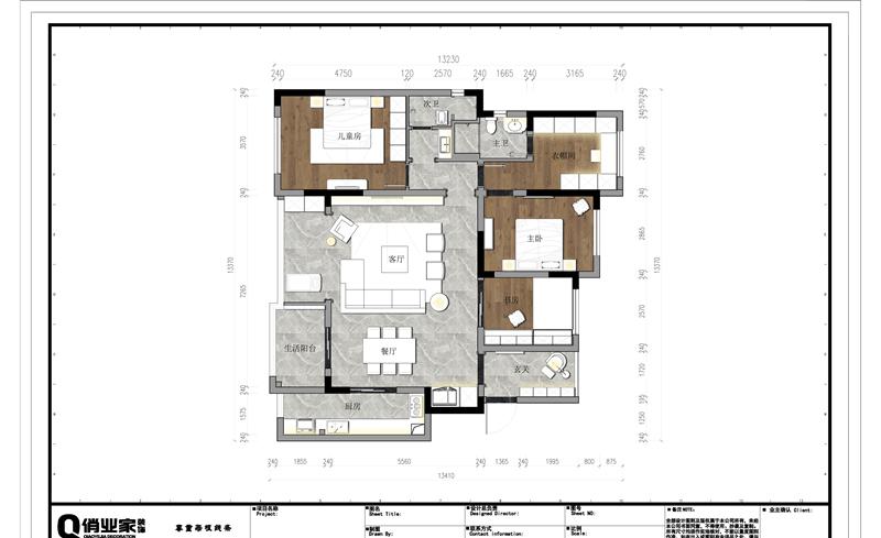
平面规划图
客服
消息
收藏
下载
最近













