查看完整案例


收藏

下载
大横厅空间以边吊设计进行顶面装饰,让大横厅的品质感得到凸显,同时,以灰色为主色调,细节融入Tiffany绿,高级耐看。
大横厅空间以边吊设计进行顶面装饰,让大横厅的品质感得到凸显,同时,以灰色为主色调,细节融入Tiffany绿,高级耐看。
大理石餐桌配以孔雀绿绒的座椅,为整个空间增添一份时尚的独特韵味,简洁素雅中有着细腻的时尚笔触,杯盘交错也是生动温馨。
大理石餐桌配以孔雀绿绒的座椅,为整个空间增添一份时尚的独特韵味,简洁素雅中有着细腻的时尚笔触,杯盘交错也是生动温馨。
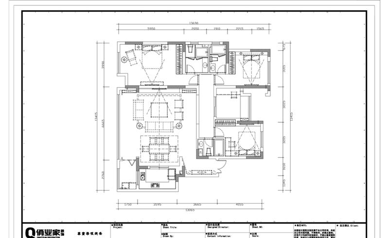
主卧在布局上做了略微改动:将原始卫生间入口从卧室侧面改到了进门位置,这样一来为主卧的储物空间提供了更大的位置,提高空间利用率。
考虑到是儿童的卧室空间,以浅绿色墙面营造温馨舒适的休息氛围。
风格打造上,延用了公区的色调搭配,让整屋效果更加统一,高级感更加鲜明。
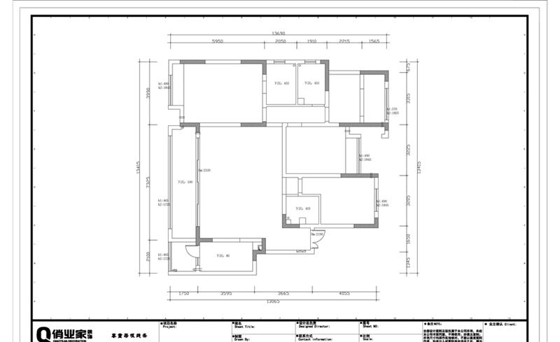
原始户型图
平面布置图
客服
消息
收藏
下载
最近











