查看完整案例


收藏

下载
客厅空间的装修设计以简约的造型为基础,添加中式元素,使客厅空间色彩清爽,通透宽敞,大而不空,有品味却又不显压抑。
餐厅的装修设计中,中式元素与现代材质的巧妙兼柔,相得益彰。楼梯侧面的扶栏,是用几何线条组成的冰裂纹,具有较强的层次感,让原本简约的空间多了几分生气。
双人房,由于是儿童房,所以设计师在墙布的选择上有些别样的色彩,多温馨,多柔和。
移步就变景,局部有细节,心中之人就有山水。
卧室装修的色彩偏向古典风格的华贵,通过删繁存精的软装搭配手段,流畅地表达出中式文化的特点,使卧室空间在精致效果中渗透了几许中式简约气息。
卧室装修的色彩偏向古典风格的华贵,通过删繁存精的软装搭配手段,流畅地表达出中式文化的特点,使卧室空间在精致效果中渗透了几许中式简约气息。
对于注重细节及简约的新中式装修风格来说,中式与现代的碰撞才是最迷人的。
对于注重细节及简约的新中式装修风格来说,中式与现代的碰撞才是最迷人的。
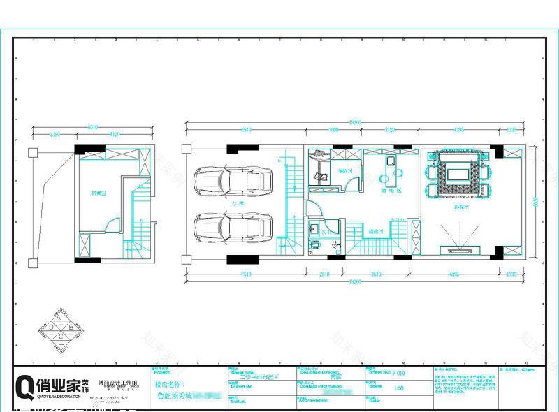
平面规划图
平面规划图
平面规划图
客服
消息
收藏
下载
最近













