查看完整案例


收藏

下载
Jumps of scale to understand the place
The site becomes an important urban platform, an exchange node inserted into the system of great Parisian relational spaces. It holds a role of transition between different scales, them being territorial, urban, environmental, social, cultural, and infrastructure standpoints. The ZAC Clichy-Batignolles and the Martin Luther King Park are based in a large relational space, an interface of connection lines and urban relationships: powerlines, flowlines, lines of connection and interaction. Echoing the adjacent buildings, the project inserts itself in a coherent and consistent elegance.
An island crossing
One of the fundamental characteristics of the project is the creation of an almost complete opening in the block, perpendicular to the Martin Luther King Park. This opening acts as a true extension of the park, prolonging it to the heart of the block and bringing it to the street and beyond. Thus, nothing obstructs the view from the park to the lot and vice versa. The school group and other residences also benefit from the relatively clear views over the park. Furthermore, greater transparency has been sought at the ground level of the project, completing the idea of a maximal link from the park to the street.
Search for compactness and views
This opening constitutes as well, and more importantly, the integration of an environmental strategy. This provision implicates creating thicker buildings, the buildings thus created will be more dense and compact, significantly reducing energy loss. Moreover, due to this configuration no accommodation will be mono-oriented street side. They will therefore benefit from openings overlooking the park and sunny climate.
Moving masses
The two buildings comprising the residences are broken down into volumes of different heights, the tallest building’s height being 50 meters. These new created blocks are superimposed and offset from each other. The objective is to create dynamic movement over static volumetries, more rhythm than fixed objects. These movements and rhythms associated with the already rich architecture of the immediate context allow to create new “sounds of the city”. Furthermore, these offsets allow for more outdoor space. The architectural strategy of this project is the result of a thorough reflection to avoid an IGH (high-rise building) classification of the building.
▼总平面,Master Plan
▼总平面,Site Plan
▼首层平面图,Ground Floor Plan
▼一层平面图,1st Floor Plan
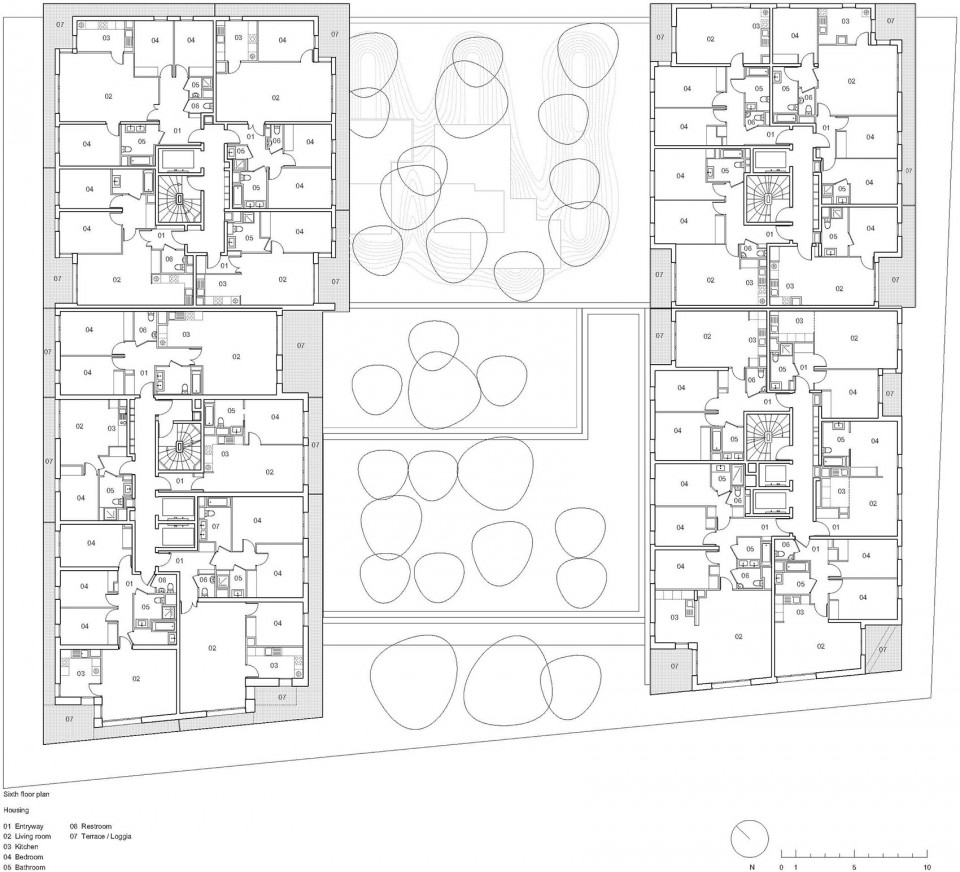
▼六层平面图,Sixth Floor Plan
▼剖面图,Section
▼立面图,Elevation
©SergioGrazia
©AvenierCornejo
More
:
Avenier Cornejo Architectes
and
Gausa Raveau actarquitectura
,更多关于:
客服
消息
收藏
下载
最近



























