查看完整案例


收藏

下载
来自
Bernard Dubois
Appreciation towards
Bernard Dubois
for providing the following description:
Nicolas Andreas Taralis
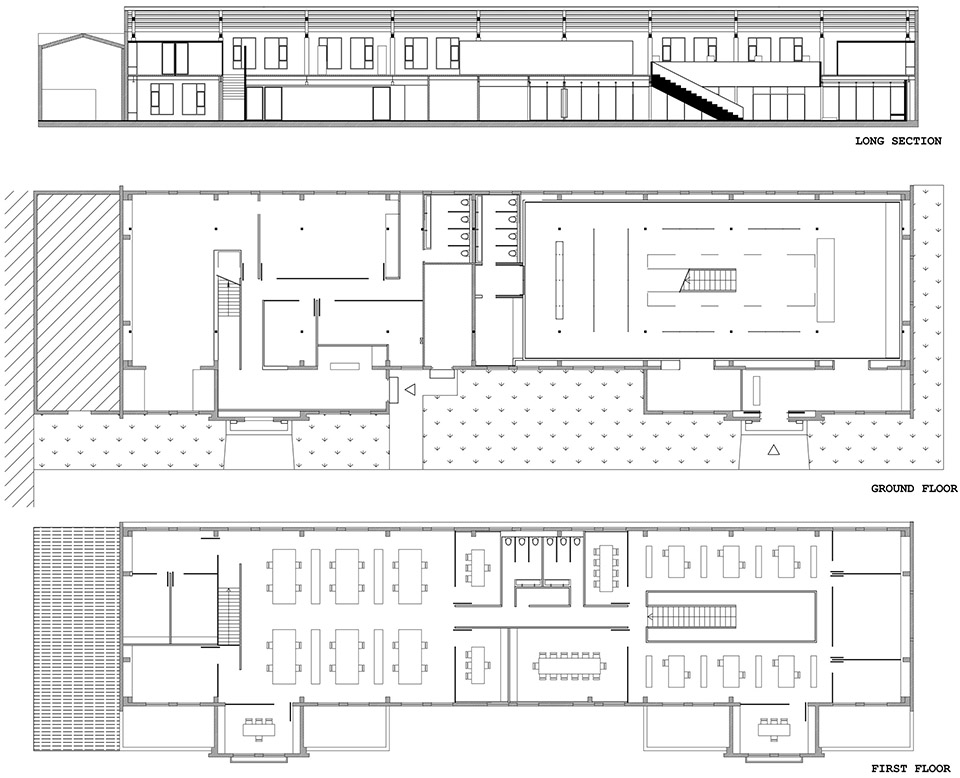
品牌中国新总部位于上海一个老工业园区里,整个办公室与展区的设计由威尼斯建筑双年展比利时联合策展人,也是建筑师的
Bernard Dubois
一手打造。整个室内环境仿佛与外面的世界隔绝,整整1500平方米只剩下安静与平静,没有任何喧嚣与匆忙的痕迹。
Situated in an old industrial complex, the offices are the new headquarters of the brand
Nicolas Andreas Taralis
in China.
Designed with the architect
Bernard Dubois
, co-curator of the Belgian Pavilion of the 14th Venice Architecture Biennale, the space is conceived of as a hermetic world housed within the shell of the existing building. Situated over 2 floors and 1500m2, the calm and quiet interior transports the visitor into a universe far removed from the daily bustle and hurry of the building’s environs.
这是一个在材料使用上极为克制的室内空间。最少量的使用材料,创造出一个清晰的整体空间。陈列室,办公区,工作室,管理区这四大区域独立并关联。陈列展区是整个空间的核心,这里就像是一个科技感很强的封闭盒子,从天花上照射下的冷光与灰色的基调协作,仿佛外宇宙的传输站,在这种单纯中性的整体空间下,客人们更容易将精力放在品牌展示物上。墙面上的镜子将空间放大无穷倍,结构柱映射其中就如同古代神殿或者希腊神庙的壮观柱列。一段楼梯,是通往上方的“唯一”出路。当把一层的灯关闭,从楼梯井上射入的天光也足够将空间照亮。
Different layers of space and interaction with the existent structure and outside world reveal themselves over the two levels in a mixture of contrasts and harmonies.
Purity, symmetry and centralization are key elements that guided the composition of the project. Materials are kept to a minimum in order to create a monumental whole and a clear design vocabulary — repetition becomes a central device. Shapes are rectilinear, unconditional and markedly horizontal.
The building, divided into 4 distinct zones (Showroom, Studio, Atelier and Administration), functions independently from one zone to another however all are inter-linked through an annular circulation showing in cross-section.
At the heart of the design is the showroom, conceived as a closed box within the existing structure, which immediately transports the visitor into a science-fiction-like world under the glow of an intense light-box ceiling. The sealed and immersive universe commands attention and invites the visitor to discover the brand. The space is markedly horizontal and rectangular; a geometry that is further accentuated through the low ceiling and mirrors placed either side of two long walls and that repeat the room into infinity. All elements express the central composition of the space; a series of columns hint of a cloister or Greek temple in antiquity. Hanging rails in chrome metal run the final perimeter of the room whilst a grand central staircase rises to the second floor studio, the only connection from the showroom to the outside world and existing building. When the light-box ceiling is off, natural light floods from above through the central stairwell.
与楼下封闭的外太空式展厅相比,楼上的办公和管理空间则显得开放得多,自然光充盈其中。工作台与地面的材料一致,由灰色混凝土打造,精致的工艺使得桌面非常光滑。每一排桌子之间用两米高的黑色金属柜隔开。工作室的尽头还有另外一段楼梯通往一层的制作工作室(一层制作工作室与展区不相通)。
整个空间的色彩是不同灰度的灰色,材料上以混凝土为主,选择了涂成了黑色的石材,金属,木材还有混凝土点缀其中。玻璃和镜面为空间带来光线以及透明感。
The sealed and immersive universe of the showroom contrasts markedly with the openness and natural light that radiates onto the upstairs administration and design studios. From the landing of the stairs a narrow passageway between two internal concrete bungalow structures lead into the design offices. 3 rows of monumental tables and storage monoliths are placed centrally in the room behind and beyond that stands a 2 story high metal wall that is the nerve center of the collections being designed. A private staircase behind this wall descends directly into the ateliers where the collections are manufactured.
Materials include cast concrete for the walls and the internal “bungalows”. Poured irregular concrete covers the flooring while a smoother concrete is used for the monumental tables in the offices. Black satin monoliths, in either metal or wood, punctuate the space adding contrast, balance and rhythm to the predominantly grey colour scheme. Chrome framed mirrors and an abundance of glass propagate light and transparency. Finally, pigment-dyed black concrete is used for a monolith in the showroom to display accessories, or in reception counters in the two public entrances.
Photos: Maxime Delvaux
MORE:
Bernard Dubois
,更多请至:
客服
消息
收藏
下载
最近
















