查看完整案例


收藏

下载
▼功能分区轴测图,Functional Axonometric
▼轴测图,Axonometric
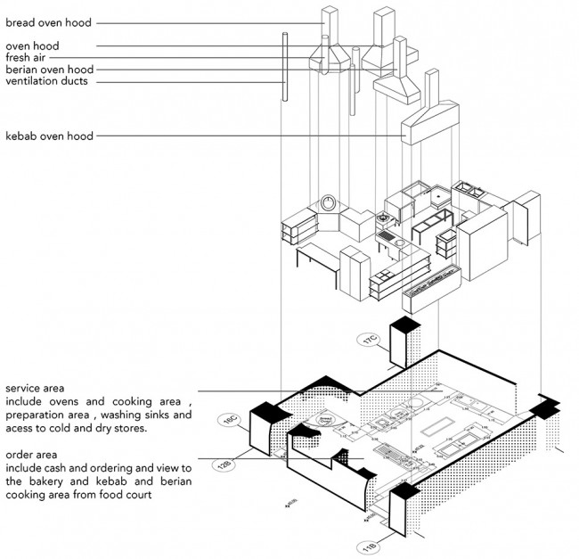
▼分解轴测图,Exploded Axonometric
▼场景剖透图,Perspective Section
▼平面图,Floor Plan
▼剖面图,Sections
Data Sheet
Lead Architects: Elham Geramizadeh & Ehsan Hosseini
Project location: Isfahan , iran
Completion Year: 2016
Gross Built Area : 60 m²
Photo credits: Farshid Nasrabadi
Design associate :Ahmadreza Tavakkoli , Alaleh Mohseni , Alireza zamani
Client : omid akbari
Contractor : Abbas jabiri
客服
消息
收藏
下载
最近





















