查看完整案例


收藏

下载
店铺位于个性张扬,五彩斑斓的苏州淮海街。本店外立面采用烧杉板与不锈钢金属板、以低调内敛地方式区别于街道其他商铺。店面入口隐蔽地设置在外立面背后,经过弯折的,色调暗淡的小径入店,将店铺内环境与喧闹的户外街道缓慢地划分。
伊都竹彩的室内空间充分反映“都”与”彩”两个元素,消除在常规日料店中频繁出现的仿日式装饰。
都:利用原本建筑框架的高净空,在室内制作若干有高差的吊顶,通过不同净高高差将大环境分割成若干空间,仿佛一座小都市。公共走道区处于高净高处,反映小都市的户外,在此处设置环形动线的人造景。就餐区在低净高处,反映小都市内的一处处房屋。
彩:在日本的和服正装与礼物包装会用彩色的”带“作为点缀。本店的内部空间中,大面积运用暗淡的黑色调,在营造别于日常生活的非日常体验的同时,通过”带“状的彩色点缀强调空间的独特性。”带”前设置就地取材的太湖石、枯花木以及定制灯具,成为”带”中点缀,增添景色的层次。
包厢内、餐吧台通过明暗色调对比,包厢内的浅色榉木桌面板与餐吧柜台的光面金属板仿佛漂浮在空中,暗淡的空间中突显桌面的菜品与对面人物的肤色面孔,产生戏剧般的就餐体验。
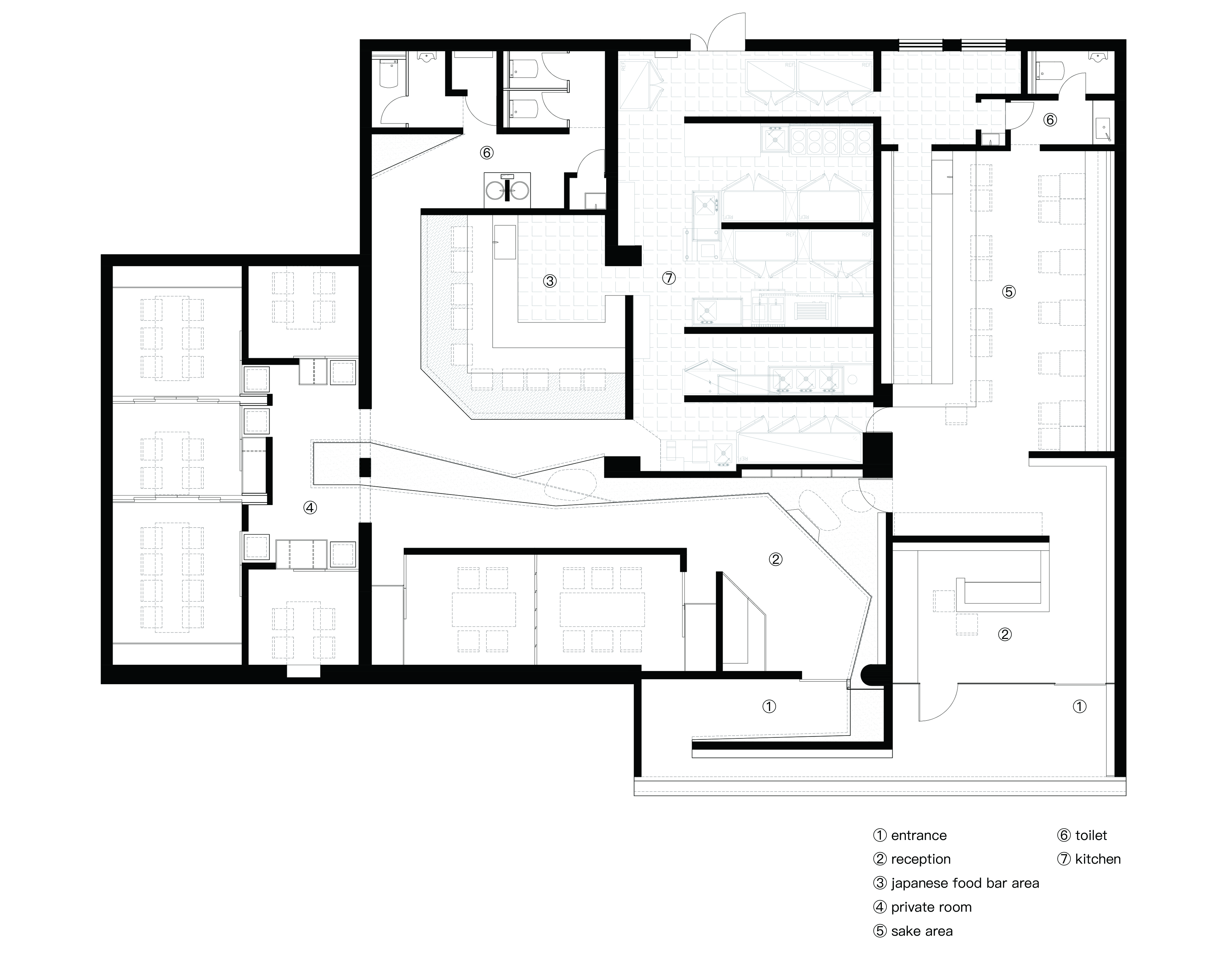
平面图
轴测图
project info:
project name: 伊都竹彩日式料理店空间设计
architect: 秋天, 张雪薇
web: https://www.slothwork.net
program: 日式料理餐厅
design team: 树獭建筑(Slothwork Architects)
size: 280m²
location: 苏州
status: 已建成
year: 2022
photography: Eiichi Kano
客服
消息
收藏
下载
最近















