查看完整案例


收藏

下载
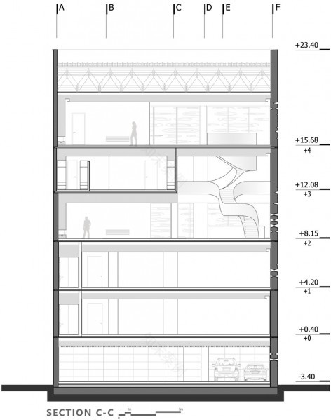
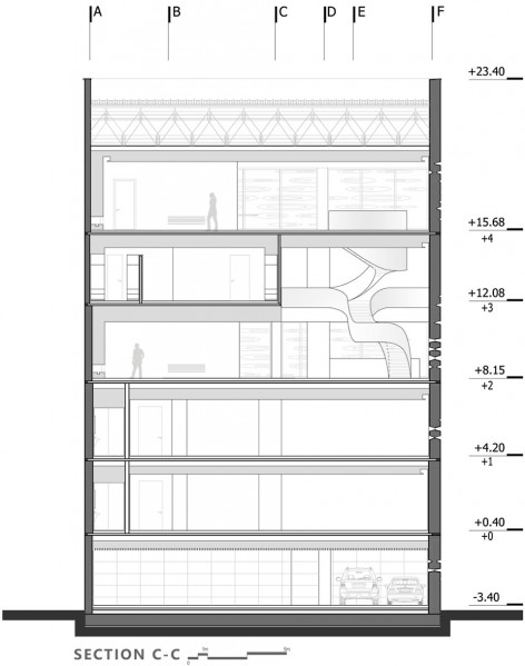
▼ 墙体设计,Detail design of the concrete wall
Location: Zaaferanieh , Tehran, Iran
Architects: RYRA Studio – Abbas Riahi Fard , Farinaz Razavi Nikoo
Client: Bardia Ahramian
Client liaison: Ali Akbarzadeh, Yousef Mehrnami
Design associates : Yaser Karimian ,Navid Nasrollahzadeh, ,Hamidreza Gozarian, Mohammad Gholipoor, Shahrzad poohfam , Parisa poorshahrab, Ebrahim Roostaee
Detail design team: Mahmoud Abbasi, Yaser Karimian , Navid Nasrollahzadeh, Hamed Tabesh, Reyhaneh Rezaei , Mina Vakili, Atefeh Lotfollahi
Structural consultant: Kamran Edraki
Electrical consultant: Reza Tavakoli
Mechanical consultant: Mell tech Co
Construction: RYRA Design & construction studio (Ebrahim Hosseinpoor, Amir Nilforoushan)
Supervision: RYRA Design & construction studio (Yaser Karimian, Abbas Riahi Fard , Farinaz Razavi Nikoo)
Built Area: 3580sqm
Year: 2016
Photographs:
Parham Taghioff
,
Ali Daghigh
, Mehdi Kolahi
MORE:
RYRA Studio
,更多关于他们:
.
客服
消息
收藏
下载
最近



































