查看完整案例


收藏

下载
抓人的第一印象,传达的信息明确。设计时采用木质边框勾勒,黑色调皮的背发光字体彰显独特的风格。现有门口为整片玻璃,略显单调,设计时在一侧做木质装饰效果,同时也有遮挡了内部家具的靠背,让整体内部空间若隐若现,更有探索的意味。
为体现音乐表达,进门端景墙采用大提琴造型的门洞设计,成为整个空间的亮点之一,突显了店面的主题,也意味着从此门进入音乐的殿堂。
室内环境注重体验感,休息区采用整体的沙发设计,为家长等待时营造舒适的环境。原生态树枝隔断设计,贴近自然。
走廊区
授课群体为3-7岁的儿童,考虑孩子对自然的认知,设计时也多以圆弧的造型体现,也能防止儿童磕碰。
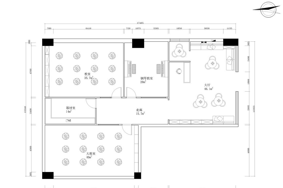
(平面布置图)
商业空间设计中,每一个元素的运用,不仅是视觉化的呈现,背后都有其营销目的。但是好的室内空间,是所有营销效应的“双眼”,透过这双眼睛,可以向顾客讲述一个故事。这个故事的每一个细节,都有可能走进顾客的心里,牵动顾客的心弦。施工过程也是精益求精,完美还原效果图
如今,音乐教室已经正式开始上课,业主也采购了更多的装饰品,孩子们徜徉在音乐的世界中,欢乐无穷~
效果图
客服
消息
收藏
下载
最近






























