查看完整案例


收藏

下载
办公室设计在满足舒适与功能兼具的同时,也越来越趋于娱性和开放性,这一点能从各地的多家办公室中看出来。本案的总经理办公室采用甲方喜欢的中式和现代融合手法,颜值高,有格调
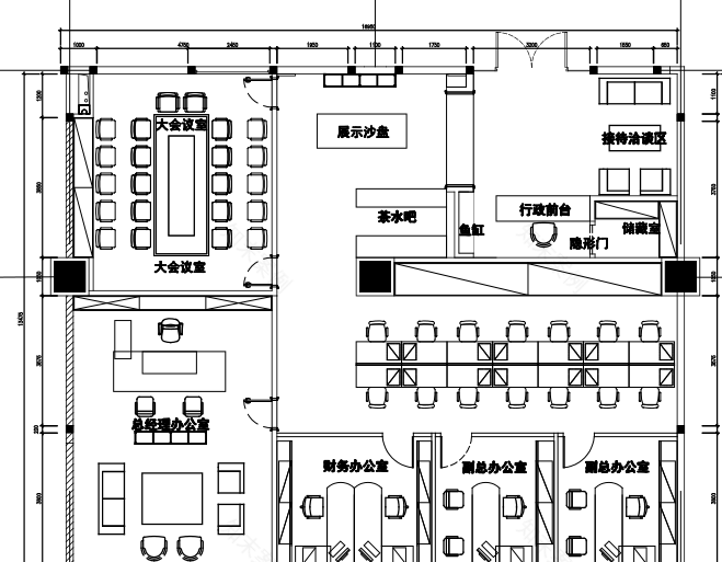
公司前台,疏朗大气的线条,大理石和木质的双向构成,无一不共同营造了工作严谨专业却不单调的氛围。
极简加长的大理石桌面,没有赘余装饰的前台环境,有限的空间因此反映出无限的阔度。
来到熟悉的办公区开始一天的工作。办公区也呈对称结构分布于公司的两侧。办公桌采用方通吊顶的挡板和装饰柜区域,即保证了隐私性又不显得古板。也极具功能性
“虽然辛苦,我还是会选择那种滚烫的人生。”
我们想传达的,无非是生活与工作的相互接纳,让工作也可以融于生活的滚烫起来。
我们习惯性的把工作看作是生活苦闷的来源,却忽略他是对抗生活现状的唯一武器。
如果说人生是苦海的容器,那么没有人的生活是容易的,滚烫的人生自始于沉寂。
会议室木质墙面与外部空间整体风格相呼应,金属质感的线条、软膜材质叠加存在,精致而赋予时尚感。
在办公区内同会议室统一整体风格,透明简洁,易于使用。
全透明玻璃设计在保证沟通的便捷、提供了足够的自然采光两方面都起了不可忽视的重要作用。
客服
消息
收藏
下载
最近











