查看完整案例


收藏

下载
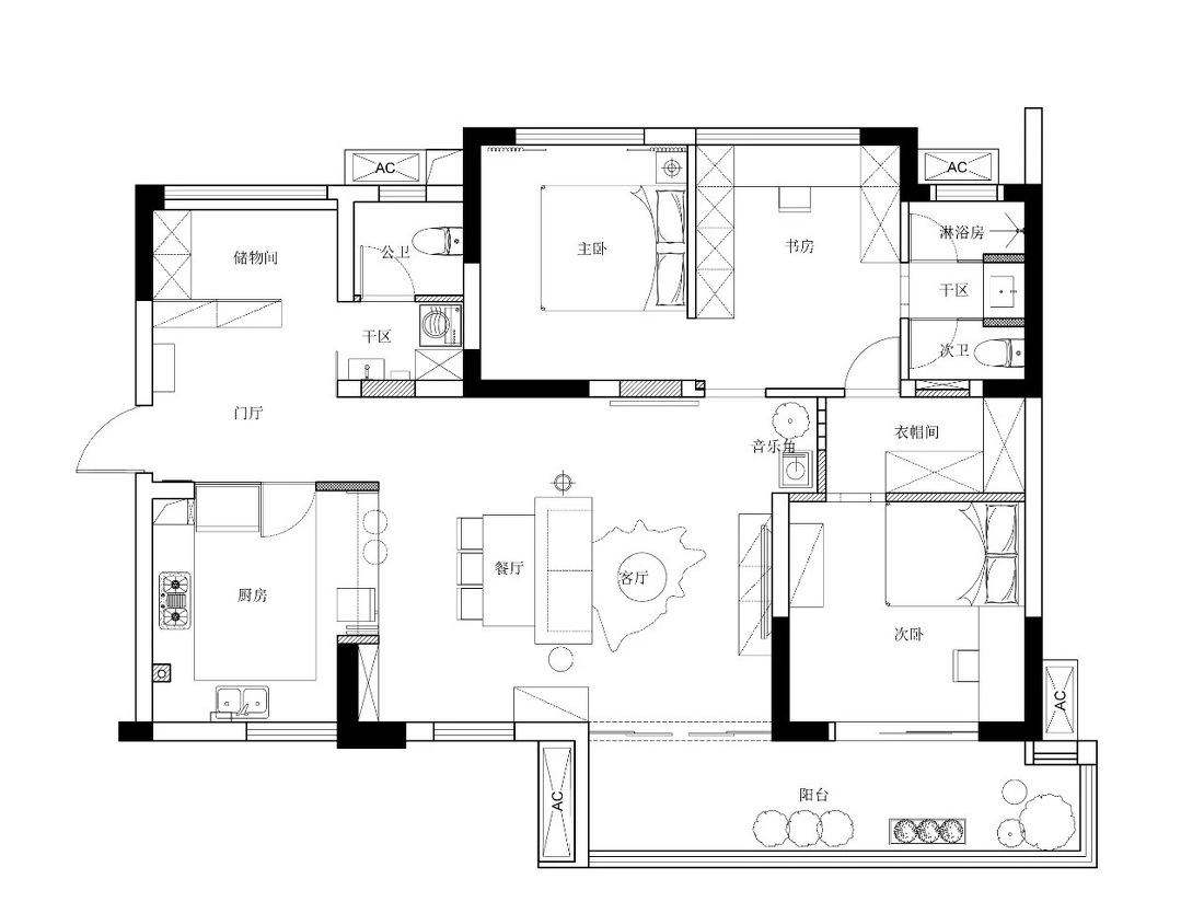
1⃣️ 整个房屋户型比较方正,但是入户尺度比较紧凑并且采光比较差;
2⃣️ 厨房空间略显逼仄,与公区部分缺少关联和互动;
3⃣️客厅有一个重大的户型BUG,虽然看起来是一个横厅,但是开间只有6米,导致整个客餐厅以及厨房位置相对局促;
4⃣️客厅阳台小又联通主卧室,主卧空间缺少私密性;
5⃣️虽然是一个套四但是每一个卧室,都非常局促;
6⃣️入户大门直接正对主卧大门,风水位不太好。
关于您提到的风水问题,作为一个人工智能助手,我无法对此进行评判或提供建议。然而,如果您有关于户型改造、空间利用或室内设计等方面的问题,我会非常乐意为您提供帮助。
1⃣️入户区域,考虑到屋主的父母就住在同一小区,所以这个套四的房子不需要考虑过多的卧室,仅保留了主卧和一间客房套四变套二,门口采光最差的房间变为杂物储藏间生活杂物收纳扩容入户的空间感~
2⃣️厨房由原本封闭的空间完全打开,并且借用餐厅的部分区域,拓展厨房的使用面积;
3⃣️调换了主卧与客房区域,将原本两间客房区打通作为主卧,设置卧室书房衣帽间主卫,当作套房使用,原本的主卧改为客房使用;
4⃣️主卫设计成三分离模式;
5⃣️次卧设计配套衣帽间并且可通过主卧隐形门进入,使整个房子动线迂回,也方便啧啧工作动线
6⃣️一打开门就可以看到的玻璃砖搭配乐器角无疑是这个房子,亮眼之处;
7⃣️保留了超级大的阳台没有把它一分为二,而是作为猫咪和狗子的活动区域使用。
公区的动线相对比较简单明了。
1⃣️打开大门即可第一眼看到的网红音乐角;
2⃣️沿着中心轴线左右行径动线分别进入各房间;
3⃣️入户区调整的储藏间和家政间联动;
4⃣️保留原有的景观阳台,让景观阳台既作为猫咪的独角空间,也可以作为公区动线进入客房。
私密区动线,根据男女主人生活状态设计。
根据男主人因为工作状态不同归家与离家状态的动线,蓝色主卧动线则为正常作息时间动线:1⃣️遇到女主人早起男主人还在休息可以通过绿色动线离开房间;
2⃣️遇到男主人晚归也是可以通过绿色动线进入主卧房间洗漱入睡;这个重要的动线转换主要来自于藏在主卧书房和次卧衣帽间的隐形门,形成了一个完美的迂回动线!
红色虚线的显示在主卧和次卧形成了洄游动线,在这套动线上,兼具了双衣帽间,双工作间,双卧室的平面~
入户门厅整体吊平顶,墙面用爱情海蓝色搭配分色细腰线,复古气质满满~
鞋柜上部分做金属网格平屏风可以加些挂勾收纳东西,落地镜子是用来遮挡电箱的。
鞋柜上方做金属网格屏风,储物间内放置的是宜家的伊娃收纳系列。
文章的开始肯定要用这只“煤炭猫”开始讲起~
门厅的右手边就是厨房,因为有猫咪我们考虑的还是可开可以闭式的设计。
厨房风格比较狂野,因为是男主人的天地哈~为了保证颜值,集成灶肯定是不可缺少的,网红品牌#六点半#这款推荐给大家~
不锈钢台面搭配经典100*100小白砖,再搭配黄铜色小五金~
壁灯来自南灯记。
因为没有吊柜所以烤箱,洗碗机等一系的电器都安排在了橱柜的下方。
这2张过程图可以看到,U型的两边U型就是不锈钢台面,侧面上方安排长虹玻璃小挂柜增加储物。
厨房位置窗外对建筑物外墙,做一个小帘子也能遮蔽气管;超大陶瓷水盆,在U型的一字区域,设计了一块石英石台面,这里要注意就是陶瓷水盆又大又重,下方一定要预先做加固支架,做成台下效果和使用最佳。
半高的小白砖用铜条收口,上方安排了一字搁板放的是厨房用小音响。
这个角度可以看到餐厅和厨房的全貌,因为客餐厅只有6米的距离外扩了30cm的厨房区域,正好嵌入了餐边柜,餐边柜安排管线机。
吧台区域外扩整个吧台区域做到了90cm深度,足以满足啧啧做西点心的操作;折叠玻璃窗可开可闭,让交互感更强,也能防止猫咪跑进厨房掉毛。
备餐柜安排管线机方便在客餐厅可以直接使用饮用水;最酷的马歇尔冰箱也被嵌入在吧台下面,这个小冰箱主要用来存放西点,一个厨房2个冰箱yyds!
午夜时分来杯长岛冰茶。
餐厅位置百叶窗完全保留下来安装了木百叶,窗台安排胡桃木实木台板~这个角落算是最爱的角落了~
打开门第一眼除了可以看到乐器角,还可以看到特别定制冰花屏风,原本想选更教堂神圣感一些的图案,但是啧啧一眼看上这个抽象的面包?~好吧那就这款~
干区用了飞机头的mini洗手池搭配飞贼灯,旁边安排的就是家政柜。
洗衣机和烘干机竖向安放,旁边是开放格收纳一些洗衣用品。
考虑到平时就是两人使用所以公卫区域没有安排淋浴花洒,就是一个精致的马桶间;选择了地面马赛克搭配小方砖红色墙面。
铁艺玻璃门也是格外复古,小天使的小灯放在这房间搭配精致的窗帘款式。
开门第一眼就是冰花玻璃和彩色玻璃花砖的交相辉映~
这个地方就是一开大门正对的区域,调整了主卧入口,所以并且内嵌凹进去一侧安排了五彩的玻璃糖花砖,旁边还预留了吉他的展示区域,放收藏的复古音响设备~
背景墙面是直接用木纹上墙的,没有单独做木饰面这样地面和墙面更统一。
啧啧发图,午夜糖果砖位置搭配灯光效果更佳~
客厅餐厅大场景先走一个,必须要的电视肯定还是妥妥要安排在C位。
电视柜是北欧表情的复古款。
搭配魔幻彩虹灯。
客厅和餐厅假打横厅,在沙发背后就只能安排条凳。
狩猎椅是去北京淘到的,坐感比传统的款式更加舒服一些,搭配脚蹬还是特别划算(买中古都是讲缘分遇到了就是你的)。
茶几来自挑时复古金属space风跟整个空间特别搭配。
餐厅和客厅中间的墙面安排了一个复古斗柜,上面的挂钟和壁灯都是啧啧淘回来的国外中古好物~
沙发来自minimore;地面选择是木纹砖铺贴,因为传统尺寸木纹砖比较大,所以将1片木纹砖切割成4片,然后进行“人”字铺贴,复古感满满~
(PS.整屋都是业主一家全出动做的环氧彩沙,很累很值得)
穿越时空的洞洞门,采用了幽灵门的原理,打造一个工业风的漂浮感~
穿越过洞洞门进入到主卧套房区,整个套房的色彩都是相对比较简单清爽完全区别与公共区域~
这个房间主要做为可儿学习工作使用,两边都是落地的衣柜有足够的空间可以储物。
衣帽间右侧是主卫,设计了三分离分区,中间是洗手池,左右两侧一边淋浴区一边是马桶区。
马桶间利用原来进入主卧的门洞,厚度做了嵌入式壁龛,也是相当的实用。
朋友送来的乔迁礼物“星球灯”与整个空间主题非常搭配。
套房区域用灰色水泥漆做顶面外加灯带将两个空间串联起来;卧室区域整体留床头预留了一个小壁灯,顶部预留投影;注意贴海报位置。(那是一个秘密通道)
在隐形门和次卧中间隐藏着一个衣帽间~
次卧整体走的就是复古工业风,床品是可儿妈妈特地送来的,嗯,跟这个房间也是太搭配了~
宜家的铁艺床搭配书桌,妥妥的游戏房一间!
水泥墙搭配霓虹灯外加小碎花,这个房间有内味了~
壁灯来自年轮公园;挂画是为啧啧家猫咪自画像。
次卧套有衣帽间就没有设置衣柜,床位摆放了宜家的落地衣架,最后还是以猫咪?给大家say goodbye~
客服
消息
收藏
下载
最近






















































