查看完整案例


收藏

下载
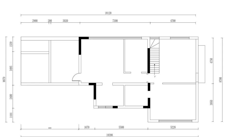
一层平面
一层平面分析:一层平面图原本开发商的布局没有太大的问题,客户的功能需求都能保证,在功能部分没有大动。
1⃣️唯一最大的弊端是门厅处它正对客厅,客户希望能够稍微有所遮挡,所以我将客厅的电视墙位置调整到门厅端景处;
2⃣️外阳台进行搭建后扩大客厅区域,整个客厅部分变得非常的开阔和流畅,特别是选用弧形沙发是点睛之笔;
3⃣️三个卧室区域,根据业主的使用情况规划了一个书房以及两个卧室,分别给哥哥和家中的老人使用;
4⃣️原本开发商设计的是可开可闭式的开放式厨房并且有设置吧台,整体问题不大就没有多做调整;
5⃣️客厅左侧的空间是开放商赠送的灰空间进行统一的搭建后设置成保姆间以及生活阳台。
一层动线图
从流线图上可以看到,黄色填涂区即硬装调整的核心区。
1⃣️它既能做为屏风遮挡入口视线;
2⃣️从左到右,将保姆房,客餐厅,厨房,卧室,书房区穿成一条线,每个功能分区散落在动线的左右两侧;
3⃣️在书房对面增加了收纳柜填补餐厅区域没有备餐柜的收纳大问题。
二层平面
二层平面分析:要保证一楼的书房功能,虽然原来的楼梯略狭窄,还是保留了原有的结构做材质上的美化。
1⃣️楼梯上来的空间做为多功能区域,设计了书桌书柜,电视游戏区,让更多的亲子的空间留在二楼小厅;右侧开门洞,设计隐形门进入右侧花园(开发商预留空间);
2⃣️小儿子的卧室在二楼,因为小儿子年纪稍小需要更多的照看,小儿子空间充裕所以进行了套房空间的考虑,门外的多功能区也是小儿子活动的主要空间;
3⃣️开发商对于主卧的布局没有问题,衣帽间区域,卧室区域以及主卫区域;主卧左侧的花园即一层保姆间的楼顶这边设计了更加私密的花园阳台。
二层动线图
二层的动线跟一层平面非常类似,如同珍珠项链一般串联起了两个卧室以及两边端头的花园露台区域。
搭建区域:从这张图可以看到一层和二层区域搭建区域以及二层的花园区。
进门的端景屏风造型,屏风位置特别选了原创手绘丝巾定制成挂画,后期也可以根据喜好随时更换~
这张可以看到屏风门厅和客厅的关系;门厅的整体屏风造型考虑到施工整体是在全屋定制厂家做好后进行现场安装的,整体造型设计考虑到电视机的位置,有虚也有实。
先来看客厅改造前和改造后的对比图~
在法式的风格基础上加入了现代风格的家具。点缀精致的法式边几,带有法式花鸟手绘真丝图案的单人扶手椅等等~虽然是现代款但处处都透露精致韵味,非常经典~
经典法式风格中加入中国传统青花瓷,营造出「东情西韵」的独特美感~
听完软装方案的讲解再来看看客厅的大场景~
宝石蓝色的沙发来自写意空间,沙发上的抱枕也是专门挑选带有法式真丝花鸟纹图案的,搭配印度手工打造的黄铜茶几简直韵味十足~
从客厅看向餐厅方向,单人花鸟纹样的扶手椅搭配artdeco风格的小边几~
黄麻地大片的花鸟的纹样,巨大的尺度也可以挡住难看的精装修地面。
这个角度是从门厅屏风看向客厅的第一角度,在沙发背后的双耳落地灯增加了空间的轻松和自由感~
客厅墙面特别选了四幅小儿子的中国画作品,有花有景,有写意也有工笔,装裱了金色欧式的框,在这里让中国风与法式的墙面融合起来。
这张是从餐厅看客厅的角度。
宝石蓝的主沙发是这个空间里的C位!窗帘选择了梦幻帘但是藕色系~跟纯白网红款完全不是一个感觉对吧!
单人椅来自北欧表情,非常现代休闲的款式搭配来自Global的经典的法式款边几~
阳台的角落是男主人的专座,搭配大气利落的皮质转椅搭配小边几(均来自北欧表情),背后的龙血树更显霸气,坐在这里可以悠闲地俯视整个城市~
窗外的景色如下,遗憾拍照的时候天气不太好。
虽然是男主专座,但大部分时间都被Ada姐的主子占据~
餐厅区域的改造前后改造后的对比图~
餐厅的大场景来一张!餐厅位置的顶面增加了法式的灯盘,铜质吊灯来自美克美家。
餐桌选择了全实木餐桌尺度并不大,主要考虑平时都是3-4人用餐。(餐桌餐椅均来自北欧表情)
餐边柜选择了成品的柜子上面搭配了一幅传统法式真丝壁画,专门辅以挂画灯照明,让挂画显得更加有典藏感。
餐椅搭配了2把经典的温莎椅和一个条凳,均来自北欧表情。
经典的藤编高背椅既平时可以当装饰品,周末大儿子回家,一家人聚餐的时候也可以当正式的餐椅去使用~
餐边柜上的特别选择了有博物馆气质的壁灯,凸显出整个家不凡的气质。
餐厅旁边是进入二楼的楼梯,形式并没有做改变,而是调整了颜色。楼梯拆掉了原本丑陋的踢脚线,设计了半高的法式护墙板增加了楼梯的细节和气质~
注意这里捕捉一只小猫咪?~
书房将楼梯下方的储物间改为柜体,书桌和书柜选择相对传统乡村法式的柜体样式进行设计,桌面选择了柚木色,其他部分均选择白色。
书房选择了乌云墙纸和乳胶漆重新进行墙面的改造。
书架上放置了男主人收藏的一个保时捷方向盘。
在乌云壁纸的墙面选择了一个颇具现代风格的自动翻页时钟?~
书房的角落选择了一组宜家的沙发和落地灯的搭配,打造轻松无压的阅读空间。
先来看看改造前和改造后的对比图片
大儿子房间整体为卡其色色调,床头用了护墙板造型。
格纹布艺的床来自北欧表情,特别精选的挂画是整个空间的点睛之笔。
老人房是最具法式古典气息的房间~
法式雕花的床头搭配金色复古相框~海派风格的台灯让整个房间更显精致~
从楼梯上来的二楼多功能房间先来一张对比照~改造前可以看到在右侧墙面开门洞进入到二楼前花园,改造后我们用柜门隐藏门洞让整个柜体区域更加整体。
这个区域设计了大片的书柜和小书桌,书柜里藏着小儿子各式各样的乐高模型~
改造后我们用柜门隐藏门洞让整个柜体区域更加整体~
二楼小儿子房间改造前后对比图。
二楼小儿子房间灵感来自The Hoxton Paris酒店 ,呈现出现代法式又不失童趣的空间感受。
整个房间选择了黄色和蓝色的拼色,非常元气and充满活力,在汇报方案时小儿子就表示特别喜欢他的房间设计~床头的挂画当然要挂上房间小主人的自己作品了!作品也是特别挑选和墙面的色彩进行搭配~
床头的双壁灯设计非常的大胆甚至有些工业风的感觉~
衣柜选择传统法式的门板,考虑到收纳功能设计了外置的抽屉,原本丑陋的黄色木门进行了更换,让法式的风格更加的统一。
床头的休闲区选择了一组北欧表情的休闲沙发搭配趣味的猴子?边几~特别有意思的是在挑选小儿子画画作品的时候特别挑选了这幅「猴子」来进行装裱,这使得整个空间更生动活泼~
主卧室先还是来一组改造前后的对比照~
卧空间是更加纯粹的法式风情~整体色调用了女主人喜欢的薄荷绿调
豆青色的套色墙板让整个卧室清爽淡雅~在床头选择了来自Global的精致铜镜做点缀。
主卧室的床和床尾凳选择了经典的现代法式的家具都来自美克美家,地毯选择了低调而舒适的真丝地毯~
整面的护墙板中隐藏着两扇门,一扇进入主卫一扇进入到外花园。
床尾的储藏柜整体都选择了房间的豆青色调搭配百叶窗门板,清爽又优雅~
床头精致的水晶灯搭配棕色床头柜,抽屉柜上的细线条更添柜体的细节感~床头柜上一颗蝴蝶兰更添东方艺韵。
房间所有的拉手都是精心选择搭配的铜拉手,搭配金色流苏~
客服
消息
收藏
下载
最近





























































