查看完整案例


收藏

下载
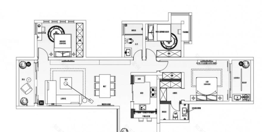
解决了户型问题之后呈现的平面图,就是一个南北通透特别大气的状态。
回家的时候,一打开门,就可以看到一家人围绕的厨房~
窗口用了折叠百叶。可以完全打开,增加厨房采光,油烟大的时候也可以关起来。特别选了日式风格的小灯搭配早餐台区域。
特地把洗菜盆设计在窗边,有时候和厨房里的人聊天就顺便把菜洗了~特别是煮火锅的时候,再温馨不过啦。
油烟机用了大白,搭配红色的铸铁锅。多彩的锅具就是可以让你眼前一亮啊。
冰箱选的多开门的。因为橱柜是一个L行的,如果采用双开门和旁边的小柜子就会形成一个死角,导致小柜子没办法打开,无法使用~
考虑到家里用餐的人比较多,所以选择了条凳搭配餐桌,另外还选里几把灵活的小凳子。
餐厅吊灯安装的高度一定要适中,这样可以增加用餐的温馨感。在客厅和餐厅中间有一个吊梁,正好由梁位做一个区分,在吊顶处为了营造MUJI风,所以在淘宝上选择了实木线条做装饰。
对着客厅的墙面选择了用实木一字隔板做装饰。
客厅的软装增加了一些中式的感觉。选用了小屏风和花架,增加了层次感。
挂画选择的是极简风格的,为了搭配所以选择了原木色的画框。
客厅的沙发选择的是父母款,坐垫是可以拆下来换洗的,很方便。
这个茶几是我个人特别喜欢的。当时我们选软装的时候只是提了几个概念。原本想定做小杜说的那个,结果把图片放某宝上一搜就找到了同款。
伸缩茶几特别适合在人多时候,在餐厅吃饭坐不下,就可以分几波人在茶几上吃~特别配合了几个小墩墩~
主卧的床头柜选用了暖咖色。床头一边的小壁灯,特别挑选了带木头元素的。
原本的设计其实在床头是有造型的。做了简法之后,我们就在软装上挑选了几款特别的灯。这款灯是宜家的竹编灯笼。
这一张可以看到主卧卫生间的改造成果,在走廊一侧做了衣柜。前面提到主卧是留给小杜父母住的,担心老年人无法习惯衣帽间没有门,所以说这里全部都做了有门的柜体。
主卧衣帽间进入主卧卫生间采用的是推拉门。与衣帽间的整体氛围契合。
主卫洗手台区域是利用原本建筑的一个飘窗位做调整的。所以淋浴柜是在现场做的,柜门是在柜体那边定制的。考虑到淋浴柜背后就是窗户,所以在这里订了现在很网红的从顶面伸展下来的镜子。
因为是老年人使用,所以还是安装了玻璃淋浴房。
特别选用挂画“好好睡觉”,这也是给北漂小杜最简单的祝福~
特别选用了宜家的这款配有床头书架的床。因为这间房的布局原因,放不下床边柜,所以在设计之初就考虑了宜家的这款床。插座也作在床头柜上方,方便日常充电~
这次飘窗位置的改造是很成功滴。原本现场是中间有一个很大的柱子,然后两边都很鸡肋。所以我找到了木工现场做了桌板,这里就成了一个超大L形的桌子。考虑到下方是书桌,所以窗帘选用了简单的罗马帘。书桌配的台灯是小米的。
姐姐房间这里的化妆桌,原本是想设计一排衣柜,因为风管机的出风原因,所以在下出风位置设计了一个小小滴化妆台~
化妆镜选择了最简单的黑色圆形款。
这里重点看化妆台对面窗户的设计!内层百叶外层纱纱,增加了空间柔美的感觉~
卫生间的淋浴柜是直接在淘宝上面选购的成品,考虑到使用习惯,所以工卫采用了蹲便并且也设计了淋浴房。
阳台放置了洗衣机。衣柜也是在淘宝上定制的。
客服
消息
收藏
下载
最近






































