知末
知末
创作上传
VIP
收藏下载
登录 | 注册有礼
知末案例   /   家装空间   /   样板间   /   班帝尼设计

追求文学的幸福感 | 原木书房的精致设计

2019/11/10 00:00:00
查看完整案例
微信扫一扫
收藏
下载
追求文学的幸福感 | 原木书房的精致设计-0
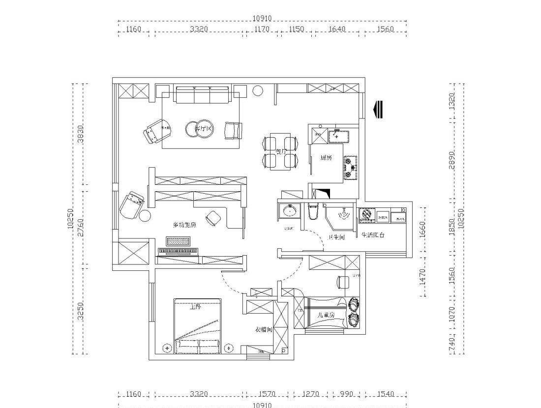
户型相对于我们的实际居住要求来讲,还是比较紧凑型的,为了避免入户的一览无余,我们加了木质隔断和造型的转动,让过渡更加的自然
追求文学的幸福感 | 原木书房的精致设计-2
原木的质感是通过她的肌理和材质体现的,给我们的视觉感触是亲近的美,搭配自己拍摄的摄影图片,自然形成一副和谐富有层次的景象
追求文学的幸福感 | 原木书房的精致设计-4
追求文学的幸福感 | 原木书房的精致设计-5
追求文学的幸福感 | 原木书房的精致设计-6
追求文学的幸福感 | 原木书房的精致设计-7
需要大面积实际藏书功能的书房,除了我们的硬性需求,就是我们对生活和知识的向往啦,在满屋的书香味里感受我们对文学的追求,真的很幸福
追求文学的幸福感 | 原木书房的精致设计-9
追求文学的幸福感 | 原木书房的精致设计-10
追求文学的幸福感 | 原木书房的精致设计-11
追求文学的幸福感 | 原木书房的精致设计-12
南京喵熊网络科技有限公司 苏ICP备18050492号-4知末 © 2018—2020 . All photos and trademark graphics are copyrighted by their owners.增值电信业务经营许可证(ICP)苏B2-20201444苏公网安备 32011302321234号
客服
消息
收藏
下载
最近