查看完整案例

收藏

下载
灰色,介于黑和白之间,似混沌,天地初开最中间的颜色,不用和白色比纯洁,不用和黑色比空洞,有点单纯,有点寂寞,有点空灵,捉摸不定的,奔跑于黑白之间,像极了人心,是常变的,善变的,却是最像人的颜色。
所在城市:嘉兴高铁新城
项目名称:东方悦宫
设计风格:现代极简
房屋面积:110m²
项目设计:博艺装饰工程有限公司
主案设计:尹超
[彩屏制图:邵永辉
实景摄影:Beny
[项目主材:木质护墙板,大板灰砖,大理石,黑色拉丝不锈钢墙布等。
本案业主是一位成熟稳重的男主人公,带着一份“交给你了”的信任,设计师开始了我们的设计之旅。从结构布局的改善到细节的填满,从软硬装的搭配到整体颜色的把控,最终拿到了房东的pass卡。
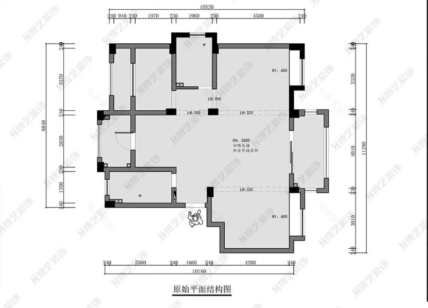
原始结构图
平面布置图
本案为小三房空间,原来的结构各个空间都得不到应有的功能需求,故设计师把三房改做两房,原始厨房位移动到一个大区域的房间内,这样既解决了厨房小的问题,也使得整个空间明亮通风也宽敞很多。改动外卫开门朝向,在主卧增加一组衣帽间,不仅使得入户大门见卫生间的门的局面得到改善,同时增加了客厅玄关以及主卧储物的功能,一举四得。
玄关
我们总认为进门的那一刻要有充分的归家的仪式感,木质的基调,白与黑的点睛,红与白的冲击,让玄关成为客餐厅的分割点,也是进门后的缓冲带。
客厅
选用低饱和度的高级灰来作为主色调,这种朦胧的色调,却似我们平淡的生活,让归家后的心情更为舒缓平和,真正让人放松下来。
灯光是空间的灵魂,整个空间采用无主灯的设计,通过轨道灯、射灯、线性灯等灯光认真刻画每个功能区的强弱冷暖,让空间层次更为丰富。
打通后的客餐厅视野也达到了最佳的效果,客厅区域用灰调的沉静与爱马仕橙的热烈涵纳彼此,柔和宁静中又透露灵动的愉悦。然后我们安上纱,置上画,点上灯,邀请风迎面而过,邀请光投影共舞……
餐厅
餐厅通透的落地玻璃汲取了冬日里阳光满满的活力,穿过窗,透过纱,折射出斑驳的纹路,让一饭一蔬都熠熠生辉。
厨房
生活总是有舍有得,四十不惑的年纪更懂得生活的智慧,并在舍与得之间寻找平衡的力量。舍弃一间房,却增加了衣帽间和玄关的空间,同时还巧妙地化解了入户见卫生间门的尴尬,最重要的是还得到了一个大大的厨房。厨房是生活的魔术师,在这里,我们尽可以把爱意转化成锅碗瓢盆,把柔情量化成米面肉蔬。
卧室
如果说房子是主人生活方式的投射,那么主卧更是主人品质生活的画像。这里是主人最为私密的放松空间,不妨将每一平米的舒适感都发挥到极致。高级灰勾勒着整个空间宁静的基调,木质的背景又用奶茶般的温柔进行包裹,让整个主卧严谨冷酷又不乏舒适温暖。
卫生间
软装
生活中只要植入小小的意趣,便会在不知不觉中多了很多趣味。希望你在外能做男儿有泪不轻弹的成熟男人,也希望你在归家时变成满怀童心的小男孩;希望你外表温和,内心强大。
本案设计师尹超,博艺设计总监。设计理念:少即是多,简洁即是丰富。从业时间:11年。个人荣誉:CIID中国国际室内设计网年度新锐设计师,嘉兴市第二届室内精英设计大赛方案类最佳人气奖,嘉兴市第二届室内精英设计大赛实景类商业空间银奖,金住奖。
-2020
中国(嘉兴)十大居住空间师
2019-202040UNDER40
中国(嘉兴)设计杰出青年(
2019-2020
代表案例:洪河自建庄园
中润卡缇亚宫双拼别墅
翡翠花园双拼别墅
紫鑫皇庭双拼别墅
香缇世家双拼别墅
海宁钱塘院子叠加别墅
平湖自建双拼别墅
桐乡香格里拉独栋别墅
江南润园合院别墅
等
1
实景案例赏析
▲100m² 平湖御龙湾实景案例
▲170m² 平湖名门府实景案例
▲150m² 世茂新城·尚景蓝湾实景案例
等电位
”试试据说,关注
并分享
此文的小伙伴,男的都会发财,女的都会变瘦变更美...
邀约量房:地址+面积+
姓名+手机号
或
13372313151 博艺装饰
客服
消息
收藏
下载
最近


























