查看完整案例

收藏

下载
案例名称:《家,是生活所在》样板地址:世茂.尚景翠苑
户型面积:170㎡
户型结构:3室2厅
装修风格:北欧风格
设计说明:温暖从容的原木,弱化了空间的冷漠生硬,让室内多了一份天然纯粹,色彩、光线、材质的运用,为家寻找一个平衡的元素,贯穿整个空间,让原本灰度的硬装不再显得生硬沉闷。
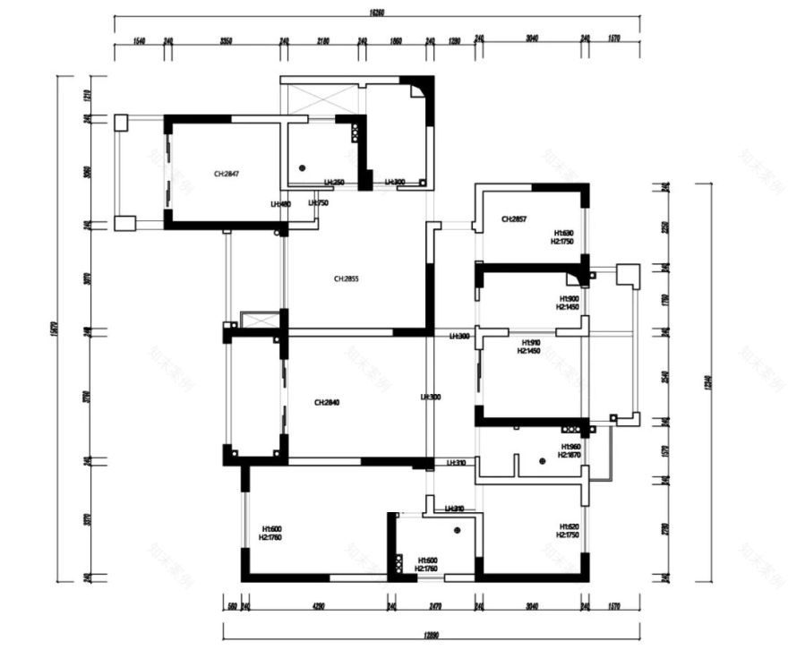
原始结构图
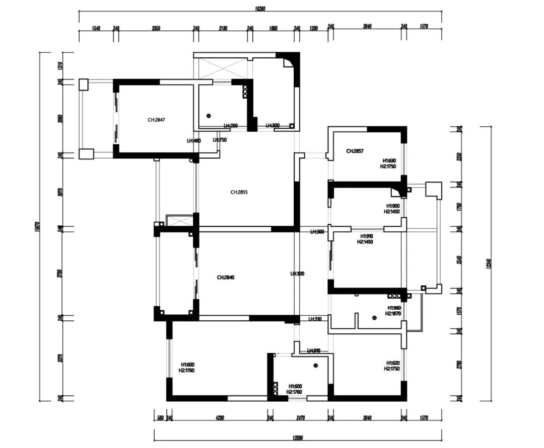
平面设计图
入户玄关/鞋柜
客厅
客厅以大面积的灰白打底,搭配低饱和度的亮黄色,用金属色点亮空间,考虑到日常打理的便捷性,地面选择了一款类似磐多磨质感的水泥地砖,纹理细腻流畅,富有变化。简约沉稳的家饰,并通过简洁极致灯光设计,晕染出高雅、精致的生活空间。家具的搭配上呼应空间的色彩调性,讲究流畅的线条,崇尚简约而不失时尚的设计理念。温柔顺畅的蓝灰色布艺沙发,搭配不同质感的单椅、茶几的有序排列,巧妙地缀于空间,为其增添生活温度。
餐厅
餐厅的设计上,扩大视觉的空间感。摒弃繁琐的装饰,以极简的轮廓搭配温馨的色调,简洁大方、温馨舒适,使居家空间回归自然纯粹的状态。开放式的客厅与餐厅,打破生活中的壁垒与隔阂,让沟通无界限,也让家人之间得以拥有更多、更舒适的互动及活动空间。
吧台
厨房
书房
次卧(儿童房)
主卧
卧室保持在一种简约的装修风格,在不破坏休息空间的温和氛围下,凸显特色,带给居者最完美的艺术呈现。对于这唯一的休息场所,忙碌一天后,回到家,能卸下身上沉重的包袱,好好的休息一下。
主卫
家,是归家途中,“千里庭缩”的那种急迫;家,是久别归来,“审容膝之易安”的那种舒适;家,是出门在外,“蝴蝶梦中家万里”的那份思念。
往期回顾:
【博艺装饰·活动】《最美样板房》第二季作品合集【博艺装饰·活动】《最美样板房》第三季快闪启幕【博艺装饰·设计】D1《绮梦》陆敏锫【博艺装饰·设计】D2《Normcore止.间》颜兰懿【博艺装饰·设计】D3《奶奶の心愿》张旭【博艺装饰·设计】D4《浪漫满屋》【博艺装饰·设计】D5《It’s a feeling》【博艺装饰·设计】D6《安排》姚盛杰【博艺装饰·设计】D7《静谧时光》张晓星【博艺装饰·设计】D8《暗香》张越【博艺装饰·设计】D9《不负韶华》张芳【博艺装饰·设计】D10《G大调·法式风情》薛佳平【博艺装饰·设计】D11《简·爱》刘芸【博艺装饰·设计】D12《光环境·秋之韵》周润【博艺装饰·设计】D13《静》毛彦淑【博艺装饰·设计】D14《绿野仙踪》陆敏锫【博艺装饰·设计】D15《屿》周润【博艺装饰·设计】D16《流浪诗人》陆敏锫【博艺装饰·设计】D17《时光》张芳【博艺装饰·设计】D18《明·净》张俊
文稿:薛佳平
编辑:LK小冷
照片:Beny
视频:嘉兴电视台等电位”试试
据说,关注并分享此文的小伙伴,男的都会发财,女的都会变瘦变更美...
量房申请:地址+面积+姓名+手机号或
15957343513小冷点击
阅读原文
预约量房
客服
消息
收藏
下载
最近





























