查看完整案例

收藏

下载
慢 语
Reshaping the pattern let The space has been renewed
老房改造
格局重塑让
空间焕然一新
在极简的基底上克制地做加法,一点一滴累积出生活滋味。
ABOUT ROOM
本案业主以婚房配置考虑,房子是常州老小区,学区非常好,随着常州近年飞速发展,周边也配套了商圈和生活圈,所以考虑重新装修。
侘び WABI
楼盘/北直街小区
面积/ 88平
风格/现代简约
设计师/张倩倩
设计思路
原始户型图
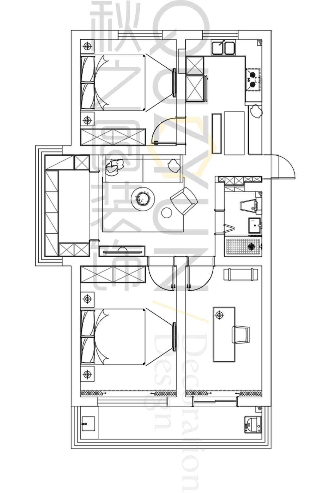
方案平面图
原结构三个卧室没做太多调整,其中一间卧室是给未来宝宝准备的小孩房,前期作为书房考虑。卫生间原始房门做了调整,使进门位置有一个超大储物空间。开放式厨房和餐厅融为一体,使空间看大且通透。
改 造 前
改造后
01Living Room客厅
简约风格简单别致,没有花里花哨的修饰却也有别有一番情趣,给人简洁、清爽的视觉效果。
▼客厅一览,views of the living room
将原有的阳台打通,客厅阳台合并,设计师巧妙的以定制橱柜作为两个空间的分割线,大大的增加了储物空间的同时也增强了视觉效果。
靠窗定制卡座,择一日天气晴朗,在这尽情享受阳光的沐浴~
02Dining room餐厅
为了不显得空间沉闷,配饰方面不但强调舒适简单,更加融入了些许金属、玻璃等材质,提高整体空间时尚质感。
▼餐厅一览,views of the dining room
由于空间有限,餐厨就在客厅旁边,并且是一体式,没有单独的餐厅和厨房。加入靠墙卡座,兼具多种功能,让这个小空间精致又实用。
03Living Room客厅
厨房墙面通块小瓷砖,方便清洁工作。搭配白色系橱柜与桌面,更显得整洁明亮。
04Master Bedroom主卧
▼主卧一览,views of the master bedroom
主卧的整体氛围更简约与随意,并透着一种度假民宿的天然质朴。入住其中,身心自然而然地放松下来。
05Second Bedroom次卧
次卧是预留给父母偶尔探访使用,整体延续主卧的格调,简约简单。
06Study书房
靠阳台的房间作为未来宝宝的游戏室,目前是全家人的休闲书房来使用。房间的功能性有时候反而需要足够的放空,以充分考虑未来的可变性。
07Bathroom
卫生间
空间虽小,合理的进行布局,精心的挑选合适的家具,做到样样齐全,样样精致,能给屋主带来无尽的放松与享受。
08Balcony阳 台
阳台设计成整面的大窗打造的阳光房,可以想象清晨的阳光洒落窗前的无比惬意和温暖。
不念过去
END
不畏将来
长按 - 识别 - 关注
江苏 · 常州
地址:关河西路180号恒远大厦19楼(西新桥西侧)谢谢阅读|感谢分享
客服
消息
收藏
下载
最近






































