查看完整案例


收藏

下载
QI YAN DESIGN
柒颜设计
bo wu薄雾April 27th, 2022Copyright © QIYANDESIGN
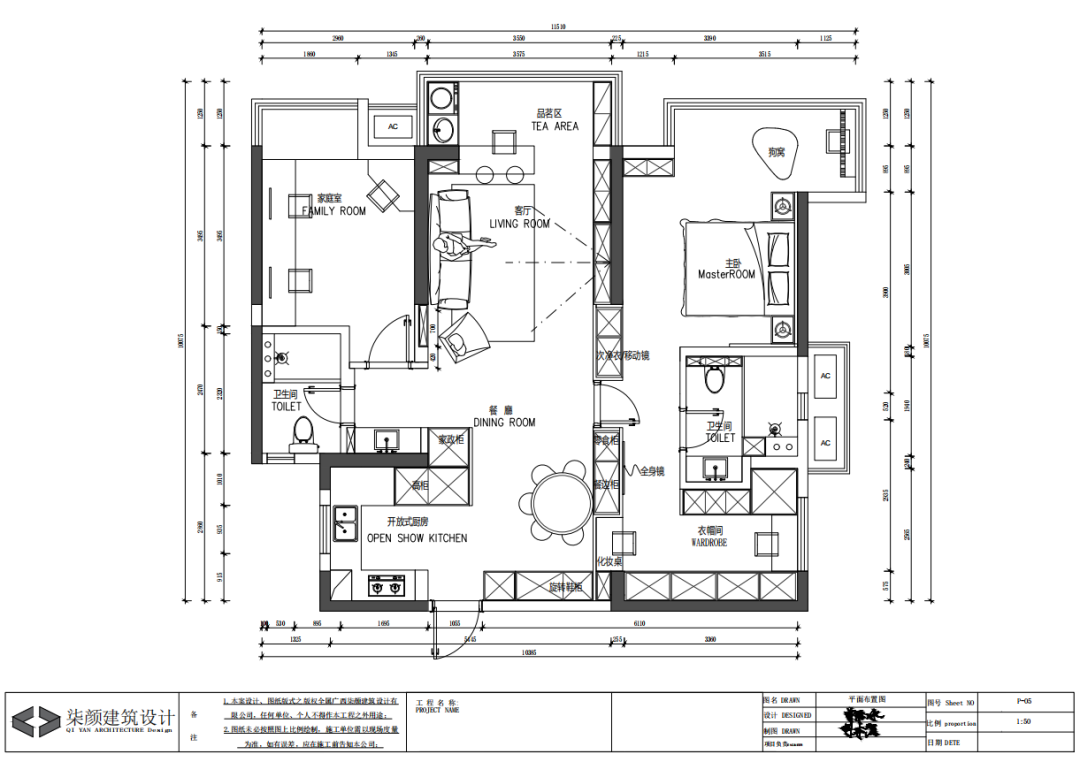
户型:三房两厅面积:110地区:翰林学府|住宅心感|生活中的美学无需刻意寻找,它就在身边,阳光、雨露、风景、自然,都是生活美学的所在,“生活”不应只有过日子,只有生得“美”,活得“乐”,才能进入“生活美学”之境。|平面布局呈现|
平面结构图
平面布置图
空间效果呈现
01客厅
一个个住所空间,宛如城市之中的独立容器。
私宅之美,在于盛放、平衡、涤心,自在。
足履牵绊,忘记牵绊,身在城市,忘记城市。
02餐厨
生活在这里,当然不局限于在此。感受空间暖色调的营造,让整个空间有流动的动线,犹如一曲曼妙的夜曲,等待着一个周末的清晨,一手咖啡一本书籍,坐下来,细品生活的趣味。
03卧室OR电竞房
生活感受就在于对待事物的观察和探索,“一杯水、一扇窗户、一个挂画”,光线、构图、色彩,此起彼伏一顺到底的视觉大片跃然我们眼界之上,每一刻都是时间赠予我们最好的生活礼物。
04卫生间
所有的美好都发端于热爱,之所以追求美的物品,是因为那里有心之家园。
柒颜形象·营造有温度的设计冰雁
15777108318
公司地址
扫码关注我们
往期作品
说说你的真心话,喜欢就点赞。
客服
消息
收藏
下载
最近































