查看完整案例


收藏

下载
QI YAN DESIGN
柒颜设计
residential
趣玩家族
August 28th. 2021
Copyright©QI YANDESIGN
户型:四房两厅面积:145地区:南宁
“我们的言语、表情可能会说谎、但是,当在面对自己内心,用色彩去表达的时候,一定是最真实的呈现。”一群艺术可爱的生活人士相聚,回赠生活表达着内心,身处众声喧哗,我们的生活难免都有哑然失声的瞬间,过上“差不多”的生活正在成为越来越多人无奈的选择。
但是,当我们选择了一种热爱,明确一种自己喜欢的生活方式之后,就应当毅然决然的偏执一下,坚持自己的选择,过自己要去过的理想生活。
(碎片关系工作室周年庆)
趣味占领空间的心智,产品就是内心的表达。
| 住 宅 心 感 |身处浮华时代,许多人早已被生活变得平庸,但深埋于灵魂中的热血,需要一处地方。用来安放所有的趣味和意志,无聊生活的背后,亦需要狂热的自我展示。就像每件藏品都有故事,都是自我主义的表达,野蛮又俏皮。| 原 始 结 构 图 |
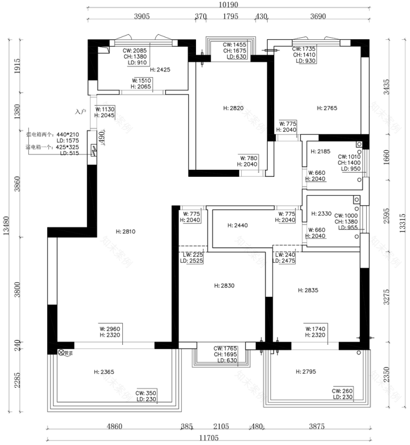
| 平面布置呈现 |
| 空 间 效 果 呈 现|01 玄关
蓝,是一种漂亮语言。明亮、简约、干净是步入这个家的初体验。开敞的门厅引领每个人非常直观地去感受自由无拘束,我们希望通过这样设计打破循规蹈矩的边界,带入一种无界且丰富的气息,以开放的视觉系统重组生活有趣的一面。02 客厅
大胆从来不是存在于想象之中,构筑脑中的蓝图突破设计触碰。当越来越多的潮、酷元素融入其中,空间不局限某种风格模式。大面积的野生元素证实了这一概念,水泥质感的天花和背景墙面承接一体。玻璃橱窗是专属于爱宠的天地、珍藏的玩偶手办,角色之间都有灵魂羁绊,关乎着信仰存在。整体空间主体汲取自然木质原料,皮质沙发传递朋克精神,材质之间互相打破界限,为生活演绎全新尝试。03餐厅
餐厅能够促进家庭成员之间的亲密互动,是一家人享受团聚时光的焦点所在。
抽象的艺术灯极具现代感,再配上高级的蓝色,让整个空间更具时髦感。
律动的线条在这个开放空间显得格外注目,当视线透过办公区域,来到被白色包裹住的阳台角落,通过几何轮廓造型的搭建,构筑出一个有趣与惊喜共存的空间,犹如一颗饱满的胶囊,又好似一间太空舱独立成趣。
04 主卧
睡眠空间的造型装饰延续规则化设计,鲜亮的红色运用凸显出整体格调,红色热烈显眼,为私密的生活场景注入小情趣。除开红,也有温暖的自然色,低饱和度的大地色系让人身心放松,优雅的软饰填充单一生活,营造自由舒适的居家氛围。
卫生间趋于“野蛮化”搭配,大胆而富有张力,石材碰撞过后擦出独具魅力的新思考。
极致的黑通过光影形成独特的视觉效果,让原本直白的空间变得有魔力。
05 次卧
次卧删繁就简,干净利落回归居住本身。
空间以暖色调为主,米色与咖色的融合带来片刻的宁静温暖。
被阳光渲染的地方,光着脚踩上去,温柔遍布全身。
微风浮动窗幔,纷繁的日子里守住一份宁静,有滋有味。
06 次卫
冰雁15777108318
公司地址
扫码关注我们
往期作品
说说你的真心话,喜欢就点赞。
客服
消息
收藏
下载
最近





























