查看完整案例


收藏

下载
院子的门开着
香片随着心事
向杯底沉落
茶几上
烟灰无非是既白
且冷
无非是春去秋来
——洛夫《有鸟飞过》(节选)
日益丰盛的生活中,喧嚣与忙碌交织不停,都市精英在寻找着安静闲适、放松自我的一个空间。家的本真意义,便是打造成忙碌之外属于自身的一个舒适圈,漫溢这舒缓安宁、平和畅达的气息,是一个完美契合自身生活方式的地方。
样板房设计根据不同的户型进行风格定位,对设计师提出更高的要求,设计团队对不同的户型面积和客户的定位,在简约无印良品风、现代风、港式轻奢和雅致东方风格之间闪转腾挪,诠释着不同的生活态度和对潮流的理解。
项目信息
项目名称:庐陵新城
开发商:江西嘉伟业房地产开发有限公司
项目类型:样板房设计
项目地址:江西·吉安·吉水
项目面积:
72㎡/78
设计时间:2019年12月
室内设计:朱海珍/共生空间设计
设计团队:朱海珍余雅萍许欢丁振健
软装设计:谭俊曾瑞云/花房陈设
项目简介
项目位于吉水县吉阳大桥桥西,总占地251亩,总建筑面积52万平方米,西区为纯住宅区,临江东区为商业综合体。规划有大型购物商场、巨幕影院、大型儿童游乐园、健身房、餐饮美食等;购物商场顶楼将打造屋顶空中摩天轮、无边际泳池等标志性景观建筑。
揽江观景诠释舒适生活大境!匠筑建面约70-89㎡新品公寓,108-285㎡江景美宅,献礼吉水,再续荣光!
01
于平淡中见惊喜,于回归中见自然
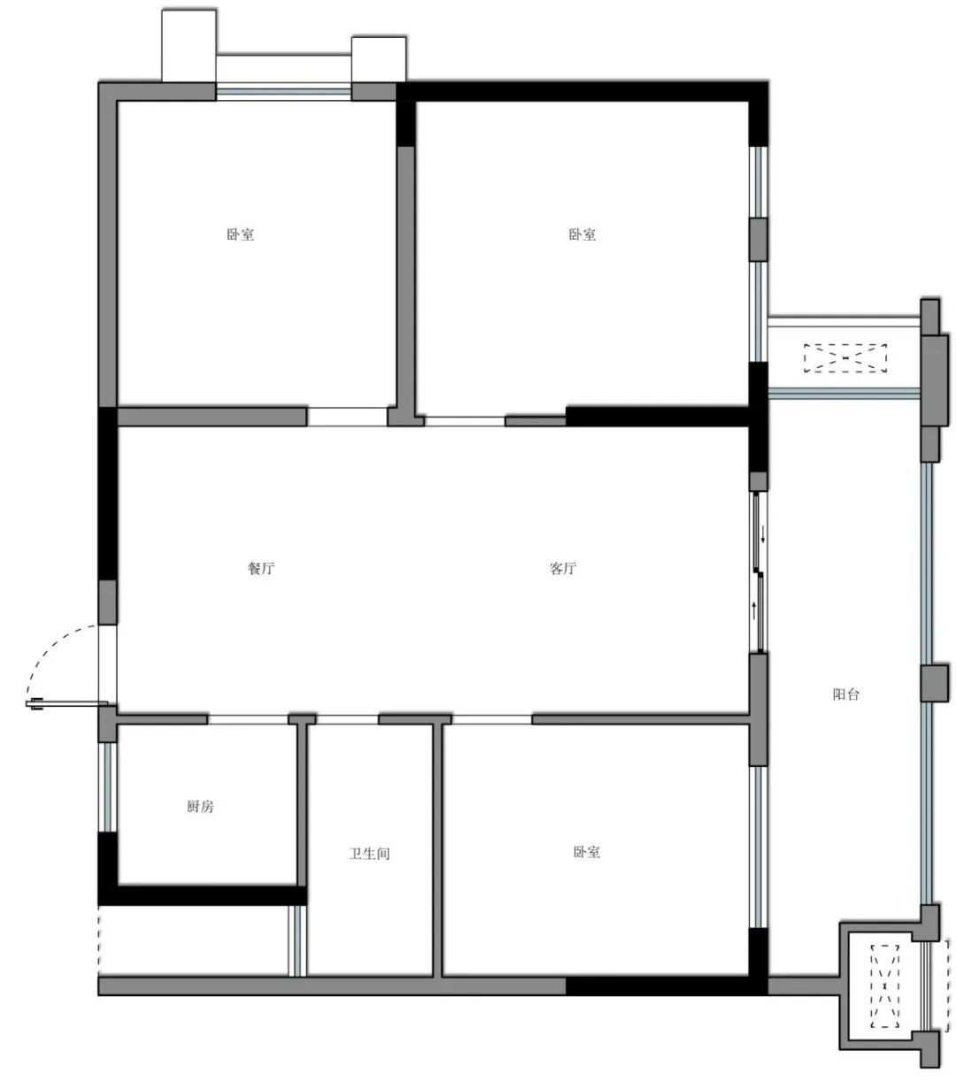
A户型72
原始结构图
平面布置图
户型优点
1、户型方正,视野非常好;
2、客餐厅的开放性设计大大增加了空间的使用频率;
3、超大的舒适观景阳台。
某种意义上,城市的出现,是人类步入文明的里程碑,它是社会文化的荟萃,建筑精华的聚集,科学技术的结晶,而城市空间的出现毋庸置疑成为文明时代的具体标志。
个性化即是我们的钟爱之色
客厅与餐厅采用开放式布局,设计师运用局部色彩关联的手法从平铺直叙中突围,寻找面的体块穿插,以抽象化的形式直抵本质。
一切都是“刚刚好”充满想象力的全能百变户型,疏阔交互的空间体验,清新简约的搭配气质,安放每颗年轻的心,天然的期盼和热切,收藏灵感创意的火花。
怀揣梦想,点亮生活尘埃里的萤火
一个专属的美丽空间,便是你的城堡,你的铠甲,你童真与幻想。若没有了故事、梦想和想象力的滋养,人和生活便容易变得沧桑。它们是夏日那一口痛快的冰淇淋,是独处和沉默中轻轻放歌的情怀。
02
比极简多一丝温度,比侘寂多一丝圆满
B户型78
原始结构图
平面布置图
户型优点
1、户型方正,视野非常好;
2、户型布局非常合理,充分利用了空间,没有空间浪费;
3、超大的舒适观景阳台。
一个居家空间有不同的空间功能区域,当然也体现了情感和状态的变换,所以,在本案空间中,设计师以“轻快乐章”为主题,呈现了一个灵动有秩序的品质空间。
艺术赋能生活所向
软装艺术设计繁简有序,亦有着自然流动的节奏变换。
客厅区域干净简练,只以一个璀璨的金色艺术吊灯渲染空间氛围。
纯真的梦,编织着灿烂的明天
在最能体现生活仪式感的餐厅空间,金属、玻璃和镜面材质的粲然光感完美交融,营造出空间的优雅美好,凝结着都市生活的轻奢享受。
摒弃繁芜,以一种优雅的设计语言营造回归卧室空间设计融入了简约的几何色块,散发着时尚温馨气息,通过抽象饰物和雅致配色,予人安心怡然体验。
设计主创朱海珍共生空间设计创始人|设计总监
样板房--设计,本质来说是生意,所以把产品打造好,甲方卖的好,发了财...设计才算成功...
欢迎转发至朋友圈
客服
消息
收藏
下载
最近














