查看完整案例


收藏

下载
品藏酒庄
一种生活的姿态
一杯情感的升温
一段优雅的邂逅
一场忧愁与欢乐的缠绵
在澳大利亚,这是一个无人不知,无人不晓的品牌。奔富酒庄的发展史充满传奇,有人说,它其实是欧洲殖民者在澳大利亚开拓,发展,定居繁衍演变史的一个缩影。
奔富酒庄(Penfolds Winery)位于南澳赫赫有名的巴罗萨产区。巴罗萨产区是一个相当有趣的产区,这里密密麻麻的聚集了众多澳大利亚优秀酒庄,他们有着各不相同的酿酒理念,有些酒庄,例如奔富、百兔、酝思古纳华拉等崇尚酿造高品质葡萄酒的理念,而另外一些则例如杰卡斯、利达民、禾富这些走完全商业化的路线,每一瓶葡萄酒均按照大众化口味来酿制,以讨好尽多的爱酒之人。
项目信息项目名称:酒庄设计项目类型:商业空间设计项目地址:江西·赣州·南康项目面积:186㎡完成时间:2019年2月室内设计:共生空间设计设计团队:朱海珍余雅萍许欢程天文梁中施工团队:壹舟装饰工程有限公司(南康)原始结构图
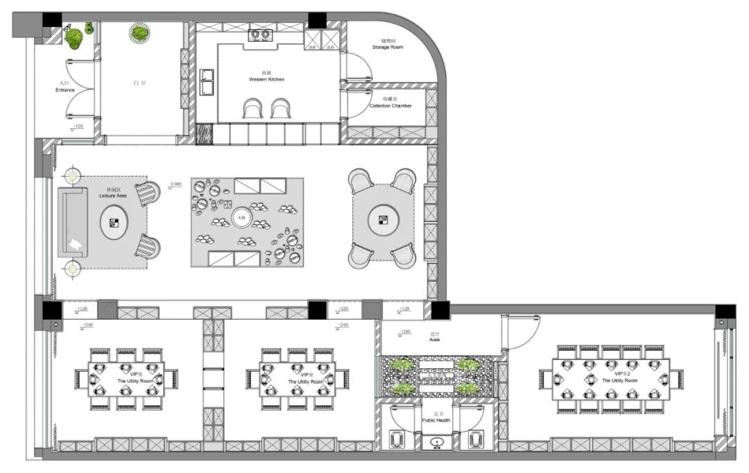
平面布置图
方案优化
1、退入式门厅体现主人包容宽广的生意格局;
2、入厅、大厅、vip室通过步入式抬高让空间相互融合,层次更加丰富独特;
3、环形动线的设计让空间的互动体验形式更加多样化;
4、融合山水文化和珠宝展示形式展现红酒的独特性;
5、空间形式融合多样化和层高优势尽显大气与品位。
整个酒庄门头采用红色系为主,红色代表着积极乐观而热情,情绪波动大起大落;真诚主动,开玩笑不分场合;勇于挑战,渴望干出一番轰轰烈烈的事业;善于表达,疏于兑现承诺;富有感染力,这山望着那山高。
进入门厅,豁然有绿植相迎,立于玻璃穹顶之下,整个空间给人豁然开朗的大气感。
典雅风格在形式上多以浪漫主义为主,装修整体上呈现出豪华、精致的感觉,在大厅通透的结构当中,给人以舒适的感觉,再加上家具和吊顶造型的凹凸有致和线条的起伏、灯光的柔和,给人以温暖。
大面积运用细腻的木饰面作为装饰搭配粗狂的红砖进行搭配,整体感觉素雅而不失大气,散发出一种琼玉的光泽。
从简单到繁杂,从整体到局部精雕细琢,柜体和皮质硬包给人一丝不苟的印象。一方面保留了材质、色彩的大致风格,让人感受到时尚感的带入与浑厚的文化底蕴,同时又摈弃了过于复杂的肌理和装饰,简化了线条。
以餐厅形式展现的红酒品酒区内陈列满各种美酒,木纹的纹理给整个空间增添了几分自然感,线条优美,简约中不失功能性体现。
沿用古典欧式风格的主元素,运用对称、类比、镶嵌等手法,再融入部分现代生活元素,演绎出不同于传统风格的浪漫与惬意。
卫生间的入口分别放置了绿植,以及墙面的红砖给人一种惬意的自然感。最大限度的体现出自然的感觉,让人联想到茂密的森林,带来一种清凉之感。
用新旧元素的碰撞,搭配颜色亮丽的配饰和软装陈设,巧妙打造浪漫复古的氛围,散发主人独特的品味。
设计主创
朱海珍
共生空间设计创始人|设计总监
这个世界总会有人更加走心
用你最期待的方式
欢迎转发至朋友圈
如果 你也是一位爱酒人士
和我们一起成为时尚的宠儿
客服
消息
收藏
下载
最近















